Direkt zum Inhalt wechseln

Dachgeschosstraum mit Weitblick

1190 Wien

Immobiliendetails

1190 Wien

Die Wohnung

In bester Wiener Wohnlage befindet sich diese hochwertige Maisonette mit unverbautem Ausblick über Wien.

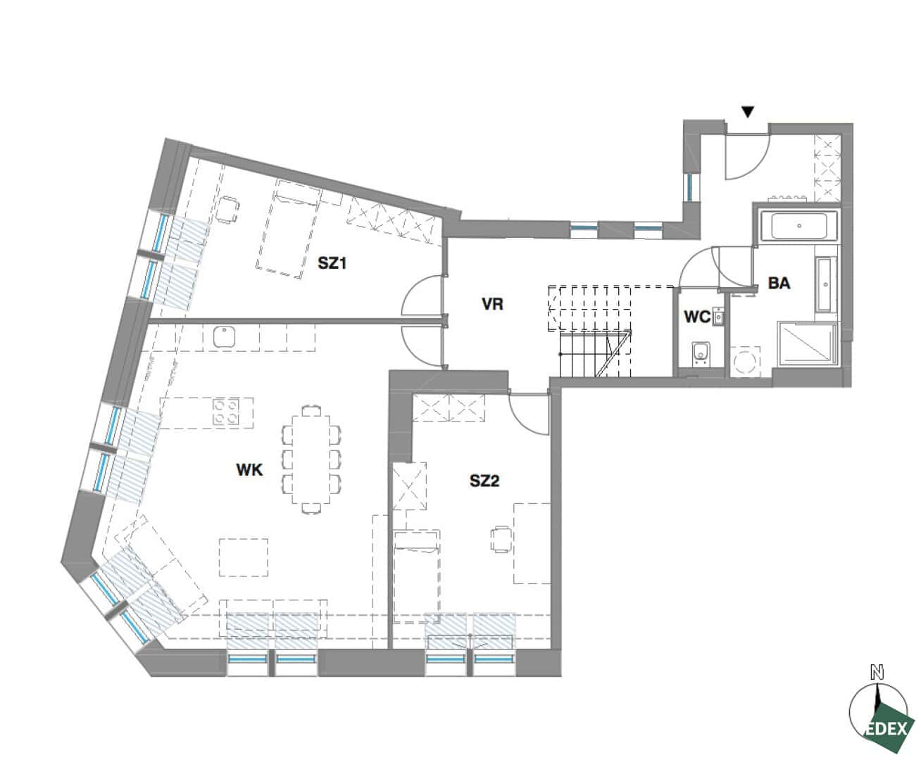
Diese Dachgeschosswohnung besitzt einen idealen Grundriss, erstreckt sich über zwei Ebenen und teilt sich wie folgt auf:

Ebene 1: Vorraum, Wohnküche, zwei Schlafzimmer, ein Badezimmer, sowie ein separates WC.

Ebene 2: Master-Bedroom inkl. begehbarem Kleiderschrank, Badezimmer, Galerie, Terrasse

Besonders elegant ist die weitläufige Galerie mit dem direkten Terrassenzugang. Von dort aus hat man einen tollen Rundumblick – vom Wiener Riesenrad bis hin zum Kahlenberg.

3D-Rundgang: https://my.matterport.com/show/?m=krE26nJd51Q

 

Highlights

  • Optimale Aufteilung
  • Hochwertige Ausstattung
  • Ausblick
  • Äußerst hell und freundlich
  • Terrasse

Ausstattung

  • Fußbodenheizung (in allen Räumen)
  • Vollausgetattete Küche
  • Klimaanlage (Splitgeräte)
  • Alarmanlage & Sicherheitstür
  • Hochwertiger Parkettboden
  • Terrasse mit Kaltwasseranschluss
  • Design-Badezimmer
  • Smart Home System (Steuerung via Tablet)
  • Wärmeschutzverglasung / Isolierung (VELUX)
  • Außenliegender Sonnenschutz

Lage / Infrastruktur 

Die Liegenschaft befindet sich in optimaler Lage im 19. Bezirk. Die Nähe zum Verkehrsknotenpunkt Spittelau (U6, U4, SBahn, Bus 10A, 35A) sowie die Straßenbahnen 37 und 38 unmittelbar vor der Haustür ermöglichen eine hervorragende öffentliche Anbindung.

Restaurants, genauso wie Supermärkte und Nahversorger sind in wenigen Minuten fußläufig zu erreichen. Egal ob Wienerwald oder Innenstadt – die Lage ermöglicht einen optimalen Spagat zwischen Grünlage und urbanem Stadtleben.   

 

 

Disclaimer

Die in diesem Exposé enthaltenen Bilder dienen der Veranschaulichung und können teilweise computergenerierte Visualisierungen (Renderings) beinhalten. Diese Darstellungen sollen einen Eindruck von der möglichen Gestaltung der Immobilie vermitteln, stellen jedoch keine verbindliche Beschaffenheitsangabe dar. Die abgebildeten Möbel und Einrichtungsgegenstände dienen ausschließlich der Illustration und sind nicht Bestandteil des Kauf- oder Mietgegenstandes.

  • 21 Freifläche
    21 m2 Freifläche
  • 172,24 Fläche
    172,24 m2 Fläche
  • gute Infrastruktur
    Gute Infrastruktur
  • 4 Zimmer
    4 Zimmer

Objektdaten

Objektnummer
25597
Objekt
Wohnung
Art
Kauf
Wohnfläche
172,24 m2
Zimmer
4
Bäder
2
Toiletten
2
Kaufpreis
€ 1.400.000,00
Betriebskosten (Netto)
€ 314,10
Reparaturrücklage (Netto)
€ 194,63
Liftkosten (Netto)
€ 70,50
Gesamtbelastung
€ 617,69
Provision
3% des Kaufpreises zzgl. 20% USt.

Lage der immobilie

Harald Anderlik
Leitung Büroimmobilien

Gleich informieren und Termin vereinbaren

"*" indicates required fields

This field is hidden when viewing the form
This field is hidden when viewing the form
Anschrift
DSGVO Cookie Consent mit Real Cookie Banner