Direkt zum Inhalt wechseln

Modernes Arbeiten im Ares Tower!

1220 Wien

Immobiliendetails

1220 Wien

Beschreibung

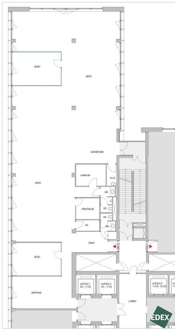
Der Ares Tower ist eines der effizientesten Bürogebäude Wiens, das durch höchste Flexibilität sowie seine ruhige und unaufdringliche Eleganz besticht. Besonders effizient ist der Grundriss des Turmes, welcher eine optimale Nutzung der Mietfläche ermöglicht. Die Fläche kann zudem sehr einfach an die Wünsche bzw. Raumprofil des Mieters angepasst werden.

Die hochwertige Ausstattung und die optimale Infrastruktur ermöglichen eine Arbeitswelt auf höchstem Niveau.

Die angegebenen Betriebskosten i.H.v. EUR 5,45/m² verstehen sich inkl. Heizung und Kühlung. Alle genannten Preise verstehen sich zzgl. der gesetzlichen Umsatzsteuer.

 

Ausstattung

– Doppelboden

– öffenbare Fenster

– Low Rise / High Rise Lifte

– Portier

– Kühlung (Kühlbalken)

– Parkgarage

– Restaurant

– Eventlocation (Wolke 19)

 

Verkehrsanbindung & Infrastruktur

Der Businessstandort Donau City verfügt über eine hervorragende Infrastruktur.

Öffentliche Anbindung:

U-Bahn: U1 VIC
Buslinien: Flughafenbus

Individualverkehr:

Donauuferautobahn / Reichsbrücke

 

  •  Fläche
    446 m2 Fläche
  • gute Infrastruktur
    Gute Infrastruktur

Objektdaten

Objektnummer
19875/19
Objekt
Büro / Praxis
Art
Miete
Nutzfläche
446 m2
monatliche Miete (Netto)
€ 6.199,40
Betriebskosten (Netto)
€ 2.430,70
Gesamtmiete
€ 8.630,10
Provision
3 Bruttomonatsmieten zzgl. 20% USt.

Lage der immobilie

Harald Anderlik
Consultant

Gleich informieren und Termin vereinbaren

"*" indicates required fields

This field is hidden when viewing the form
This field is hidden when viewing the form
Anschrift
DSGVO Cookie Consent mit Real Cookie Banner