Direkt zum Inhalt wechseln

Sonne, Ruhe, Weitblick – Zuhause in Währing

1180 Wien

Immobiliendetails

1180 Wien

Highlights

  • ca. 12m² Balkon mit Wasseranschluss

  • Ruhelage und Weitblick

  • Fußbodenheizung & elektrische Außenjalousien

  • Optimale Raumaufteilung & Abstellraum mit WM-Anschluss

 

Objektbeschreibung

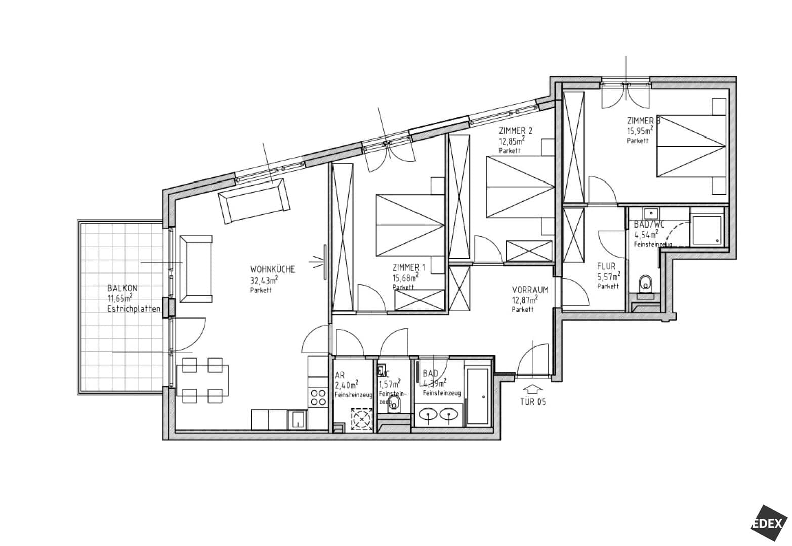
Diese elegant ausgestattete 3-Zimmer-Neubauwohnung im 3. Obergeschoß vereint modernes Wohngefühl mit durchdachter Raumaufteilung und stilvoller Ausstattung. Bereits beim Betreten empfängt Sie ein einladender Vorraum, der Sie zentral in alle Räume der Wohnung führt. Gleich links befindet sich das separate WC – mit Handwaschbecken ausgestattet.

Die beiden Schlafzimmer bieten Rückzugsmöglichkeiten mit Wohlfühlambiente. Ob als ruhiges Elternschlafzimmer, helles Kinderzimmer oder Homeoffice – hier lässt sich Ihr individuelles Wohnkonzept ideal umsetzen. Große Fensterflächen sorgen für viel Tageslicht und sind – wie in der gesamten Wohnung – mit elektrischen Außenjalousien ausgestattet, die für Komfort und optimale Beschattung auf Knopfdruck sorgen.

Ein besonderes Plus ist der verflieste Abstellraum mit Waschmaschinenanschluss – praktisch, pflegeleicht und perfekt für die tägliche Organisation im Haushalt.

Das Herzstück der Wohnung bildet das lichtdurchflutete Wohnzimmer mit offener, zeitloser Küche samt Markengeräten. Hier verschmelzen Kochen, Essen und Wohnen zu einem großzügigen, einladenden Lebensbereich. Ein echtes Highlight ist der direkte Zugang auf den rund 12 m² großen Balkon – sonnig und südlich ausgerichtet, mit Weitblick und einem eigenen Wasseranschluss, ideal für Urban Gardening oder entspannte Stunden im Freien.

In der gesamten Wohnung sorgt eine energieeffiziente Fußbodenheizung für gleichmäßige, behagliche Wärme – perfekt ergänzt durch die hochwertige Ausstattung, den schönen Parkettboden und das stilvolle Badezimmer mit Badewanne und Doppelwaschbecken.

Diese Wohnung ist mehr als nur ein Zuhause – sie ist ein Ort zum Ankommen, Wohlfühlen und Leben.

Raumaufteilung

  • Vorraum und zentraler Gang

  • Großzügiges Wohnzimmer mit zeitloser Küche

  • Zwei ruhige Schlafzimmer

  • Badezimmer mit Wanne und Doppelwaschbecken

  • Separates WC mit Handwaschbecken

  • Praktischer Abstellraum mit Waschmaschinenanschluss

  • Südlich ausgerichteter Balkon (ca. 12 m²)

  • Kellerabteil

 

Ausstattungshighlights

  • Lichtdurchflutete Räume mit Weitblick

  • Zeitlose Einbauküche mit Markengeräten

  • Fußbodenheizung

  • Elektrische Außenrollläden

  • Hochwertiger Parkettboden

  • Lift & Kellerabteil vorhanden

 

Kostenübersicht & weitere Hinweise

  • monatliche Gesamtmiete inkl. Ust.: EUR 2.199,00.-

  • Heizung, Strom und Wasser: nach Verbrauch (Fernwärme)

  • Kaution: EUR 6.600.- (3 Bruttomonatsmieten)

 

Lage & Infrastruktur

Die Karlweisgasse liegt in einer ruhigen Wohngegend mit guter öffentlicher Anbindung. Die Straßenbahnlinie 41 und die Buslinie 40A sind in wenigen Gehminuten erreichbar und bieten eine direkte Verbindung ins Stadtzentrum. Die S-Bahn-Station Gersthof ist ebenfalls fußläufig erreichbar und ermöglicht eine schnelle Anbindung an das überregionale Bahnnetz.

In unmittelbarer Nähe befinden sich zahlreiche Einkaufsmöglichkeiten, darunter Supermärkte, Bäckereien und Apotheken. Der beliebte Kutschkermarkt ist nur wenige Minuten entfernt und bietet eine Vielzahl an frischen Produkten und kulinarischen Spezialitäten.

Für Familien mit Kindern stehen mehrere Kindergärten und Schulen in der Umgebung zur Verfügung. Die Nähe zur Universität Wien und anderen Bildungseinrichtungen macht die Lage auch für Studierende attraktiv.

Erholungs- und Freizeitmöglichkeiten bieten die nahegelegenen Parks wie der Währinger Park und der Türkenschanzpark, die zu Spaziergängen und sportlichen Aktivitäten einladen.

Die Kombination aus ruhiger Wohnlage, guter Verkehrsanbindung und umfassender Infrastruktur macht die Karlweisgasse zu einem idealen Wohnort für Singles, Paare und Familien.

Der Immobilienmakler erklärt, dass er – entgegen dem in der Immobilienwirtschaft üblichen Geschäftsgebrauch des Doppelmaklers – einseitig nur für den Vermieter tätig ist.

  • 11 Freifläche
    11 m2 Freifläche
  • 108,25 Fläche
    108,25 m2 Fläche
  • gute Infrastruktur
    Gute Infrastruktur
  • 4 Zimmer
    4 Zimmer

Objektdaten

Objektnummer
25912
Objekt
Wohnung
Art
Miete
Wohnfläche
108,25 m2
Zimmer
4
Bäder
2
Toiletten
2
Abstellräume
1
monatliche Miete (Netto)
€ 2.428,96
Betriebskosten (Netto)
€ 330,13
USt
€ 275,91
Gesamtmiete
€ 3.035,00
Provision
Gemäß Erstauftraggeberprinzip bezahlt der Abgeber die Provision.
Kaution
9.200,00 €

Lage der immobilie

Mag. Yasmin Szaraniec
Beraterin

Gleich informieren und Termin vereinbaren

"*" indicates required fields

This field is hidden when viewing the form
This field is hidden when viewing the form
Anschrift
DSGVO Cookie Consent mit Real Cookie Banner