Direkt zum Inhalt wechseln

4 ZIMMER | 2 BÄDER | BALKON | KLIMAANLAGE

1060 Wien

Immobiliendetails

1060 Wien

Highlights

  • Ruhige Innenhoflage in zentraler Stadtlage

  • Dachgeschosswohnung mit Terrasse (ca. 7,98 m²)

  • Klimatisiert

  • Zwei Bäder & separates WC

Die Wohnung

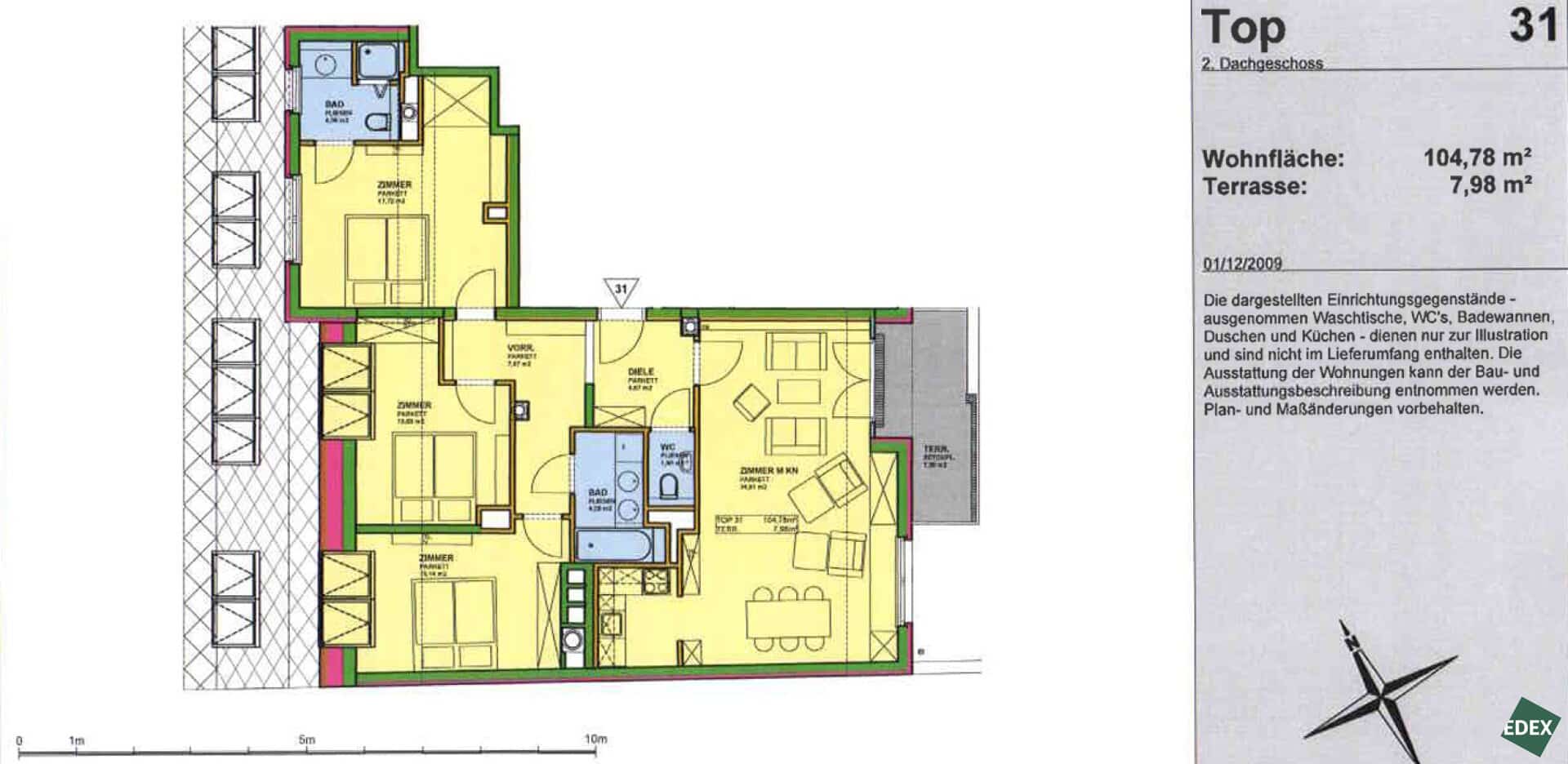
Diese hochwertige 4-Zimmer-Dachgeschosswohnung befindet sich im 2. Dachgeschoss eines gepflegten Neubaus in der Mollardgasse im 6. Wiener Gemeindebezirk. Die hofseitige Ausrichtung des Wohnbereichs sowie der Terrasse garantiert eine angenehme Wohnruhe, trotz der ausgezeichneten innerstädtischen Lage.

Die Wohnung bietet eine Nutzfläche von ca. 104,78 m² und überzeugt durch ihre durchdachte Raumaufteilung. Der großzügige Wohnraum mit angrenzender, modern ausgestatteter Markenküche bildet das Herzstück der Wohnung und verfügt über direkten Zugang zur ca. 8 m² großen Südost-Terrasse – ideal zum Entspannen im Freien.

Drei weitere Zimmer stehen als Schlaf-, Arbeits- oder Kinderzimmer zur Verfügung und bieten vielseitige Nutzungsmöglichkeiten.

Die Wohnung verfügt über zwei Badezimmer:
– eines mit Dusche und WC,
– eines mit Badewanne und Waschmaschinenanschluss.

Zusätzlich ist ein separates WC mit Handwaschbecken vorhanden. Der Vorraum verbindet alle Räume zentral und sorgt für eine angenehme Erschließung.

Hochwertiger Echtholz-Parkettboden, moderner Sanitärbereich, Video-Gegensprechanlage, Sicherheitstüre sowie die Klimaanlage runden das attraktive Gesamtangebot ab.

 

Raumaufteilung

  • Wohnraum mit angrenzender Küche und Zugang auf die ca. 8 m² große Terrasse

  • 3 Zimmer (eines davon mit En-Suite-Bad)

  • Badezimmer mit Dusche und WC

  • Badezimmer mit Badewanne und Waschmaschinenanschluss

  • Separates WC mit Handwaschbecken

  • Vorraum

  • Terrasse ca. 7,98 m²

Ausstattung

  • Parkettboden

  • Moderne, voll ausgestattete Markenküche

  • Klimaanlage

  • Video-Gegensprechanlage

  • Sicherheitstüre

  • Zentralheizung (Gas)

  • Lift im Haus

  • Kellerabteil

Lage

Die Wohnung liegt in einer der begehrtesten Wohngegenden des 6. Bezirks, nur wenige Minuten von der Mariahilfer Straße und dem Naschmarkt entfernt.
Zahlreiche Einkaufsmöglichkeiten, Gastronomiebetriebe, Cafés sowie Freizeit- und Kultureinrichtungen wie das Haus des Meeres oder das Apollo Kino befinden sich in unmittelbarer Umgebung.

Auch Schulen und Kindergärten (u. a. Volksschule Mariahilf, Amerlinggymnasium) sind rasch erreichbar. Die Lage vereint urbanes Leben, perfekte Infrastruktur und ruhiges Wohnen auf ideale Weise.

Öffentliche Anbindungen

  • U-Bahn: U4 – Station Pilgramgasse

  • Buslinien: 12A, 13A, 14A, 57A


Kosten & Konditionen

  • Gesamtmiete (inkl. USt): € 2.695,–

  • Kaution: € 8.100,–

  • Bearbeitungsgebühr (einmalig): € 155,00,– (inkl. USt.)

 

Disclamer:
Die in diesem Exposé enthaltenen Bilder dienen der Veranschaulichung und können teilweise computergenerierte Visualisierungen (Renderings) beinhalten. Die dargestellte Möblierung, einschließlich Küche und Begrünung, versteht sich ausschließlich als Gestaltungsvorschlag und ist nicht Bestandteil des Lieferumfangs oder des Vertrages. Die angegebenen Raum- und Wohnungsgrößen sowie Raumhöhen sind Richtwerte und können sich geringfügig ändern. Bauübliche Toleranzen bleiben vorbehalten. Sämtliche Maßangaben sind Circa-Werte und können abweichen. Für die Anfertigung von Einbaumöbeln sind die am Objekt genommenen Naturmaße verbindlich. Änderungen während der Bauausführung – insbesondere aufgrund behördlicher Auflagen sowie haustechnischer oder konstruktiver Erfordernisse – bleiben vorbehalten.

Der Immobilienmakler erklärt, dass er – entgegen dem in der Immobilienwirtschaft üblichen Geschäftsgebrauch des Doppelmaklers – einseitig nur für den Vermieter tätig ist.

  • 7 Freifläche
    7 m2 Freifläche
  • 104,78 Fläche
    104,78 m2 Fläche
  • gute Infrastruktur
    Gute Infrastruktur
  • 4 Zimmer
    4 Zimmer

Objektdaten

Objektnummer
25821
Objekt
Wohnung
Art
Miete
Wohnfläche
104,78 m2
Zimmer
4
Bäder
2
Toiletten
2
monatliche Miete (Netto)
€ 2.214,24
Betriebskosten (Netto)
€ 235,76
USt
€ 245,00
Gesamtmiete
€ 2.695,00
Provision
Gemäß Erstauftraggeberprinzip bezahlt der Abgeber die Provision.
Kaution
8.100,00 €

Lage der immobilie

Mag. Yasmin Szaraniec
Beraterin

Gleich informieren und Termin vereinbaren

"*" indicates required fields

This field is hidden when viewing the form
This field is hidden when viewing the form
Anschrift
DSGVO Cookie Consent mit Real Cookie Banner