Direkt zum Inhalt wechseln

Am Kutschkermarkt | Exklusive 4-Zimmer-Altbauwohnung mit rund 14 m² großer Terrasse und Grünfläche

1180 Wien

Immobiliendetails

Kutschkergasse | 1180 Wien

Am Kutschkermarkt – familiär zuhause.

Mit dem Projekt Am Kutschkermarkt, einem charmant modernisierten und ausgebautem Gründerzeithaus mit hochwertiger Ausstattung, entsteht ein Ort, der moderne Wohnqualität und Altbauflair vereint. Helle Räume, kombiniert mit eleganten Details, sowie ruhig gelegene Terrassen und Balkone laden dazu ein, nach einem Bummel über den Kutschkermarkt immer wieder gerne nach Hause zu kommen.

Die Radwege und öffentlichen Verkehrsmittel gewährleisten Mobilität ganz ohne Auto – ideal für junge Familien, die auf Nachhaltigkeit und Komfort Wert legen. Die Gegend bietet eine Vielzahl an Parks und Grünflächen, darunter der Türkenschanzpark und der Währinger Park, die ideal für Kinder zum Spielen und für Spaziergänge sind.

In unmittelbarer Nähe befinden sich mehrere Schulen und Kindergärten, die sich bequem zu Fuß oder mit dem Fahrrad erreichen lassen. Dies ist besonders für junge Familien von Vorteil, die ein vielfältiges Angebot an Bildungs- und Betreuungseinrichtungen schätzen.

In diesem Wohnprojekt stehen insgesamt neun Alt- und Neubauwohnungen zum Verkauf, mit Wohnflächen zwischen 95 m² und 130 m². Die 4-Zimmer-Wohnungen sind jeweils mit Balkonen und/oder Terrassen ausgestattet. 

Der Altbestand des Gebäudes bis zum zweiten Stockwerk wurde umfassend saniert und um drei weitere neue Stockwerke ergänzt. Jede Wohnung verfügt über Freiflächen (Balkone, Terrassen bzw. Grünflächen). Die Garage bietet Platz für sieben KFZ-Stellplätze und im Keller befinden sich eine neu errichtete Heizzentrale, Kellerabteile sowie ein Kinderwagen- und Fahrradabstellraum.

3D-Rundgang durch Musterwohnung: https://my.matterport.com/show/?m=CRWoVCsD7JS

Lage, Anbindung und Infrastruktur

Die Umgebung bietet eine optimale Infrastruktur. In wenigen Gehminuten erreicht man die U6-Station Michelbeuern/AKH und Straßenbahnlinien 42 und 9, mit denen man in weniger als 15 Minuten in die Wiener Innenstadt gelangt. Die U6-Station Währinger Straße/Volksoper ist 8 Gehminuten entfernt.

In unmittelbarer Umgebung der Liegenschaft befindet sich die Währinger Straße, wodurch die Wohnung nicht nur über eine hervorragende Anbindung, sondern über eine ausgezeichnete Infrastruktur verfügt. Supermärkte, Apotheken, Banken, zahlreiche gute Restaurants und Cafés können bequem zu Fuß erreicht werden. Die Währinger Straße und der Kutschkermarkt laden mit zahlreichen Geschäften zum entspannten Einkaufsbummel ein. Der Türkenschanzpark sowie der Pötzleinsdorfer Schlosspark sind mit der Straßenbahn sehr gut erreichbar. Der nahegelegene Wienerwald bietet Sport- und Naturbegeisterten viele Möglichkeiten der Entspannung und sportlichen Betätigung.

 

Disclamer:

Die Fotos sind von einer Musterwohnung im Haus. 

Die dargestellte Möblierung, einschließlich Küche und Begrünung, versteht sich ausschließlich als Gestaltungsvorschlag und ist nicht Bestandteil des Lieferumfangs oder des Vertrages. Die angegebenen Raum- und Wohnungsgrößen sowie Raumhöhen sind Richtwerte und können sich geringfügig ändern. Bauübliche Toleranzen bleiben vorbehalten. Sämtliche Maßangaben sind Circa-Werte und können abweichen. Für die Anfertigung von Einbaumöbeln sind die am Objekt genommenen Naturmaße verbindlich. Änderungen während der Bauausführung – insbesondere aufgrund behördlicher Auflagen sowie haustechnischer oder konstruktiver Erfordernisse – bleiben vorbehalten.

Highlights der Wohnung

  • südseitige Terrasse in den Innenhof plus rund 25 m² Grünfläche
  • Tolle Lage gleich beim Kutschkermarkt
  • Garagenplätze im Haus erwerbbar

Die Wohnung

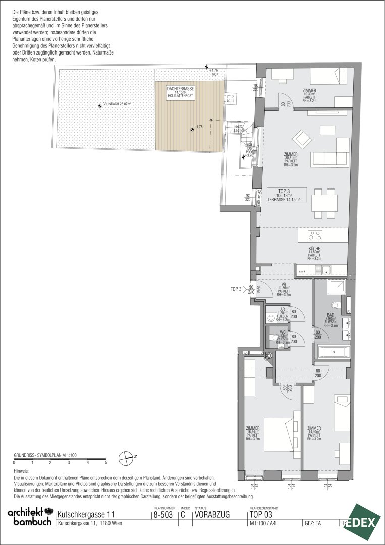
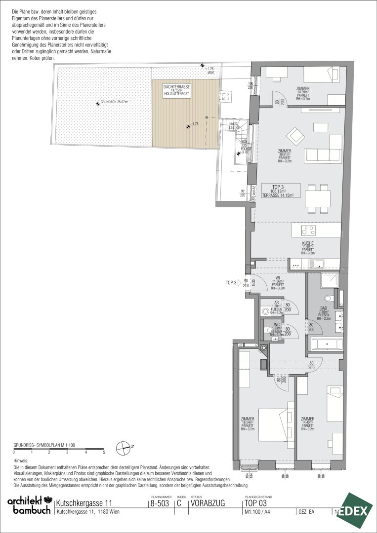
Diese wunderschöne, ca. 106 m² große 4-Zimmer-Wohnung befindet sich im 1.Liftstock im Altbau des Gebäudes. Die Wohnung besticht durch einen zentralen Vorraum, ein großzügiges Wohnzimmer mit Anschlüssen für eine offene Küche, drei Schlafzimmer, einen Abstellraum mit Waschmaschinenanschluss, ein Badezimmer mit Dusche, Badewanne, WC und Doppelwaschbecken sowie ein separates WC. Das Highlight ist die rund 14 m² große südlich ausgerichtete Terrasse mit anschließender rund 25 m² großer Grünfläche, die über eine Treppe von der Wohnküche aus zugänglich ist und ausreichend Platz für die persönliche Grünoase bietet.

Alle Wohnräume sind mit hochwertigem Eichenparkett ausgestattet, während das Badezimmer mit zeitlos eleganten Fliesen versehen ist. In der gesamten Wohnung sorgt eine Fußbodenheizung für angenehmen Komfort. Zusätzlichen Stauraum bietet ein Kellerabteil. Im Haus stehen zudem ein Kinderwagen- sowie ein Fahrradabstellraum zur Verfügung. Weiters gibt es eine Tiefgarage mit 7 KFZ-Stellplätzen.

Ausstattung

  • ca. 14 m² große Terrasse und 25,06 m² Grünfläche
  • Luft-Wasser-Wärmepumpe in Kombination mit Photovoltaik-Modulen
  • Fußbodenheizung mit Einzelraumregelung
  • Holzparkettboden
  • Außenbeschattung der Fenster hofseitig
  • Klimaanlage im 1.OG –3.OG vorbereitet
  • Sicherheits-Wohnungseingangstüren (WK3)
  • Gegensprechanlage mit Video
  • Sanitärausstattung der Marke Laufen
  • Kellerabteil
  • Personenaufzug
  • Kinderwagenabstellraum
  • Fahrradabstellraum

Die Fotos sind von der Musterwohnung im Haus. 

Weitere Wohnungen zum Verkauf in der Liegenschaft

In dem Haus stehen noch weitere neu sanierte Altbauwohnungen, sowie neu errichtete Neubau- und Dachgeschoß-Wohnungen zum Verkauf (Exposés auf Anfrage):

Erdgeschoss:

  • Top 1 ca. 95,19 m² großer 4-Zimmer-Altbau mit ca. 9,49 m² Terrasse: EUR 690.000,-

1. Obergeschoss:

  • TOP 2 ca. 105,34 m² großer 4-Zimmer-Altbau mit ca. 16,87 m² Terrasse und 15,21m² Grünfläche: EUR 939.000,-
  • TOP 3 ca. 106,13 m² großer 4-Zimmer-Altbau mit ca. 14,15 m² Terrasse und 25,06 m² Grünfläche: EUR 943.000,-

2. Obergeschoss:

  • TOP 4 ca. 105,85 m² großer 4-Zimmer-Altbau mit ca. 11,93 m² Balkon: VERKAUFT
  • TOP 5 ca. 105,99 m² großer 4-Zimmer-Altbau mit ca. 9,92 m² Balkon: VERKAUFT 

3. Obergeschoss:

  • TOP 6 ca. 104,15 m² großer 4-Zimmer-Neubau mit ca. 11,93 m² Balkon: VERKAUFT
  • TOP 7 ca. 103,42 m² großer 4-Zimmer-Neubau mit ca. 10,01 m² Balkon: EUR 998.000,-

1./2. Dachgeschoß:

  • TOP 8 ca. 130,22 m² großer 4-Zimmer-Neubau mit ca. 32,39 m² Dachterrasse und 11,93 m² Balkon: VERKAUFT
  • TOP 9 ca. 104,32 m² großer 4-Zimmer-Neubau mit ca. 20,42 m² Dachterrasse und 5,66 m² Dachterrasse: VERKAUFT

Hinweis gemäß Energieausweisvorlagegesetz: Ein Energieausweis wurde vom Eigentümer bzw. Verkäufer, nach unserer Aufklärung über die generell geltende Vorlagepflicht, sowie Aufforderung zu seiner Erstellung noch nicht vorgelegt. Daher gilt zumindest eine dem Alter und der Art des Gebäudes entsprechende Gesamtenergieeffizienz als vereinbart. Wir übernehmen keinerlei Gewähr oder Haftung für die tatsächliche Energieeffizienz der angebotenen Immobilie.

Wir weisen darauf hin, dass zwischen dem Vermittler und dem zu vermittelnden Dritten ein familiäres oder wirtschaftliches Naheverhältnis besteht.

Der Vermittler ist als Doppelmakler tätig.

  • 39 Freifläche
    39 m2 Freifläche
  •  Fläche
    106,13 m2 Fläche
  • gute Infrastruktur
    Gute Infrastruktur
  • 4 Zimmer
    4 Zimmer

Objektdaten

Objektnummer
26474
Objekt
Wohnung
Art
Kauf
Nutzfläche
106,13 m2
Zimmer
4
Bäder
1
Toiletten
2
Abstellräume
1
Kaufpreis
€ 943.000,00
Betriebskosten (Netto)
€ 0,00
Gesamtbelastung
€ 0,00
Provision
3% des Kaufpreises zzgl. 20% USt.

Lage der immobilie

Mag. Michaela Sauer
Beraterin

Gleich informieren und Termin vereinbaren

"*" indicates required fields

This field is hidden when viewing the form
This field is hidden when viewing the form
Anschrift
DSGVO Cookie Consent mit Real Cookie Banner