Direkt zum Inhalt wechseln

Charmante 5-Zimmer-Altbauwohnung nahe dem Schubertpark

1180 Wien

Immobiliendetails

Mitterberggasse | 1180 Wien

Highlights

  • Umfassende Sanierung durch den Verkäufer

  • Toplage im 18. Bezirk mit Schulen, Parks und Einkaufsmöglichkeiten

  • Hervorragende Verkehrsanbindung und Infrastruktur

  • Nur 10 Gehminuten zum beliebten Kutschkermarkt

Objektbeschreibung

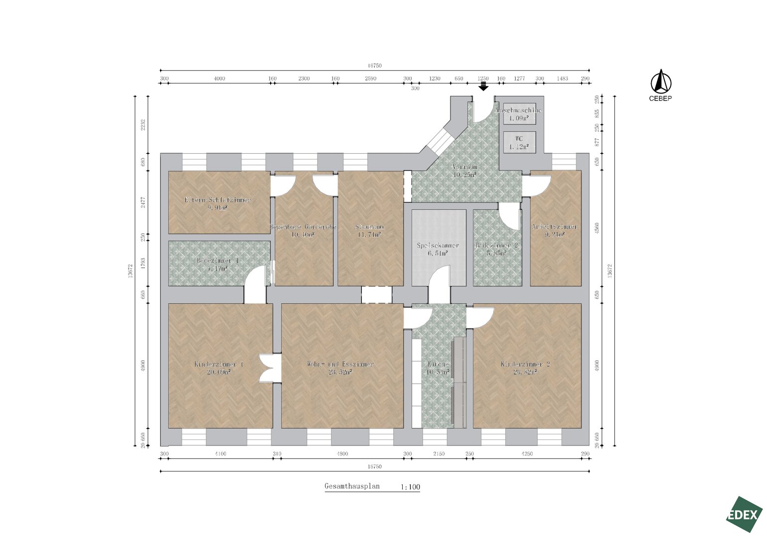
Diese charmante, ca. 149 m² große 5-Zimmer-Wohnung befindet sich im 1. Liftstock eines gepflegten Altbaus im begehrten 18. Wiener Gemeindebezirk, nur wenige Schritte vom Schubertpark entfernt. Der Eigentümer plant eine umfassende Sanierung, wodurch sich die Raumaufteilung wie folgt gestalten könnte (Änderungen vorbehalten):

  • Wohn- und Essbereich: ca. 23,52 m²

  • Zimmer 1: ca. 20,09 m²

  • Zimmer 2: ca. 20,82 m²

  • Zimmer 3: ca. 9,91 m² + begehbare Garderobe: ca. 10,40 m²

  • Zimmer 4 (Arbeitszimmer): ca. 9,21 m²

  • Küche: ca. 10,54 m²

  • Speisekammer: ca. 6,51 m²

  • Badezimmer 1: ca. 7,17 m²

  • Badezimmer 2: ca. 5,85 m² (inkl. geplantem zweiten WC)

  • Abstellraum / Stauraum: ca. 11,71 m²

  • Separates WC: ca. 1,12 m²

  • Wirtschaftsraum mit Waschmaschinenanschluss: ca. 1,09 m²

Die Zimmer 1 und 2 sind straßenseitig ausgerichtet, Zimmer 3 und 4 bieten ruhige Hoflage. Eine Skizze zur geplanten Raumaufteilung ist beigefügt.

Für zusätzlichen Stauraum steht ein großzügiges Kellerabteil zur Verfügung. Im Innenhof besteht zudem die Möglichkeit, Fahrräder bequem abzustellen.
 

Lage und Infrastruktur

Die Währinger Straße und der Kutschkermarkt laden mit zahlreichen Geschäften zum entspannten Einkaufsbummel ein. Mit den Straßenbahnlinien 40, 41 und 42 erreicht man sowohl die Wiener Innenstadt als auch Erholungszonen wie den Pötzleinsdorfer Schlosspark in wenigen Minuten. Die U6-Station Altes AKH befindet sich ebenfalls in Fußnähe und garantiert eine ideale Verkehrsanbindung. Der nahegelegene Wienerwald bietet Sport- und Naturbegeisterten viele Möglichkeiten der Entspannung und sportlichen Betätigung.
 

Öffentliche Verkehrsmittel

  • Straßenbahnlinien: 40, 41, 42, 9
  • U-Bahn: U6
  • Bus 10A, 42A
  • S 45 Gersthof
     

Disclaimer

Die in diesem Exposé enthaltenen Bilder dienen der Veranschaulichung und können teilweise computergenerierte Visualisierungen (Renderings) beinhalten. Diese Darstellungen sollen einen Eindruck von der möglichen Gestaltung der Immobilie vermitteln, stellen jedoch keine verbindliche Beschaffenheitsangabe dar. Die abgebildeten Möbel und Einrichtungsgegenstände dienen ausschließlich der Illustration und sind nicht Bestandteil des Kauf- oder Mietgegenstandes.

  •  Fläche
    148,38 m2 Fläche
  • gute Infrastruktur
    Gute Infrastruktur
  • 5 Zimmer
    5 Zimmer

Objektdaten

Objektnummer
25660
Objekt
Wohnung
Art
Kauf
Nutzfläche
148,38 m2
Zimmer
5
Bäder
2
Toiletten
2
Kaufpreis
€ 949.000,00
Betriebskosten (Netto)
€ 342,63
Reparaturrücklage (Netto)
€ 256,98
Sonstiges (Netto)
€ 0,80
Liftkosten (Netto)
€ 64,29
Gesamtbelastung
€ 705,55
Provision
3% des Kaufpreises zzgl. 20% USt.

Lage der immobilie

Mag. Michaela Sauer
Beraterin

Gleich informieren und Termin vereinbaren

"*" indicates required fields

This field is hidden when viewing the form
This field is hidden when viewing the form
Anschrift
DSGVO Cookie Consent mit Real Cookie Banner