Direkt zum Inhalt wechseln

Charmantes und renoviertes 2-Raum-Büro/Ordination

1170 Wien

Immobiliendetails

1170 Wien

Highlights des Büros

  • Ideale öffentliche Anbindung

  • 2 separat begehbare Zimmer

  • Gute Raumaufteilung

  • Als Ordination nutzbar (Umsatzsteuer Äquivalent)

Objektbeschreibung
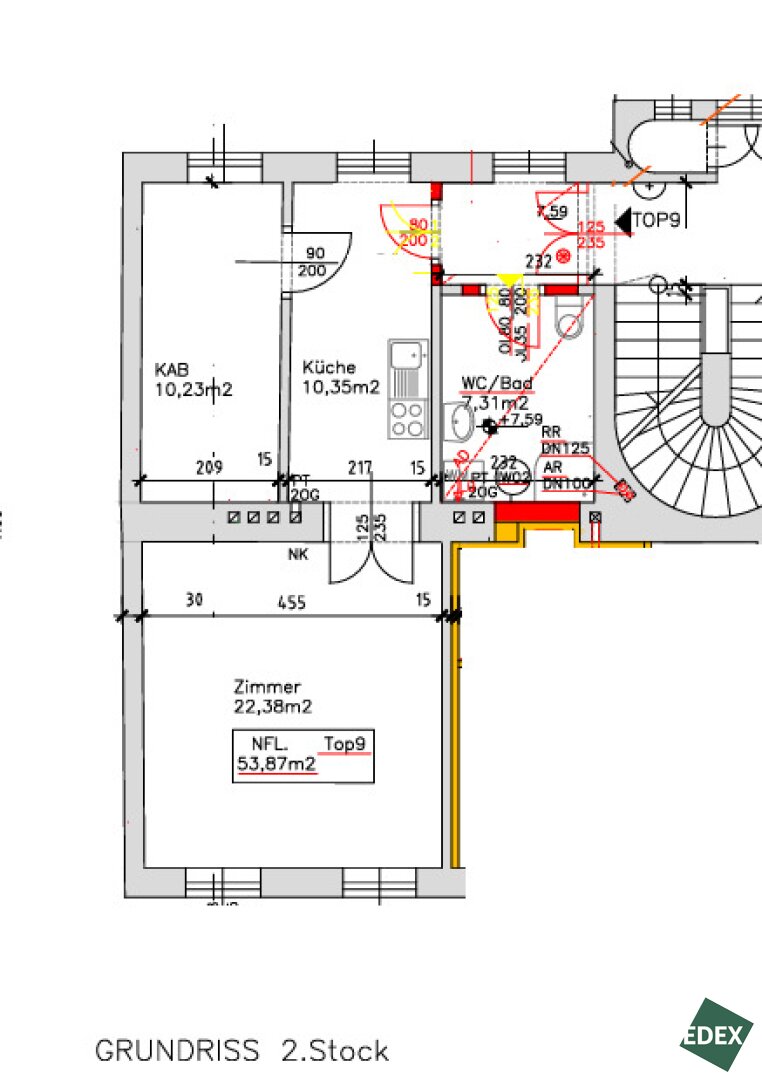
Dieses 2-Raum-Büro im 2. Stock (ohne Lift) liegt direkt an der Hernalser Hauptstraße im 17. Wiener Gemeindebezirk. Das rund 53,87 m² große Büro verfügt über einen großzügigen Arbeitsraum, ein hofseitig ausgerichtetes separates Zimmer, einen Vorraum, eine Küche (Küchenanschlüsse vorhanden) sowie ein großes Badezimmer mit Dusche und WC. Geheizt wird mit einer Infrarotheizung. Das Büro wurde renoviert und kann ab sofort angemietet werden.

Umgebung
Das Büro befindet sich in ausgezeichneter Lage auf der Hernalser Hauptstraße im Herzen des 17. Bezirks, unweit der Schnellbahnlinie S45. Die Umgebung bietet eine hervorragende Nahversorgung mit zahlreichen Geschäften, Supermärkten und Lokalen. In wenigen Gehminuten erreicht man das Kongressbad oder die Alszeile. Mit der Straßenbahnlinie 43 ist man in ca. 15 Minuten sowohl in der Innenstadt als auch in Neuwaldegg mit dem Naherholungsgebiet Wienerwald.

Infrastruktur

  • S-Bahn: S45 Hernals

  • Straßenbahn: 2, 43

  • Buslinien: 10A

 

*Alle Preise verstehen sich zuzüglich der gesetzlichen Umsatzsteuer.

 

Wir weisen darauf hin, dass zwischen dem Vermittler und dem zu vermittelnden Dritten ein familiäres oder wirtschaftliches Naheverhältnis besteht.

Der Vermittler ist als Doppelmakler tätig.

  •  Fläche
    53,87 m2 Fläche
  • gute Infrastruktur
    Gute Infrastruktur
  • 2 Zimmer
    2 Zimmer

Objektdaten

Objektnummer
26269
Objekt
Büro / Praxis
Art
Miete
Nutzfläche
53,87 m2
Zimmer
2
Bäder
1
Toiletten
1
monatliche Miete (Netto)
€ 749,00
Betriebskosten (Netto)
€ 0,00
Gesamtmiete
€ 749,00
Provision
3 Bruttomonatsmieten zzgl. 20% USt.
Kaution
3 Bruttomonatsmieten

Lage der immobilie

David Schober, MSc
Leitung Vermietung Wohnen

Gleich informieren und Termin vereinbaren

"*" indicates required fields

This field is hidden when viewing the form
This field is hidden when viewing the form
Anschrift
DSGVO Cookie Consent mit Real Cookie Banner