Direkt zum Inhalt wechseln

Erstbezug nach Sanierung – Exklusives Geschäftslokal unweit der Mariahilfer Straße

1060 Wien

Immobiliendetails

1060 Wien

Highlights 

  • Eigener Innenhof
  • Große Fensterfront
  • Ausgezeichnete Lage

Das Objekt

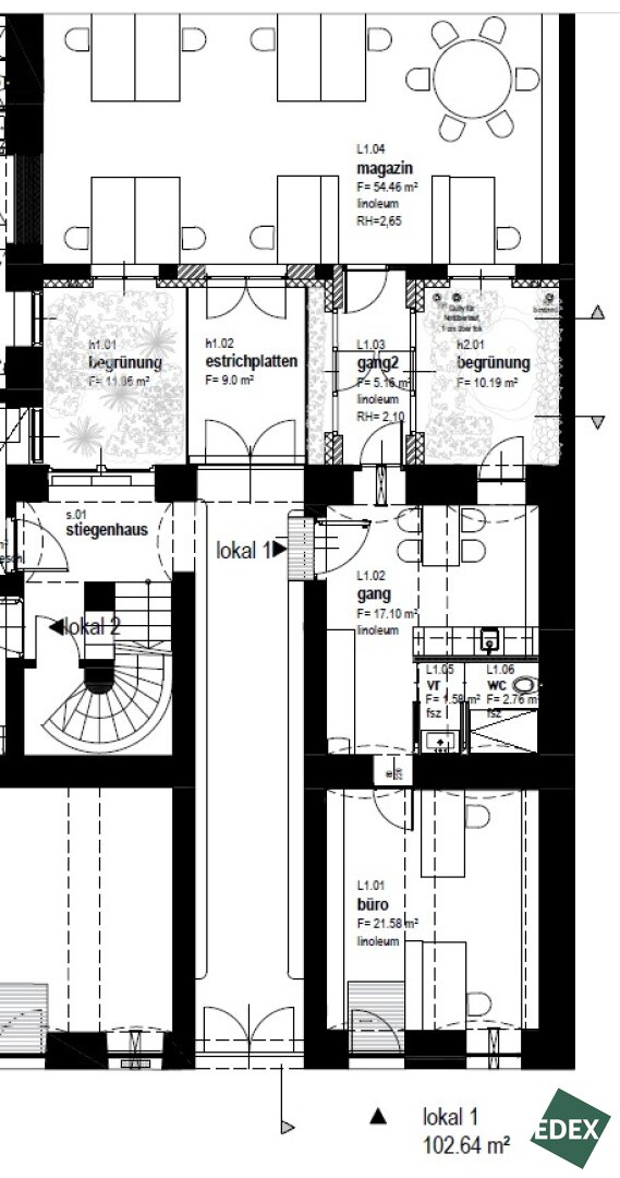
In der Königsegggasse im 6. Wiener Gemeindebezirk gelangt diese schöne, aufwändig saniert Geschäftsfläche ab sofort zur Vermietung. Die ca. 103 m² große Fläche befindet sich im Erdgeschoss und ist barrierefrei zugänglich. Das Objekt verfügt über einen straßenseitigen Verkaufsraum, einen Aufenthalts-/Lagerraum inkl. Anschlüsse für eine Teeküche, einen großen Raum im hinteren Bereich des Objekts, sowie ein Badezimmer, das mit einer Dusche, einem Waschbecken und einem WC ausgestattet ist. Besonderes Highlight ist ein kleiner Innenhof, der zu dem Objekt gehört, sowie der verglaste Verbindungsgang zwischen den Verkaufsräumen.

Die großen, tlw. bodentiefen Fenster garantieren Helligkeit und gleichzeitig gute Sichtbarkeit. Das Objekt ist sowohl straßenseitig, über den Innenhof, als auch über das Stiegenhaus erreichbar. Die hochwertige Ausstattung garantiert einen repräsentativen Unternehmensauftritt. Das Haus ist in einem makellosen Zustand. 

Verkehrsanbindung & Infrastruktur

Die Mariahilfer Straße befindet sich in unmittelbarer Umgebung, wodurch das Geschäftslokal über eine hervorragende Infrastruktur verfügt. Supermärkte, zahlreiche gute Restaurants und Cafés können bequem zu Fuß erreicht werden. In wenigen Gehminuten erreicht man die U-Bahn-Stationen Zieglergasse (U3) oder Pilgramgasse (U4). In unmittelbarer Nähe der Geschäftsfläche fahren die Buslinien 13A, 14A und 57A. Auch die Wiener Innenstadt ist schnell erreichbar.

Ausstattung

  • Linoleumboden
  • Dusche
  • Anschlüsse für Teeküche
  • Bodentiefe Fenster

Verkehrsanbindung

  • U-Bahn: U3, U4
  • Bus: 13A, 14A, 57A

* Alle Preise verstehen sich zuzüglich der gesetzlichen Umsatzsteuer.

Der Vermittler ist als Doppelmakler tätig.

  •  Fläche
    102,64 m2 Fläche
  • gute Infrastruktur
    Gute Infrastruktur

Objektdaten

Objektnummer
26165
Objekt
Büro / Praxis
Art
Miete
Nutzfläche
102,64 m2
Bäder
1
Toiletten
1
monatliche Miete (Netto)
€ 1.539,60
Betriebskosten (Netto)
€ 314,08
Sonstiges (Netto)
€ 1,50
Gesamtmiete
€ 1.855,18
Provision
3 Bruttomonatsmieten zzgl. 20% USt.
Kaution
3-6 Bruttomonatsmieten

Lage der immobilie

Philip Zorn
Leitung Administration

Gleich informieren und Termin vereinbaren

"*" indicates required fields

This field is hidden when viewing the form
This field is hidden when viewing the form
Anschrift
DSGVO Cookie Consent mit Real Cookie Banner