Zum Inhalt springen

Erstbezug nach Sanierung – Repräsentatives Altbau-Büro nahe Rathaus mit Terrasse

1010 Wien

Immobiliendetails

1010 Wien

Das Büro

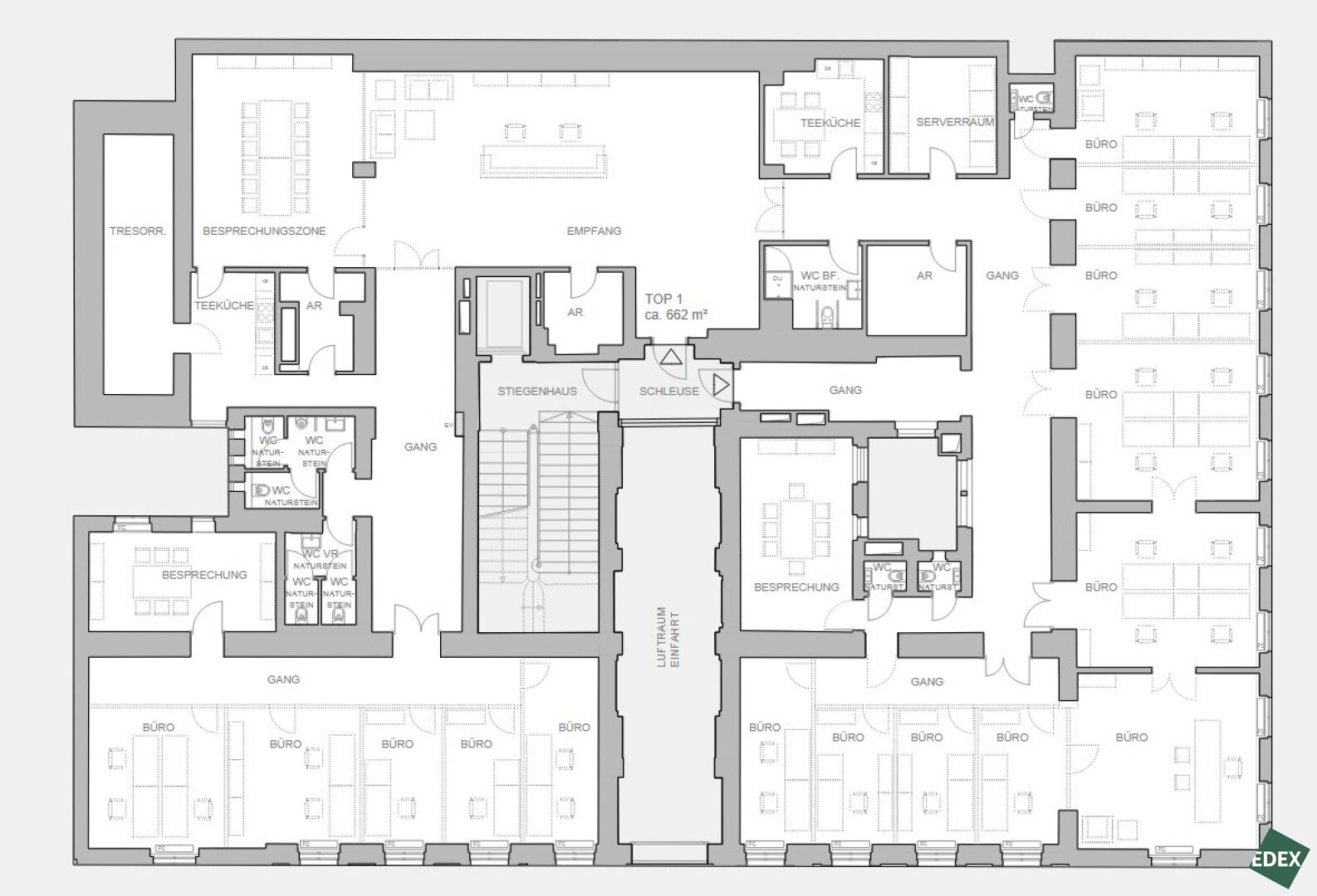
Zur Vermietung gelangt diese hochwertige und repräsentative Bürofläche mit ca. 631 m² Nutzfläche im 1. Obergeschoss eines wunderschönen Altbaus in absoluter Bestlage des 1. Wiener Gemeindebezirks.

Das gerade erst sanierte Objekt verfügt über einen repräsentativen Eingangsbereich mit Empfang, mehrere großzügige Bürozimmer sowie Anschlüsse für Teeküchen. Zusätzlich stehen ein gekühlter Serverraum sowie getrennte WC-Einheiten, darunter ein barrierefreies WC, zur Verfügung. Das Haus ist in einem makellosen Zustand und garantiert einen repräsentativen Unternehmensauftritt.

Ein besonderes Highlight ist die wunderschöne Terrasse im Innenhof, die direkt von einem der Büros zugänglich ist und eine attraktive Aufenthaltsmöglichkeit für Mitarbeiter bietet.

In wenigen Gehminuten erreicht man den Rathausplatz. Durch die prominente Lage verfügt die Fläche über eine hervorragende Infrastruktur. Restaurants und Einkaufsmöglichkeiten, sowie öffentliche Verkehrsmittel sind fußläufig zu erreichen. 

Der Grundriss kann in Abstimmung mit dem zukünftigen Mieter individuell gestaltet werden. Der Innenausbau bietet derzeit noch entsprechenden Gestaltungsspielraum, insbesondere im Hinblick auf Bodenbeläge sowie die Ausführung einer Teeküche. Im Kellergeschoss sowie im Souterrain können bei Bedarf weitere Abstellflächen angemietet werden.

Zusätzlich zu den oben angeführten Betriebskosten werden aktuell monatlich EUR 258,93 für die Wartung der Heiz- und Kühlgeräte (Fan-Coils) vorgeschrieben. Die Abrechnung der Heiz- und Kühlkosten sowie des Warmwassers erfolgt durch ein externes Unternehmen direkt mit dem Mieter.

Verfügbare Büroflächen:

Hochparterre, Top 1, ca. 662 m²
1.OG Gesamt Top 2 + 3, ca. 636 m², teilbar in:
1.OG, Top 2, ca. 239 m²
1.OG, Top 3, ca. 392 m²

Highlights                     

  • Erstbezug nach Sanierung

  • Kühlung über FanCoils

  • Terrasse 

  • gekühlter Serverraum (CAT 7)

  • mehrere getrennte Toiletten davon ein barrierefreies WC + Dusche

 

Verkehrsanbindung & Infrastruktur

Die Bürofläche befindet sich in ausgezeichneter Innenstadtlage in der Rathausstraße, im Herzen des 1. Wiener Gemeindebezirks. Die Umgebung bietet eine hervorragende Infrastruktur mit zahlreichen Restaurants, Cafés, Einkaufsmöglichkeiten sowie kulturellen Einrichtungen in unmittelbarer Nähe.

Die öffentliche Verkehrsanbindung ist ausgezeichnet. Die U-Bahn-Stationen Schottentor (U2) sowie Herrengasse (U3) sind fußläufig erreichbar. Zusätzlich stehen mehrere Straßenbahn- und Buslinien in unmittelbarer Nähe zur Verfügung.

 

*Alle Preise verstehen sich zzgl. der gesetzlichen Umsatzsteuer 

  •  Fläche
    631,54 m2 Fläche
  • gute Infrastruktur
    Gute Infrastruktur

Objektdaten

Objektnummer
27022
Objekt
Büro / Praxis
Art
Miete
Nutzfläche
631,54 m2
monatliche Miete (Netto)
€ 17.683,12
Betriebskosten (Netto)
€ 1.768,31
Gesamtmiete
€ 19.451,43
Provision
3 Bruttomonatsmieten zzgl. 20% USt.
Kaution
6 Bruttomonatsmieten

Lage der immobilie

Harald Anderlik
Leitung Büroimmobilien

Gleich informieren und Termin vereinbaren

"*" indicates required fields

This field is hidden when viewing the form
This field is hidden when viewing the form
Anschrift
DSGVO Cookie Consent mit Real Cookie Banner