Direkt zum Inhalt wechseln

Erstbezug: Traumhaftes Townhouse mit Terrasse und Garten im 19. Bezirk

1190 Wien

Immobiliendetails

1190 Wien

Projektvorstellung

In bester Lage im 19. Bezirk wurden im März 2026 insgesamt 10 stilvoll ausgestattete Neubauwohnungen sowie 1 modernes Townhouse fertiggestellt und sind ab sofort zur Anmietung verfügbar. Das Projekt vereint modernes Wohnen mit durchdachter Architektur, nachhaltiger Energieversorgung und hochwertiger Ausstattung.

Die Wohnungen mit einer Größe von ca. 48 m² bis 137 m² verfügen über ein bis drei Zimmer und bieten großzügige Grundrisse mit durchdachter Raumaufteilung. Beinahe jede Einheit verfügt über eine Freifläche in Form von Balkon, Terrasse oder Garten – für mehr Licht, Luft und Lebensqualität. Die intelligente Raumnutzung vermittelt selbst bei kleineren Flächen Großzügigkeit. Der zentrale Wohnbereich mit offener Küche (ausgestattet mit modernen SIEMENS-Geräten) schafft einen harmonischen Mittelpunkt für entspanntes Wohnen. 

Die hochwertige Ausstattung umfasst zum Beispiel Parkettböden aus Eiche, 3-fach-Verglasungen der Fenster, elegante Bäder sowie moderne Einbauküchen. Außerhalb der eigenen vier Wände steht ein Fahrradabstellraum zur Verfügung. Die unmittelbare Umgebung des Projekts ist geprägt von viel Grün und zahlreichen Naherholungsgebieten. In unmittelbarer Nähe zu den Weinbergen bietet die Umgebung eine ideale Kombination aus naturnaher Erholung und einer gut ausgebauten Infrastruktur.

Das Haus verfügt über trockene Kellerabteile, Fahrrad- und Kinderwagenabstellräume sowie über ein großzügiges Stiegenhaus, über welches alle Wohneinheiten zu Fuß oder mit dem Lift barrierefrei zu erreichen sind. In der großzügigen Tiefgarage des Hauses kann ein Stellplatz um EUR 155,- Brutto angemietet werden. 

Komfort trifft Nachhaltigkeit – Heizen und Kühlen mit der Kraft der Erde

Das Wohnprojekt setzt neue Maßstäbe in Sachen Wohnkomfort und Energieeffizienz. Dank modernster Geothermie-Technologie wird die natürliche Wärme der Erde genutzt, um an kalten Tagen wohlige Wärme und im Sommer angenehme Frische zu liefern – ganz ohne fossile Brennstoffe. Eine innovative Wärmepumpenanlage entzieht dem Erdreich oder dem Grundwasser Energie und verwandelt sie in behagliche Raumtemperaturen oder sanfte Kühlung – nahezu lautlos, wartungsarm und umweltschonend. 

Für Heizung, Kühlung sowie Warm- und Kaltwasser wird ein monatliches Akonto von € 2,– pro m² verrechnet.

Ausstattung im Überblick

  • Erstbezug mit hochwertigen Materialien

  • Heizung und Kühlung mittels Erdwärmesonden

  • Moderne Einbauküchen mit SIEMENS-Geräten

  • Eichenparkettböden

  • Elektrische außenliegender Sonnenschutz

  • 3-fach-Isolierverglasung

  • Hochwertige Einrichtung inkl. Lampen & Kleiderschränken

  • Vollwärmeschutzfassade

  • Sicherheitstüren

  • Personenlift (barrierefrei), großzügiges Stiegenhaus

  • Fahrrad- und Kinderwagenabstellräume

  • Eigene Einlagerungsräume

  • Photovoltaikanlage am Haus

  • Tiefgarage im Haus

Beste Infrastruktur im 19. Bezirk

Die Glanzinggasse 10 liegt in einer der begehrtesten und grünsten Wohnlagen des 19. Bezirks und bietet eine ruhige, hochwertige Umgebung nahe der Wiener Weinberge. Das Umfeld ist geprägt von viel Natur, gepflegten Parks und zahlreichen Naherholungsgebieten, die zu Spaziergängen, Sport und Entspannung einladen. Gleichzeitig stehen in der näheren Umgebung diverse Einkaufsmöglichkeiten, Bildungseinrichtungen und Angebote des täglichen Bedarfs zur Verfügung. Die Lage verbindet naturnahes Wohnen mit einer gut strukturierten Infrastruktur. Durch die solide Anbindung an den öffentlichen Verkehr und die rasche Erreichbarkeit der Innenstadt eignet sich die Umgebung ideal für all jene, die Ruhe schätzen, aber dennoch urban angebunden bleiben möchten. Insgesamt bietet die Adresse eine außergewöhnlich hohe Lebens- und Wohnqualität.


Mietbeginn: ab 01.04.2026
Mietdauer: befristet auf 5 Jahre
Besichtigungen: Jederzeit nach Vereinbarung möglich

 

 

Objektbeschreibung

Zur Vermietung gelangt ein modernes Haus mit mehreren Ebenen, das durch eine gut durchdachte Raumaufteilung, hochwertige Ausstattung und großzügige Außenflächen überzeugt. Das Objekt bietet insgesamt mehrere Schlafzimmer, zwei Badezimmer, drei separate WCs, eine große Wohnküche sowie zusätzliche Abstell- und Nebenräume.

Im Erdgeschoss befindet sich der offen gestaltete Wohnbereich mit moderner Einbauküche. Von hier aus gelangt man direkt auf die weitläufige Terrasse und in den großen Garten. Ebenfalls auf dieser Ebene liegen ein Vorraum sowie praktische Abstellräume.

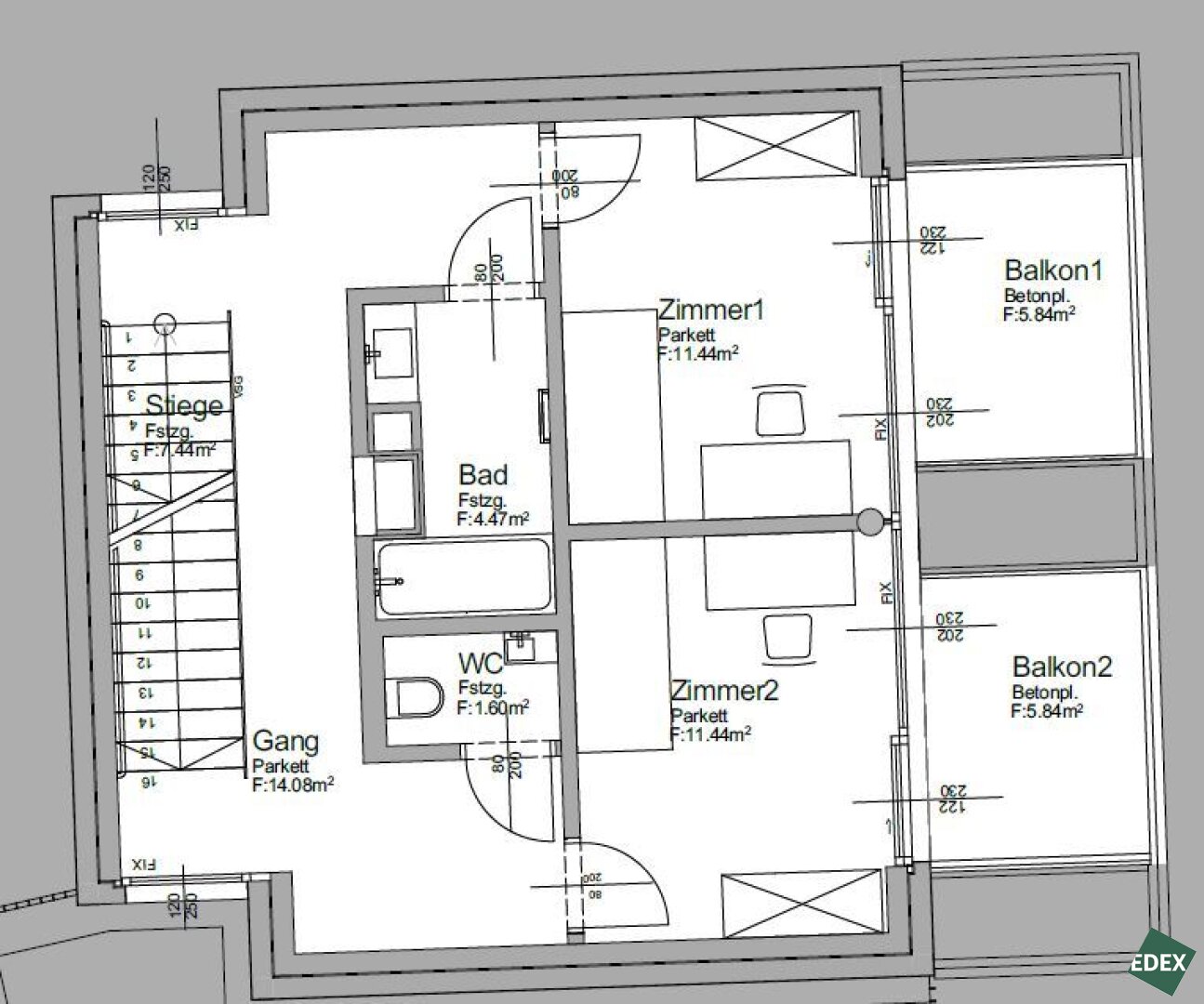
Das Obergeschoss beherbergt zwei nahezu gleich große Schlafzimmer, ein Badezimmer sowie zwei Balkone, die von beiden Zimmern aus begehbar sind. Der zentrale Gang verbindet alle Räume dieser Ebene.

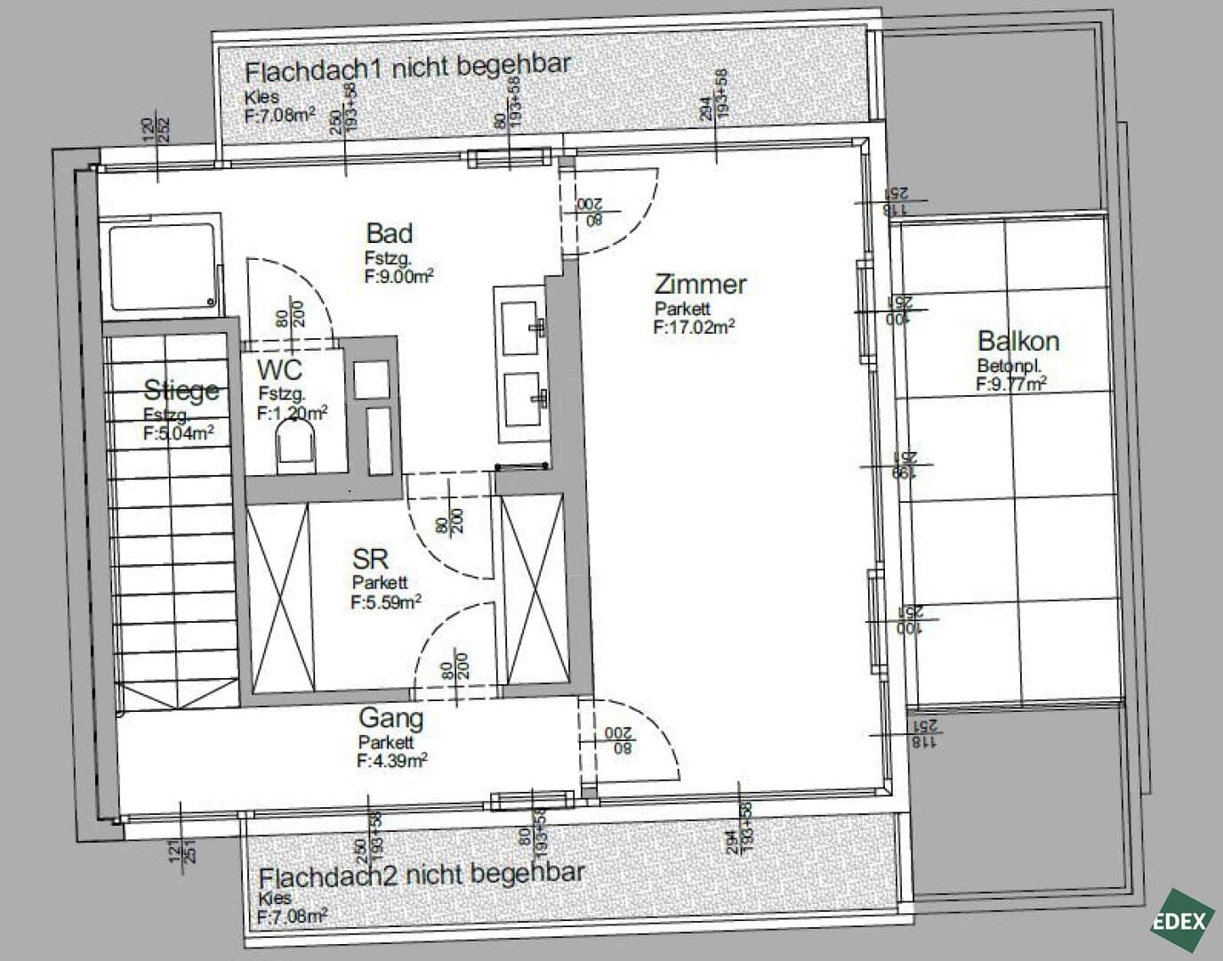
Im Dachgeschoss befindet sich ein weiterer großzügiger Wohn- bzw. Schlafraum, ein großes Badezimmer, ein separates WC, ein zusätzlicher Stauraum sowie ein weiterer Balkon. Die angrenzenden Flachdachbereiche sind nicht begehbar.

Die Wohnräume sind mit Parkettböden ausgestattet, die Sanitärbereiche mit hochwertigen Fliesen. Sämtliche Fenster verfügen über außenliegenden Sonnenschutz.


Ausstattung

  • Moderne Einbauküche mit Markengeräten

  • Parkettböden in den Wohn- und Schlafräumen

  • Elegante Fliesen in Bad und WC

  • Mehrere Badezimmer (Dusche und Badewanne)

  • Drei separate WCs

  • Großzügige Terrasse und Garten

  • Mehrere Balkone

Der Immobilienmakler erklärt, dass er – entgegen dem in der Immobilienwirtschaft üblichen Geschäftsgebrauch des Doppelmaklers – einseitig nur für den Vermieter tätig ist.

  • 275 Freifläche
    275 m2 Freifläche
  • 140,97 Fläche
    140,97 m2 Fläche
  • gute Infrastruktur
    Gute Infrastruktur
  • 4 Zimmer
    4 Zimmer

Objektdaten

Objektnummer
26431
Objekt
Haus
Art
Miete
Wohnfläche
140,97 m2
Zimmer
4
Bäder
2
Toiletten
3
Abstellräume
2
monatliche Miete (Netto)
€ 3.667,09
Betriebskosten (Netto)
€ 422,91
USt
€ 409,00
Gesamtmiete
€ 4.499,00
Provision
Gemäß Erstauftraggeberprinzip bezahlt der Abgeber die Provision.
Kaution
3 Bruttomonatsmieten

Lage der immobilie

David Schober, MSc
Leitung Vermietung Wohnen

Gleich informieren und Termin vereinbaren

"*" indicates required fields

This field is hidden when viewing the form
This field is hidden when viewing the form
Anschrift
DSGVO Cookie Consent mit Real Cookie Banner