Direkt zum Inhalt wechseln

Exklusive Altbauwohnung mit Designküche nahe Schloss Belvedere

1030 Wien

Immobiliendetails

1030 Wien

English version below

Highlights

  • Großzügige Wohnküche mit hochwertiger Designer-Küche und Kochinsel
  • Maßgefertigte Einbauschränke mit viel Stauraum
  • Klimaanlage in allen Zimmern und Vorräumen
  • Generalsanierung im Jahr 2013

Die Wohnung

Die gegenständliche Wohnung wird derzeit gemeinsam mit der angrenzenden Einheit Top 3a als eine Einheit genutzt, ist jedoch grundbücherlich getrennt und kann daher auch separat erworben werden.

Die ca. 104 m² große Wohnung befindet sich im 2. Liftstock eines umfassend sanierten Altbaus und überzeugt durch eine durchdachte Raumaufteilung sowie hochwertige Ausstattung.

Bereits beim Betreten der Wohnung empfängt Sie ein großzügiger Vorraum mit maßgefertigten Tischler-Einbauschränken, die viel Stauraum bieten.

Das Herzstück der Wohnung bildet die offene Wohnküche mit exklusiver Siematic-Designküche samt Kochinsel. Die Küche ist vollständig ausgestattet – inklusive eines neuen Kühlschranks (2025) – und bietet ideale Voraussetzungen für modernes Wohnen und geselliges Beisammensein. Der großzügige Wohn- und Essbereich fügt sich harmonisch in das offene Raumkonzept ein.

Das Schlafzimmer ist ebenfalls vom Vorraum aus zentral begehbar und verfügt über hochwertige Einbauschränke (Tischleranfertigung). Die ursprüngliche Planung mit freistehendem Bett ist durch vorbereitete Anschlüsse im Parkett bereits berücksichtigt.

Das Badezimmer ist mit Dusche, Waschtisch samt Unterbau, Spiegelschrank sowie Anschlüssen für Waschmaschine und Trockner ausgestattet. Ergänzt wird das Raumangebot durch ein separates WC mit Handwaschbecken.

Die Wohnung besticht durch ihre moderne und hochwertige Ausstattung:

  • Klimaanlagen in allen Zimmern und Vorräumen
  • Alarmanlage
  • 3-fach verglaste Fenster für optimale Energieeffizienz und Schallschutz
  • Hochwertige Charleston-Radiatoren, die den klassischen Altbaucharakter stilvoll unterstreichen

Sowohl das Gebäude als auch die Wohnung wurden im Jahr 2013 umfassend generalsaniert.

Ein Kellerabteil ist der Wohnung zugeordnet und bietet zusätzlichen Stauraum.

Hinweis: Die meisten Möbelstücke (ausgenommen maßgefertigte Einbauschränke) werden von den Eigentümern mitgenommen.


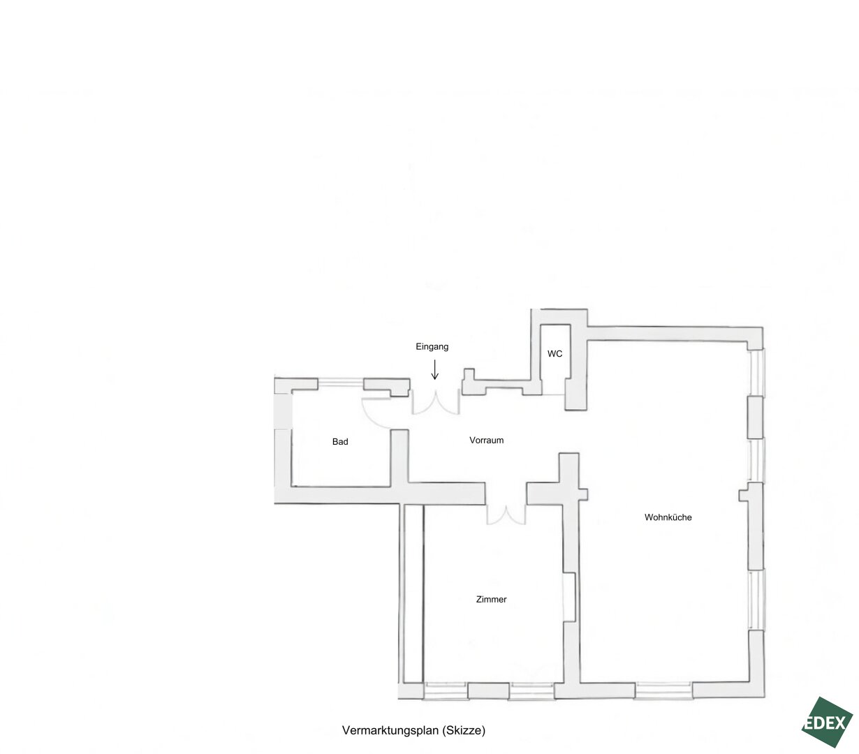
Raumaufteilung

  • Vorraum mit maßgefertigten Einbauschränken
  • Großzügige Wohnküche mit Kochinsel
  • Schlafzimmer
  • Badezimmer mit Dusche, Waschtisch und Anschlüssen für Waschmaschine und Trockner
  • Separates WC mit Handwaschbecken

Ausstattung

  • Generalsanierung von Haus und Wohnung (2013)
  • Lift (2. Stock)
  • Siematic-Designküche mit Kochinsel (inkl. Kühlschrank 2025, Backrohr, Dampfgarer, Mikrowelle, Geschirrspüler)
  • Maßgefertigte Tischler-Einbauschränke
  • 3-fach verglaste Fenster
  • Hochwertige Charleston-Radiatoren
  • Klimaanlage in allen Zimmern und Vorräumen
  • Alarmanlage
  • Villeroy & Boch Sanitäranlagen
  • Steinberg Armaturen
  • Kellerabteil

Die Wohnung überzeugt durch ihre moderne Ausstattung: In allen Zimmern und Vorräumen befinden sich Klimaanlagen, zusätzlich ist eine Alarmanlage installiert. 3-fach verglaste Fenster sorgen für eine verbesserte Energieeffizienz und Schallschutz. Hochwertige Charleston-Radiatoren unterstreichen den stilvollen Altbaucharakter.

Das gesamte Haus sowie die Wohnung wurden 2013 saniert. Ein Kellerabteil rundet dieses attraktive Angebot ab.

Hinweis: Die meisten Möbelstücke (ausgenommen maßgefertigte Einbauschränke) werden von den Eigentümern mitgenommen.

 

Lage

Die Wohnung befindet sich in einer der begehrtesten Wohnlagen des 3. Bezirks. Die Umgebung verbindet urbanes Lebensgefühl mit hervorragender Infrastruktur. Zahlreiche Nahversorger, Cafés, Restaurants sowie Parks und Grünflächen befinden sich in unmittelbarer Nähe.

Die ausgezeichnete Anbindung an das öffentliche Verkehrsnetz sowie die Nähe zur Innenstadt machen diese Lage besonders attraktiv – sowohl für Eigennutzer als auch für Anleger mit langfristigem Weitblick.

Die Wohnung befindet sich in einer der begehrtesten und repräsentativsten Wohnlagen des 3. Wiener Gemeindebezirks – nur wenige Meter vom Schlossgarten Belvedere entfernt. Die Umgebung verbindet urbanes Lebensgefühl mit hervorragender Infrastruktur. Zahlreiche Nahversorger, Feinkostgeschäfte, Cafés, Restaurants sowie Schulen und Kinderbetreuungseinrichtungen befinden sich in unmittelbarer Nähe. Auch das Botschaftsviertel sowie mehrere renommierte Bildungseinrichtungen und Bürostandorte prägen das hochwertige Umfeld.

Die Anbindung an das öffentliche Verkehrsnetz ist ausgezeichnet. Die Straßenbahnlinien 1 und O (Station Kölblgasse) sind fußläufig erreichbar und bieten eine direkte Verbindung in die Wiener Innenstadt sowie zum Hauptbahnhof. Die Schnellbahnstation Quartier Belvedere ermöglicht eine schnelle Anbindung an das gesamte Stadtgebiet sowie an den Flughafen Wien.

Auch mit dem Auto ist die Lage äußerst attraktiv: Die Südosttangente (A23) sowie die Anbindung an die Südautobahn (A2) und Ostautobahn (A4) sind in kurzer Zeit erreichbar, wodurch sowohl das Stadtzentrum als auch das Umland und der Flughafen komfortabel angebunden sind.

Die Kombination aus historischer Umgebung, urbaner Dynamik und optimaler Verkehrsanbindung macht diese Lage besonders attraktiv.

 

English Version

Highlights

  • Spacious living area with designer kitchen and kitchen island
  • High-quality custom-built wardrobes providing ample storage
  • Air conditioning in all rooms and hallways
  • Fully renovated in 2013

The Apartment

This apartment is currently used together with the adjacent unit Top 3a as one combined unit. However, it is registered separately in the land registry and can therefore be purchased individually.

The approx. 104 m² apartment is located on the 2nd floor (with elevator) of a renovated period building and impresses with its well-designed layout and high-quality finishes.

Upon entering, you are welcomed by a spacious entrance hall featuring custom-made built-in wardrobes offering generous storage space.

The centerpiece of the apartment is the open-plan living kitchen with an exclusive Siematic designer kitchen including a kitchen island. The kitchen is fully equipped – including a new refrigerator (2025) – and provides ideal conditions for modern living and entertaining. The generous living and dining area integrates seamlessly into the open layout.

The bedroom is also centrally accessible from the entrance hall and features high-quality custom-built wardrobes. The original concept of a freestanding bed has already been prepared with connections integrated into the parquet flooring.

The bathroom includes a shower, vanity unit with base cabinet, mirrored cabinet, and connections for a washing machine and dryer. A separate toilet with hand basin completes the layout.

The apartment features modern, high-end equipment:

  • Air conditioning in all rooms and hallways
  • Alarm system
  • Triple-glazed windows for enhanced energy efficiency and sound insulation
  • High-quality Charleston radiators emphasizing the classic Viennese style

Both the building and the apartment were comprehensively renovated in 2013.

A basement storage unit is included.

Note: Most furniture (except custom-built wardrobes) will be removed by the owners.

 

Location

The apartment is situated in one of the most sought-after residential areas of Vienna’s 3rd district, just a few meters from the Belvedere Palace Gardens.

The surrounding area combines urban lifestyle with excellent infrastructure. Within immediate proximity you will find:

  • Shops for daily needs and delicatessens
  • Cafés and restaurants
  • Schools and childcare facilities
  • Parks and green spaces

The prestigious neighborhood is further enhanced by the nearby embassy district and renowned educational and office locations.

Public Transport

  • Tram lines 1 and O (Kölblgasse) – direct connection to the city center and main train station
  • Quartier Belvedere train station – fast connections across the city and to Vienna Airport

By Car

  • Quick access to A23 (Southeast Tangent)
  • Easy connections to A2 (Southern Motorway) and A4 (Eastern Motorway)

The combination of historic surroundings, urban vibrancy, and excellent transport links makes this location highly attractive.

  • 104 Fläche
    104 m2 Fläche
  • gute Infrastruktur
    Gute Infrastruktur
  • 2 Zimmer
    2 Zimmer
  • Personenaufzug vorhanden
    Personenaufzug

Objektdaten

Objektnummer
26399
Objekt
Wohnung
Art
Kauf
Wohnfläche
104 m2
Zimmer
2
Bäder
1
Toiletten
1
Kaufpreis
€ 879.000,00
Betriebskosten (Netto)
€ 238,08
Reparaturrücklage (Netto)
€ 136,31
Liftkosten (Netto)
€ 16,97
Gesamtbelastung
€ 416,87
Provision
3% des Kaufpreises zzgl. 20% USt.

Lage der immobilie

Mag. Yasmin Szaraniec
Beraterin

Gleich informieren und Termin vereinbaren

"*" indicates required fields

This field is hidden when viewing the form
This field is hidden when viewing the form
Anschrift
DSGVO Cookie Consent mit Real Cookie Banner