Direkt zum Inhalt wechseln

Flexibel gestaltbares Büro mit großen Glasfronten am Donaukanal

1020 Wien

Immobiliendetails

Schüttelstraße | 1020 Wien

Highlights

  • Gute Sichtbarkeit
  • Flexible Raumgestaltung
  • Beeindruckende Raumhöhe
  • Große Glasfront 
  • Straßenseitiger Eingang

Objektbeschreibung

Zum Verkauf gelangt diese moderne ca. 111 m² große Geschäftsfläche in der Schüttelstraße im 2. Wiener Gemeindebezirk. Die Einheit verfügt über eine gut sichtbare Glasfront mit straßenseitigem Eingang und bietet zusätzlich einen Zugang über das Stiegenhaus.

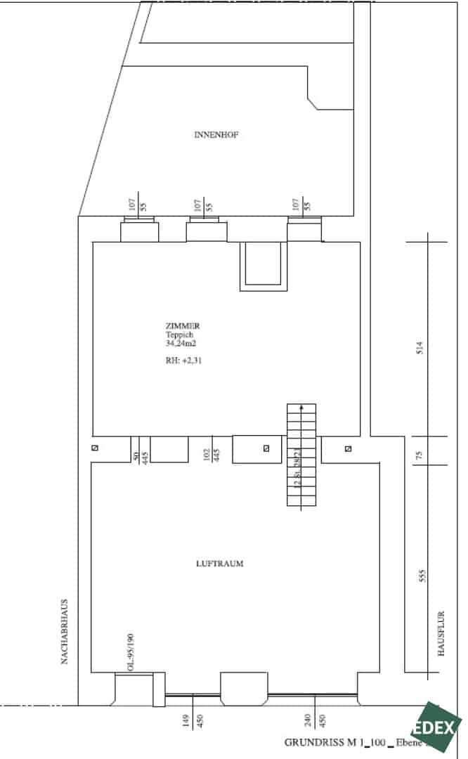
Der großzügige Verkaufs- bzw. Büroraum im vorderen Bereich (ca. 43 m²) überzeugt durch seine offene Gestaltung. Die Galerie schafft zusätzliche Nutzfläche (ca. 34 m²). Die großflächigen Verglasungen sorgen für eine helle, freundliche Atmosphäre und schaffen ein einladendes Ambiente. 

Im rückwärtigen Teil des Objekts befinden sich zwei weitere Räume (jeweils ca. 10 m²), die flexibel als Büro, Werkstatt oder Lager genutzt werden können. Darüber hinaus stehen ein Badezimmer mit Dusche sowie ein separates WC zur Verfügung. Eine voll ausgestattete Teeküche ist ebenfalls vorhanden und erhöht den Nutzungskomfort.

Beheizt wird die Fläche mittels Gastherme. Zusätzlich zur Fußbodenheizung sorgen Radiatoren entlang der Glasfronten im Hauptraum für ein angenehmes Raumklima – auch in den kalten Monaten. Die monatliche Vorschreibung hierfür beläuft sich derzeit auf EUR 140.- inkl USt.

Ausstattung

  • Sicherheitstüre
  • Innenliegende Lamellenbeschattung
  • Designerlampen von Zumtobel
  • Fußbodenheizung 
  • Teeküche
  • Kabelanschluss

Lage & Infrastruktur

Die Geschäftsfläche befindet sich im 2. Wiener Gemeindebezirk unweit des Praters und des Donaukanals. In unmittelbarer Umgebung finden sich zahlreiche Einkaufsmöglichkeiten, Cafés und Restaurants sowie Schulen und Kindergärten.

Die U3-Station Kardinal-Nagl-Platz, sowie die Straßenbahnlinien 1 und die Buslinien 80A und 4A befinden sich in Gehweite und bieten eine schnelle Verbindung in die Innenstadt und andere Bezirke. Wien Mitte-Landstraße, von wo sowohl U3 und U4, sowie auch die S-Bahn und einige Straßenbahnlinien weggehen, ist 15 Minuten zu Fuß erreichbar. Mit dem Fahrrad ist man auf einem durchgehenden Radweg in kurzer Zeit in der Inneren Stadt. Die WU ist ebenfalls in Kürze mit dem Fahrrad oder zu Fuß erreichbar. 

Für Erholung und Freizeitaktivitäten bieten der nahegelegene Prater sowie der Donaukanal ideale Möglichkeiten für Spaziergänge, Sport und Entspannung im Grünen.

Mit dem Auto erreicht man etwa den Verkehrsknotenpunkt Erdberg in nur wenigen Minuten, den Flughafen Wien Schwechat in 15 Minuten. 

Verkehrsverbindungen 

Bus 80A Station 150 Meter entfernt 

Bus 4A und Straßenbahn 1 Station 350 Meter entfernt 

U3 Kardinal-Nagl-Platz 600 Meter entfernt

U4 Wien Mitte-Landstraße 1200 Meter entfernt

  •  Fläche
    111,32 m2 Fläche
  • gute Infrastruktur
    Gute Infrastruktur

Objektdaten

Objektnummer
26578
Objekt
Büro / Praxis
Art
Kauf
Nutzfläche
111,32 m2
Bäder
1
Toiletten
1
Abstellräume
1
Kaufpreis
€ 375.000,00
Betriebskosten (Netto)
€ 186,59
Reparaturrücklage (Netto)
€ 181,26
Gesamtbelastung
€ 405,17
Provision
3% des Kaufpreises zzgl. 20% USt.

Lage der immobilie

Harald Anderlik
Leitung Büroimmobilien

Gleich informieren und Termin vereinbaren

"*" indicates required fields

This field is hidden when viewing the form
This field is hidden when viewing the form
Anschrift
DSGVO Cookie Consent mit Real Cookie Banner