Direkt zum Inhalt wechseln

Freundliche Zwei-Zimmer Wohnung Nähe Donaukanal

1030 Wien

Immobiliendetails

Markhofgasse | 1030 Wien

Highlights

  • Zwei Zimmer
  • Hervorragende Anbindung mit U3
  • Ideale Infrastruktur

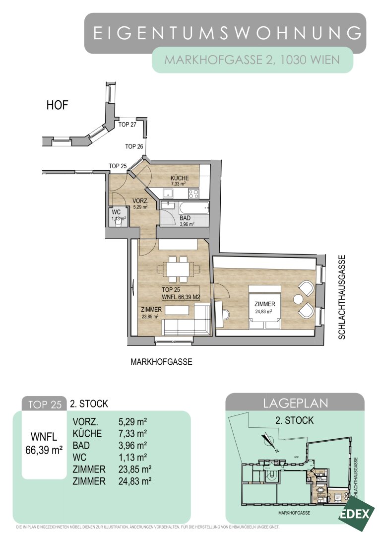
Die ca. 66 m² große 2-Zimmer-Wohnung liegt im 2.Stock eines gepflegten Altbaus, der sich im 3. Wiener Gemeindebezirk befindet. Aufgrund ihrer kompakten Größe und der ausgezeichneten Lage, bietet sich diese Wohnung perfekt als Stadtwohnung an. Die Wohnung verfügt über einen Vorraum, eine separate Küche inkl. Geräte und zwei geräumige Zimmer, das sich wunderbar als Wohn- und Schlafzimmer eignen. Das Badezimmer ist mit einer Badewanne ausgestattet und das WC ist separat. Die Wohnung wird mittels Gas-Etagenheizung beheizt. 
 

Lage

Die Immobilie befindet sich in einem attraktiven und gut angebundenen Stadtteil Wiens, der durch eine ausgezeichnete Infrastruktur besticht. Die U-Bahn-Station Schlachthausgasse (U3) befindet sich direkt vor dem Haus und bieten schnelle Verbindungen in die Innenstadt sowie zu anderen Bezirken. Die Straßenbahnlinien 18 sowie die Buslinien 80A und 77A halten in unmittelbarer Nähe und gewährleisten eine hervorragende öffentliche Verkehrsanbindung. In Gehweite befinden sich außerdem die Straßenbahnline 71 und die Buslinie 74A. Die S-Bahn Station St. Marx ist nur wenige Stationen von der Wohnung entfernt. 

Die Umgebung bietet zahlreiche Einkaufsmöglichkeiten, Restaurants und Dienstleister, insbesondere entlang der nahegelegenen Landstraßer Hauptstraße. Zusätzlich lädt die Nähe zum Grünen Prater zu Freizeit- und Erholungsaktivitäten ein und erhöht die Attraktivität dieser zentralen Lage.

Verkehrsanbindung

  • U-Bahn: U3 (Schlachthausgasse)
  • Straßenbahn: 18, 71 
  • Bus: 74A, 77A, 80A
  • 66,39 Fläche
    66,39 m2 Fläche
  • gute Infrastruktur
    Gute Infrastruktur
  • 2 Zimmer
    2 Zimmer

Objektdaten

Objektnummer
26394
Objekt
Wohnung
Art
Kauf
Wohnfläche
66,39 m2
Nutzfläche
66,39 m2
Zimmer
2
Kaufpreis
€ 385.000,00
Betriebskosten (Netto)
€ 157,81
Reparaturrücklage (Netto)
€ 70,37
Gesamtbelastung
€ 243,96
Provision
3% des Kaufpreises zzgl. 20% USt.

Lage der immobilie

Mag. Cornelia Pflug
Beraterin

Gleich informieren und Termin vereinbaren

"*" indicates required fields

This field is hidden when viewing the form
This field is hidden when viewing the form
Anschrift
DSGVO Cookie Consent mit Real Cookie Banner