Direkt zum Inhalt wechseln

Geschäftslokal im Palais Collalto

1010 Wien

Immobiliendetails

1010 Wien

Objektbeschreibung

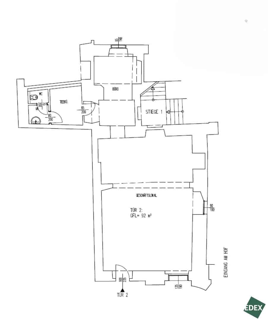
Diese attraktive ca. 92 m² große Geschäftsfläche befindet sich in ausgezeichneter Innenstadtlage und liegt im Erdgeschoss eines repräsentativen historischen Gebäudes. Die Fläche eignet sich ideal als Verkaufs-, Dienstleistungs- oder Geschäftsfläche.

Das Objekt verfügt über einen großzügigen straßenseitigen Verkaufsraum mit guter Sichtbarkeit, ein separates Büro im hinteren Bereich sowie eine Teeküche und ein WC. Die Raumstruktur ermöglicht eine funktionale Nutzung sowohl im Kundenverkehr als auch im internen Arbeitsbereich. Die Beheizung erfolgt mittels Fernwärme.

Die zentrale Lage am Platz Am Hof zählt zu den etablierten Geschäftsadressen der Wiener Innenstadt und bietet eine ausgezeichnete Infrastruktur sowie sehr hohe Passantenfrequenz.

Die Nettoheizkosten belaufen sich derzeit auf EUR 142,91 und werden zusätzlich zur Miete vorgeschrieben.

 

Verkehrsanbindung & Infrastruktur

U-Bahn:           U1, U2, U3
Straßenbahn:   37,38,39,40,41,2,43,44,1, 2, D

Buslinien:         1A, 2A, 3A, Flughafenbus VAL 2

 

* Alle Preise verstehen sich zuzüglich der gesetzlichen Umsatzsteuer.

  •  Fläche
    92,2 m2 Fläche
  • gute Infrastruktur
    Gute Infrastruktur

Objektdaten

Objektnummer
26582
Objekt
Einzelhandel
Art
Miete
Nutzfläche
92,2 m2
monatliche Miete (Netto)
€ 3.411,40
Betriebskosten (Netto)
€ 152,13
Gesamtmiete
€ 3.563,53
Provision
3 Bruttomonatsmieten zzgl. 20% USt.
Kaution
6 Bruttomonatsmieten

Lage der immobilie

Veronika Petrosyan
Beraterin

Gleich informieren und Termin vereinbaren

"*" indicates required fields

This field is hidden when viewing the form
This field is hidden when viewing the form
Anschrift
DSGVO Cookie Consent mit Real Cookie Banner