Direkt zum Inhalt wechseln

Großes Geschäftslokal direkt beim Meiselmarkt

1150 Wien,Rudolfsheim-Fünfhaus

Immobiliendetails

Meiselstraße | 1150 Wien,Rudolfsheim-Fünfhaus

Highlights: 

– Lage direkt am Meiselmarkt

– Loftartiger Grundriss

– Straßenseitiger Eingang

 

Objektbeschreibung

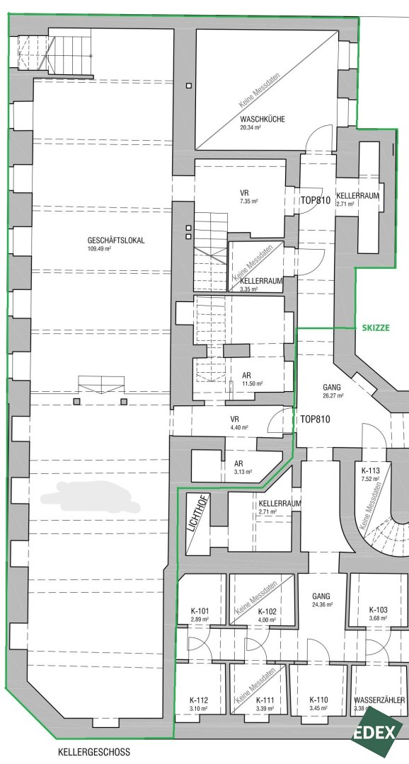
Zum Verkauf gelangt ein schöne Geschäftsfläche im Souterrain einer Eckliegenschaft am Meiselmarkts im 15. Wiener Gemeindebezirk. Das Geschäftslokal hat eine Größe von rund 172m², und verfügt über mehrere Fenster, die für eine gute Belichtung sorgen. Das Kaufobjekt besticht neben der tollen Lage, vor allem durch seinen gut belichteten, großen, loftartigen Raum mit Gewölbedecken und straßenseitigen Eingang. Bei einem Ausbau würden sich die hinteren Bereiche für den Einbau von Sanitäranlagen und als Lagerfläche anbieten. Das Geschäftslokal ist zusätzlich zum straßenseitigen Vordereingang auch über das Stiegenhaus bzw. mit Aufzug begehbar und befahrbar.

 

Verkehrsanbindung

Die Geschäftsfläche liegt direkt am Verkehrskreuz Johnstraße (U-Bahn Linie U3 / Straßenbahnlinie 49 / Buslinien 10A & 12A) und ist somit sehr gut an das öffentliche Verkehrsnetz angebunden.

 

 

 

Der Vermittler ist als Doppelmakler tätig.

  •  Fläche
    171,76 m2 Fläche
  • gute Infrastruktur
    Gute Infrastruktur

Objektdaten

Objektnummer
26308
Objekt
Einzelhandel
Art
Kauf
Nutzfläche
171,76 m2
Kaufpreis
€ 299.000,00
Betriebskosten (Netto)
€ 391,61
Reparaturrücklage (Netto)
€ 182,07
Gesamtbelastung
€ 652,00
Provision
3% des Kaufpreises zzgl. 20% USt.

Lage der immobilie

Mag. Cornelia Pflug
Beraterin

Gleich informieren und Termin vereinbaren

"*" indicates required fields

This field is hidden when viewing the form
This field is hidden when viewing the form
Anschrift
DSGVO Cookie Consent mit Real Cookie Banner