Direkt zum Inhalt wechseln

Großflächige Ordination mit guter Anbindung

1140 Wien

Immobiliendetails

1140 Wien

Bitte beachten Sie, dass aufgrund der Nachweispflicht nur schriftliche Anfragen (Kontaktformular) mit vollständigen Angaben (Vor-, Zuname, Telefonnummer und E-Mailadresse) bearbeitet werden können.

Das Büro

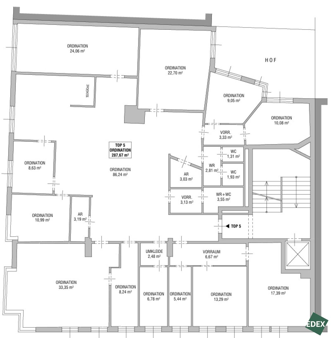
Diese aktuell ca. 287 m² große Ordination befindet sich in guter Lage im 14. Bezirk direkt auf der Hütteldorfer Straße. Das Objekt liegt im 3. Liftstock des Hauses und verfügt über einen effizienten Grundriss. Die Fläche kann bei Bedarf geteilt werden. Das Haus ist in einem sehr guten Zustand und garantiert einen repräsentativen Unternehmensauftritt. Das Objekt verfügt aktuell über einen großzügigen, zentralen Empfangsbereich, Büroräumlichkeiten in unterschiedlichen Größen, eine Teeküche, zwei getrennte Sanitärbereiche sowie einen Abstellraum.

Diese Fläche wurde zuletzt als Arztpraxis genutzt. Aufgrund der aktuellen Ausstattung (Wasseranschlüsse in mehreren Zimmern) ist sie daher auch weiterhin gut als Ordinationen geeignet. Das Objekt kann aber ebenso gut als Büro genutzt werden. Eine Trennung der Gesamtfläche zwecks kleinteiliger Anmietung wäre möglich.

Die monatlichen Heizkosten belaufen sich derzeit auf EUR 600,27 zzgl. USt. und werden zusätzlich zur Miete vorgeschrieben.

Ausstattung aktuell:

  • Effiziente Raumaufteilung
  • Kabelkanäle
  • Teilweise Spiegelrasterleuchten
  • Teilweise innenliegender Sonnenschutz
  • Getrennte Sanitärgruppen
  • Teeküche

Lage

Das Gewerbeobjekt befindet sich in sehr guter Lage in Penzing. Die Innenstadt, der 7. Bezirk und der Westbahnhof lassen sich mit der Straßenbahnlinie 49, welche direkt vor der Haustür liegt, bestens erreichen. Die U4-Bahn-Station Ober St. Veit ist ebenso gut fußläufig erreichbar. Auf der Hütteldorfer Straße finden sich viele Geschäfte des täglichen Bedarfs, Restaurants und Einkaufsmöglichkeiten, die rasch erreichbar sind.

Öffentliche Verkehrsmittel

Straßenbahn: 49, 52

S-Bahn: S45, S50, S80

Bus: 47A

U-Bahn: U4

 

*Alle Preise verstehen sich zuzüglich der gesetzlichen Umsatzsteuer.

  •  Fläche
    287,67 m2 Fläche
  • gute Infrastruktur
    Gute Infrastruktur
  • Personenaufzug vorhanden
    Personenaufzug

Objektdaten

Objektnummer
23359
Objekt
Büro / Praxis
Art
Miete
Nutzfläche
287,67 m2
Abstellräume
1
monatliche Miete (Netto)
€ 3.314,73
Betriebskosten (Netto)
€ 675,27
Gesamtmiete
€ 3.990,00
Provision
3 Bruttomonatsmieten zzgl. 20% USt.
Kaution
3-6 Bruttomonatsmieten

Lage der immobilie

Harald Anderlik
Leitung Büroimmobilien

Gleich informieren und Termin vereinbaren

"*" indicates required fields

This field is hidden when viewing the form
This field is hidden when viewing the form
Anschrift
DSGVO Cookie Consent mit Real Cookie Banner