Direkt zum Inhalt wechseln

Helle Bürofläche zwischen Stadtpark & Karlsplatz – perfekte Anbindung

1030 Wien

Immobiliendetails

1030 Wien

Highlights

  • Hervorragende Infrastruktur
  • Ideale Flughafenanbindung
  • Effizienter Grundriss

Beschreibung

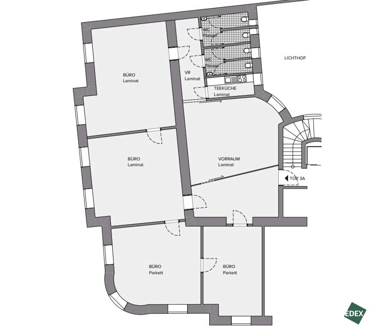
Zur Vermietung gelangt eine helle Bürofläche mit ca. 200 m² in ausgezeichneter Lage zwischen Karlsplatz und Stadtpark. Die Fläche besteht aus vier geräumigen Bürozimmern, einem großzügigen Vorraum mit Glastrennwand, getrennten WC-Einheiten sowie einer Teeküche.

Vier der fünf Räume sind separat begehbar. Das fünfte Zimmer eignet sich ideal als Empfangsbereich, Sekretariat, Sozialraum oder Besprechungszimmer. Das Gebäude sowie die Eingangssituation befinden sich in einem makellosen und repräsentativen Zustand und bieten somit einen hochwertigen Unternehmensauftritt.

Durch die Nähe der Liegenschaft zum Verkehrsknotenpunkt Wien Mitte sowie zur Wiener Innenstadt ist eine ausgezeichnete Anbindung sowie Infrastruktur gewährleistet.

Zusätzlich zu den oben angeführten Betriebskosten werden derzeit EUR 508,40 an Heizkosten vorgeschrieben.

Die Fläche ist aktuell vermietet. Besichtigungen können nach vorheriger Rücksprache jederzeit vereinbart werden.

Ausstattung

  • 4 Bürozimmer
  • Teeküche
  • Separate WC-Einheiten
  • Vorraum
  • EDV-Verkabelung (CAT 5)

Infrastruktur

Die Bürofläche verfügt über eine sehr gute öffentliche Anbindung. Der Verkehrsknotenpunkt Wien Mitte mit den U-Bahn-Linien U3 und U4, mehreren S-Bahn-Verbindungen sowie dem City Airport Train (CAT) ist in wenigen Minuten erreichbar. Auch die U-Bahn-Stationen Karlsplatz (U1, U2, U4) und Stadtpark (U4) befinden sich in fußläufiger Distanz.

Ergänzt wird das Angebot durch die Straßenbahnlinien 71 und D sowie die Buslinie 4A in unmittelbarer Nähe.

In der direkten Umgebung befinden sich der Stadtpark sowie die Wiener Innenstadt mit Kärntner Straße und Stephansplatz. Nahversorger, Restaurants und Cafés sind bequem zu Fuß erreichbar und bieten eine sehr gute Infrastruktur für den Arbeitsalltag.

Disclaimer

Die in diesem Exposé enthaltenen Bilder dienen der Veranschaulichung und können teilweise computergenerierte Visualisierungen (Renderings) beinhalten. Diese Darstellungen sollen einen Eindruck von der möglichen Gestaltung der Immobilie vermitteln, stellen jedoch keine verbindliche Beschaffenheitsangabe dar. Die Fläche wird unmöbliert vermietet.

* Alle Preise verstehen sich zuzüglich der gesetzlichen Umsatzsteuer.

 

  •  Fläche
    200,91 m2 Fläche
  • gute Infrastruktur
    Gute Infrastruktur
  • 5 Zimmer
    5 Zimmer
  • Personenaufzug vorhanden
    Personenaufzug

Objektdaten

Objektnummer
26258
Objekt
Büro / Praxis
Art
Miete
Nutzfläche
200,91 m2
Zimmer
5
Toiletten
4
monatliche Miete (Netto)
€ 3.286,98
Betriebskosten (Netto)
€ 605,34
Liftkosten (Netto)
€ 97,68
Gesamtmiete
€ 3.990,00
Provision
3 Bruttomonatsmieten zzgl. 20% USt.
Kaution
3 Bruttomonatsmieten

Lage der immobilie

Harald Anderlik
Leitung Büroimmobilien

Gleich informieren und Termin vereinbaren

"*" indicates required fields

This field is hidden when viewing the form
This field is hidden when viewing the form
Anschrift
DSGVO Cookie Consent mit Real Cookie Banner