Direkt zum Inhalt wechseln

Heller 2-Zimmer-Altbau mit optimaler Anbindung in die Innenstadt

1180 Wien

Immobiliendetails

Lacknergasse | 1180 Wien

Highlights der Wohnung

  • schön sanierte, sonnige Altbauwohnung
  • Top‑Anbindung: 9, 42, S45, 10A
  • Ideale Infrastruktur
  • Gartennutzung

 

In einem schönen Altbau befindet sich diese charmante 2‑Zimmer‑Wohnung im 1. Stock, die klassischen Altbaucharme mit moderner Ausstattung verbindet. Die Wohnungb bietet ein helles, freundliches Wohnambiente – ideal als Startwohnung für junge Leute, die Wert auf gute Infrastruktur, schnelle Anbindung und ein angenehmes Wohnumfeld legen. Mit der Straßenbahnlinie 42 erreichen Sie die Innenstadt in nur 17 Minuten – ideal für Studierende, Berufstätige und alle, die urban leben möchten.
 

Raumaufteilung und Ausstattung

  • Wohnzimmer mit offener, moderner Küche (Herd, Backrohr, Geschrirrspüler, Kühlschrank) – kommunikativ, hell und einladend

  • geräumiges Schlafzimmer

  • Badezimmer mit Badewanne und Waschmaschinenanschluss

  • Separates WC mit Handwaschbecken

  • Eiche-Parkettböden in den Wohnräumen, Fliesen in den Nassräumen

  • 3-fach verglaste Fenster mit Innenjalousien

  • WK3-Sicherheitstüre beim Wohnungseingang 

  • Gasetagenheizung 

Der begrünte Innenhofgarten steht allen Bewohnern zur Nutzung offen. Im Hof befinden sich außerdem praktische Abstellmöglichkeiten für Fahrräder.
 

Lage & Verkehrsanbindung

Die Wohnung befindet sich in einer attraktiven Wohngegend des 18. Bezirks, die durch ihre lebendige Atmosphäre und gleichzeitig hervorragende Infrastruktur überzeugt.

Öffentliche Verkehrsmittel in unmittelbarer Nähe:

  • Straßenbahnlinien 9 und 42

  • S‑Bahn S45

  • Buslinie 10A

Damit ist eine ausgezeichnete Anbindung in alle Richtungen gewährleistet – sowohl ins Stadtzentrum als auch zu wichtigen Verkehrsknotenpunkten. Zahlreiche Einkaufsmöglichkeiten, Supermärkte, Bäckereien, Apotheken sowie gemütliche Cafés und Restaurants befinden sich in der Währinger Straße und der Kutschkermarkt in Gehweite.

Für Erholung im Grünen sorgen der Türkenschanzpark und der Schafberg, die beide schnell erreichbar sind und zu Spaziergängen, Sport oder entspannten Stunden im Freien einladen. Auch der Postsportplatz ist fußäufig in wenigen Minuten erreichbar.

Auch für Studierende ist die Lage ideal: Die Universität Wien und die BOKU sind dank der hervorragenden öffentlichen Anbindung rasch erreichbar.

 

Wir weisen darauf hin, dass zwischen dem Vermittler und dem zu vermittelnden Dritten ein familiäres oder wirtschaftliches Naheverhältnis besteht.

Der Vermittler ist als Doppelmakler tätig.

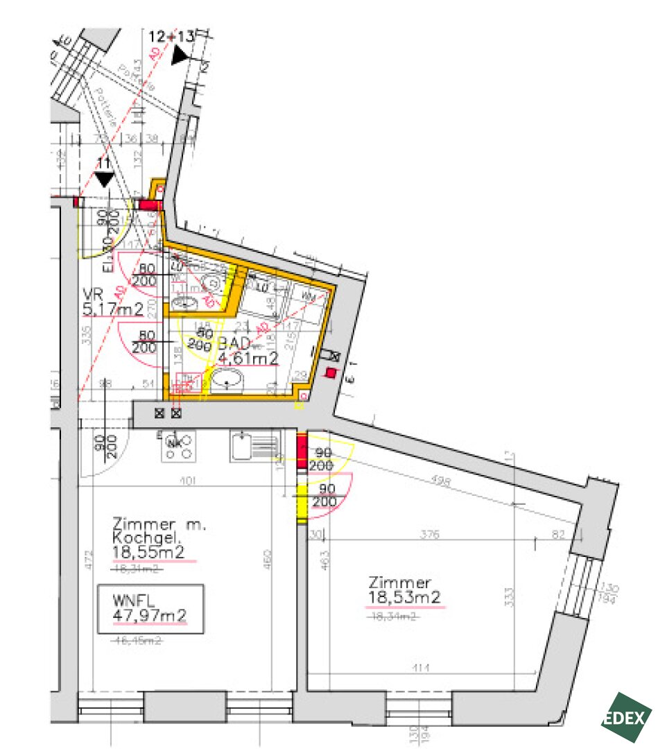
  • 47,97 Fläche
    47,97 m2 Fläche
  • gute Infrastruktur
    Gute Infrastruktur
  • 2 Zimmer
    2 Zimmer

Objektdaten

Objektnummer
26438
Objekt
Wohnung
Art
Kauf
Wohnfläche
47,97 m2
Zimmer
2
Bäder
1
Toiletten
1
Kaufpreis
€ 288.000,00
Betriebskosten (Netto)
€ 128,00
Reparaturrücklage (Netto)
€ 54,38
Gesamtbelastung
€ 195,18

Lage der immobilie

Mag. Michaela Sauer
Beraterin

Gleich informieren und Termin vereinbaren

"*" indicates required fields

This field is hidden when viewing the form
This field is hidden when viewing the form
Anschrift
DSGVO Cookie Consent mit Real Cookie Banner