Hochwertige Büro- oder Ordinationsfläche in ausgezeichneter Lage nahe dem Aumannplatz
1180 Wien
Immobiliendetails
Das Büro
In der Teschnergasse unweit des Aumannplatzes gelangt dieses helle Büro nach abgeschlossener Oberflächensanierung zur Vermietung.
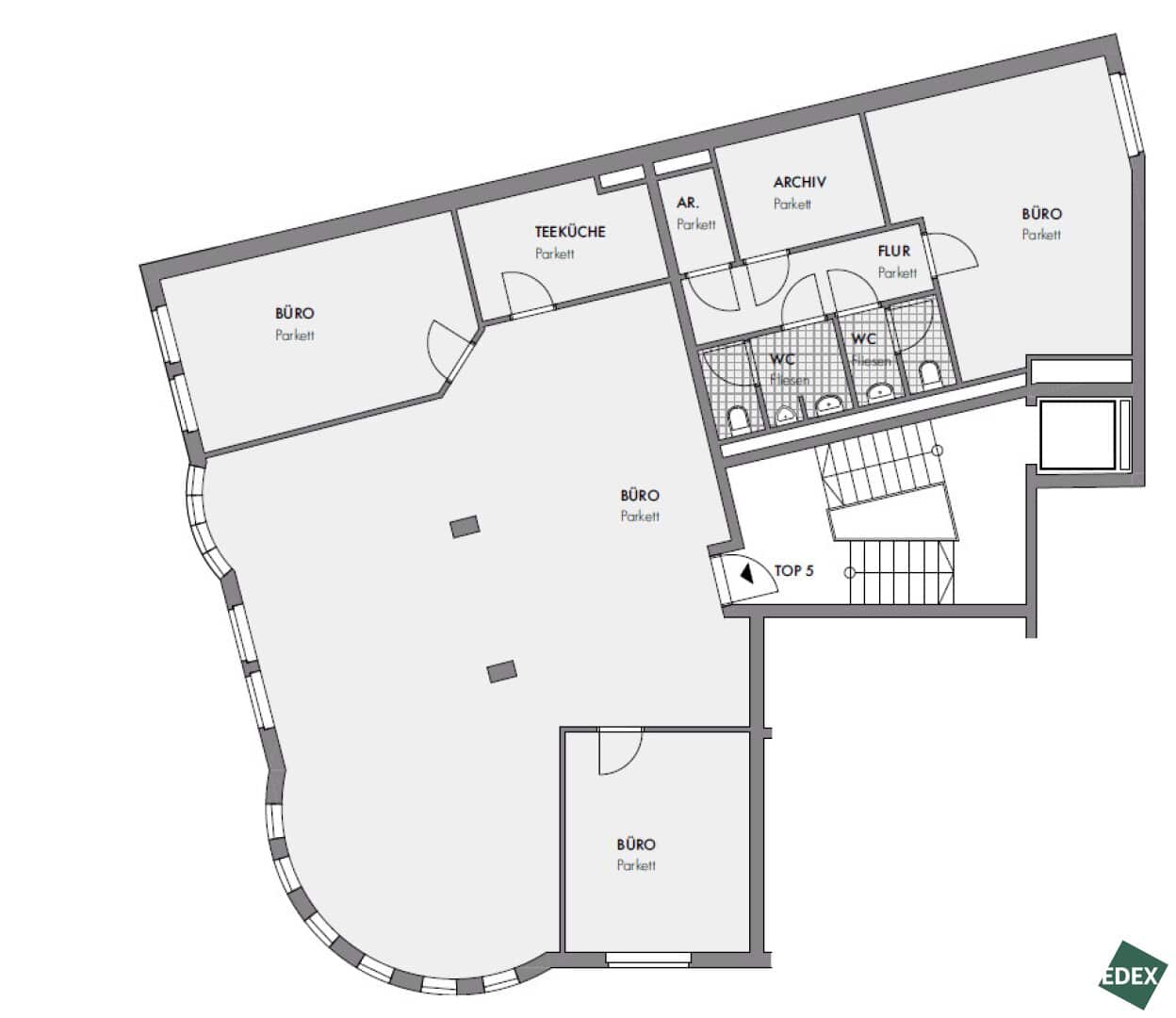
Das Büro befindet sich im zweiten Liftstock (nicht barrierefrei) und verfügt über insgesamt 4 Zimmer, eine Teeküche, einen Abstellraum, ein Archiv (gekühlt) sowie getrennte WC Einheiten. Der große Hauptraum eignet sich optimal als Open Space und ermöglicht ein kommunikatives Arbeitsklima. Zudem verfügt die Fläche über eine CAT 7 Verkabelung des Vormieters welche übernommen werden kann.
In wenigen Gehminuten erreicht man die Straßenbahn-Station der Linien 40 und 41 die einen in 15 Minuten in die Wiener Innenstadt bringen, die U-Bahn Station U6 Währinger Straße sowie Nahversorger und Restaurants.
Parkplätze sind in der hauseigenen Tiefgarage anmietbar.
Highlights
- Effiziente Aufteilung
- offene, helle Fläche
- Hervorragende Infrastruktur
- Oberflächensanierung
Aufteilung
- 4 Bürozimmer
- Abstellraum/Serverraum (gekühlt)
- Getrennte WC’s
- Teeküche
Öffentliche Verkehrsmittel
Straßenbahnlinien 40,41
U-Bahn U6
* Alle Preise verstehen sich zuzüglich der gesetzlichen Umsatzsteuer.
-
170,1 m2 Fläche -
Gute Infrastruktur -
4 Zimmer -
Personenaufzug
Objektdaten
- Objektnummer
- 23442
- Objekt
- Büro / Praxis
- Art
- Miete
- Nutzfläche
- 170,1 m2
- Zimmer
- 4
- Toiletten
- 2
- Abstellräume
- 2
- monatliche Miete (Netto)
- € 2.056,47
- Betriebskosten (Netto)
- € 435,20
- Gesamtmiete
- € 2.491,67
- Provision
- 3 Bruttomonatsmieten zzgl. 20% USt.
- Kaution
- 3-6 Bruttomonatsmieten
Lage der immobilie
- Festnetz +43 1 363010311
- Mobil +436643924248
- E-Mail h.anderlik@edeximmo.at
Gleich informieren und Termin vereinbaren
"*" indicates required fields