Direkt zum Inhalt wechseln

Mietfreie Zeit für den Umbau – Ihr Geschäftslokal mit Top-Sichtbarkeit nahe U3 Kendlerstraße

1140 Wien

Immobiliendetails

Sankt-Gotthard-Straße | 1140 Wien

Highlights 

  • Mietfreie Zeit für Ihren Umbau
  • Bodentiefe Glasfronten
  • Hochwertige Ausstattung
  • Sehr gute Anbindung

Das Objekt

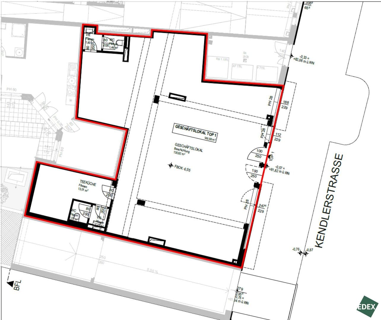
In der Sankt-Gotthard-Straße im 14. Wiener Gemeindebezirk gelangt diese schöne Geschäftsfläche ab sofort zur Vermietung (Mietbeginn nach Absprache). Die Fläche befindet sich im Erdgeschoss und ist barrierefrei zugänglich. Das Objekt verfügt über einen großen Verkaufsraum, sowie mehrere Büros und Besprechungsräume, einen Aufenthaltsraum, eine Teeküche, sowie drei getrennte Toiletten. Die Aufteilung ist je nach Bedarf und in Absprache mit den Vermietern flexibel gestaltbar. 

Das Haus verfügt über eine Tiefgarage in der zusätzlich zwei Stellplätze angemietet werden können. Die monatliche Vorschreibung hierfür beläuft sich auf EUR 87,50 zzgl. 20% USt. pro Stellplatz. 

Die großen Fensterfronten garantieren Helligkeit und gleichzeitig gute Sichtbarkeit für Passanten. Das Objekt ist straßenseitig erreichbar. Die hochwertige Ausstattung garantiert einen repräsentativen Unternehmensauftritt. Das Haus ist in einem makellosen Zustand. 

Adaptieren Sie den Grundriss genau nach Ihren Bedürfnissen! Die Vermieter stellt Ihnen mietfreie Zeit nach Absprache für den Umbau zur Verfügung.

Es wird ein befristeter Mietvertrag auf 5 Jahre abgeschlossen, mit Option auf Verlängerung. 

Ausstattung

  • Getrennte Toiletten
  • Teeküche
  • 3 Büroräume
  • Besprechungsräume
  • Bodentiefe Fenster 
  • Küche  

LAGE

Der 14. Bezirk, auch als Penzing bekannt, ist ein charmanter und vielseitiger Bezirk, welcher eine breite Palette von Annehmlichkeiten für seine Bewohner bietet. Die Infrastruktur ist hervorragend entwickelt und bietet eine ausgezeichnete Lebensqualität. Der Bezirk zeichnet sich durch eine gelungene Mischung aus Wohn- und Geschäftsgebieten aus, wodurch die meisten Dienstleistungen bequem zu Fuß erreichbar sind.

Die Anbindung an den öffentlichen Verkehr ist ausgezeichnet. Die U-Bahn-Linie U3 verläuft durch den Bezirk und bietet eine schnelle Verbindung zur Innenstadt. Darüber hinaus gibt es mehrere Buslinien, die Penzing mit anderen Teilen der Stadt verbindet.

 

VERKEHRSANBINDUNG

  • U-Bahn: U3 
  • Straßenbahn: 10, 46, 49
  • Bus: 12A, 48A
  • Bahn: Bahnhof Breitensee
  • PKW: in 15 Minuten bei der Westausfahrt Wien

* Alle Preise verstehen sich zuzüglich der gesetzlichen Umsatzsteuer.

  •  Fläche
    149,98 m2 Fläche
  • gute Infrastruktur
    Gute Infrastruktur

Objektdaten

Objektnummer
26516
Objekt
Einzelhandel
Art
Miete
Nutzfläche
149,98 m2
Toiletten
2
monatliche Miete (Netto)
€ 2.249,70
Betriebskosten (Netto)
€ 337,45
Gesamtmiete
€ 2.587,15
Provision
3 Bruttomonatsmieten zzgl. 20% USt.
Kaution
3-6 Bruttomonatsmieten

Lage der immobilie

Harald Anderlik
Leitung Büroimmobilien

Gleich informieren und Termin vereinbaren

"*" indicates required fields

This field is hidden when viewing the form
This field is hidden when viewing the form
Anschrift
DSGVO Cookie Consent mit Real Cookie Banner