Direkt zum Inhalt wechseln

Moderne 3-Zimmer Wohnung mit Balkon nahe Siemens AG

1210 Wien

Immobiliendetails

1210 Wien

Die Wohnung wird unmöbliert vermietet.

Highlights

  • Modernes Wohnen in Floridsdorf
  • Großzügiger Balkon/Loggia
  • Nähe zur Siemens AG und Austrian Institute of Technology
  • Zentrale Fernwärmeversorgung
  • Solarthermieanlage auf dem Dach zur Warmwasserbereitung
  • Tiefgarage

Objektbeschreibung

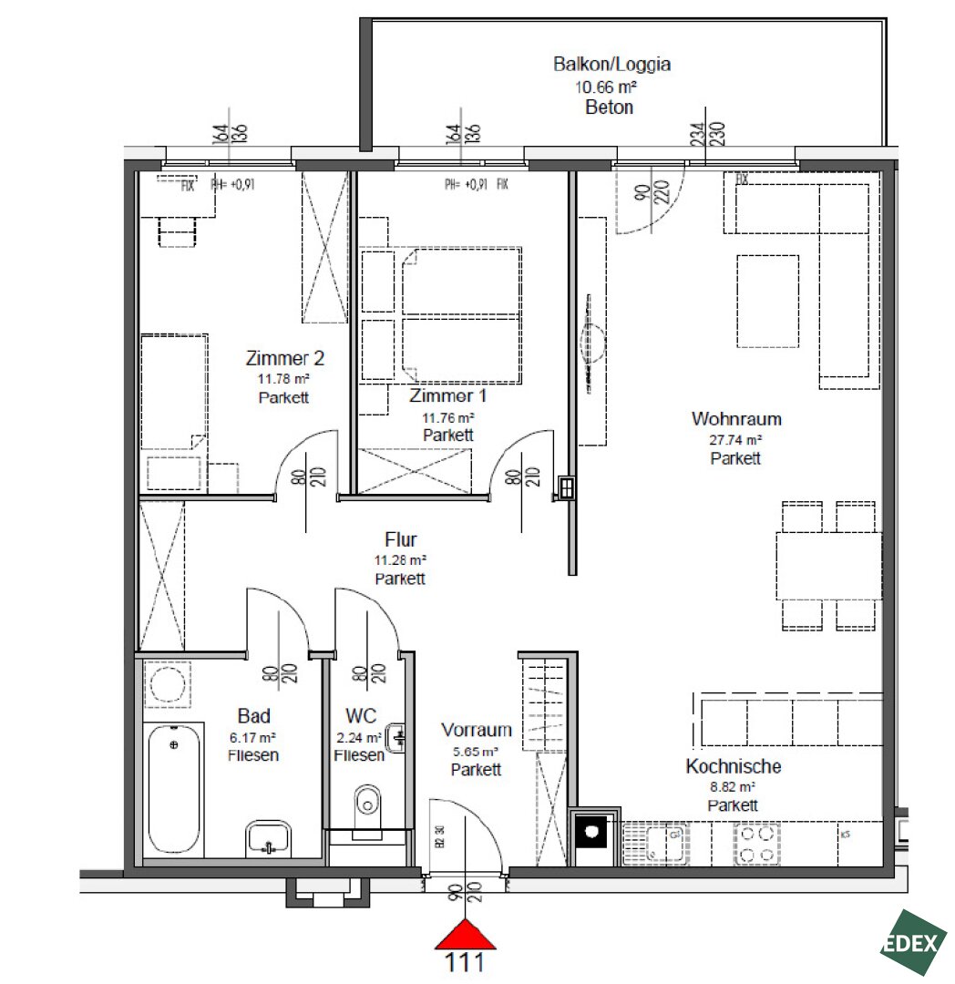
Zur Vermietung steht eine moderne 3-Zimmer-Wohnung in urbaner Lage.

Beim Betreten der Wohnung gelangt man in den Vorraum, von dem aus sowohl das separate WC als auch das Badezimmer mit Badewanne, Waschbecken und Waschmaschinenanschluss erreichbar sind.

Der anschließende zentrale Flur erschließt die weiteren Räume der Wohnung. Von hier aus gelangt man in zwei Zimmer, die sich ideal als Schlafzimmer, Kinderzimmer oder Homeoffice nutzen lassen.

Das Herzstück der Wohnung bildet der großzügige Wohnraum mit offener Kochnische, der durch seine offene Gestaltung ein helles und einladendes Ambiente schafft. Von hier aus besteht auch der direkte Zugang zur Balkon/Loggia, die zusätzlichen Platz im Freien bietet und zum Entspannen einlädt.

Die 3-fach verglasten Fenster sind mit manueller Außenbeschattung ausgestattet. In den Wohnräumen sind hochwertige Parkettböden verlegt, während Bad und WC mit Fliesen ausgeführt sind. Für ein angenehmes Raumklima sorgen klassische Heizkörper in den Wohnräumen.

Die moderne Wohnhausanlage bietet zahlreiche Annehmlichkeiten wie Fahrrad- und Kinderwagenabstellräume, Kellerabteile, einen Waschraum in Stiege 2 sowie eine Tiefgarage.

Bei Bedarf kann ein Garagenplatz in der hauseigenen Tiefgarage angemietet werden.

Die Wohnung ist noch vermietet und kann ab dem 01.05. angemietet werden. 

Das Gebäude wird mittels zentraler Heizungsanlage beheizt. Die voraussichtlichen monatlichen Kosten hierfür betragen 79,18 EUR brutto und können variieren.

Infrastruktur

Die Immobilie befindet sich im 21. Wiener Gemeindebezirk Floridsdorf, in einer beliebten Wohngegend mit guter Anbindung. Die U1-Station Großfeldsiedlung ist mit dem Bus in etwa 10 Minuten erreichbar. Mehrere Buslinien (29A, 31A) bieten zusätzliche Flexibilität. Einkaufsmöglichkeiten, Schulen, Kindergärten, Ärzte sowie vielfältige Gastronomie befinden sich in unmittelbarer Umgebung. Die Lage vereint ruhiges Wohnen mit urbaner Infrastruktur und optimaler Verkehrsanbindung.

Disclaimer

Die in diesem Exposé enthaltenen Bilder dienen der Veranschaulichung und können teilweise computergenerierte Visualisierungen (Renderings) beinhalten. Diese Darstellungen sollen einen Eindruck von der möglichen Gestaltung der Immobilie vermitteln, stellen jedoch keine verbindliche Beschaffenheitsangabe dar. Die abgebildeten Möbel und Einrichtungsgegenstände dienen ausschließlich der Illustration und sind nicht Bestandteil des Kauf- oder Mietgegenstandes.

 

 

 

 

Der Immobilienmakler erklärt, dass er – entgegen dem in der Immobilienwirtschaft üblichen Geschäftsgebrauch des Doppelmaklers – einseitig nur für den Vermieter tätig ist.

  • 10 Freifläche
    10 m2 Freifläche
  • 85,44 Fläche
    85,44 m2 Fläche
  • gute Infrastruktur
    Gute Infrastruktur
  • 3 Zimmer
    3 Zimmer

Objektdaten

Objektnummer
26484
Objekt
Wohnung
Art
Miete
Wohnfläche
85,44 m2
Zimmer
3
Bäder
1
Toiletten
1
Abstellräume
1
monatliche Miete (Netto)
€ 1.136,99
Betriebskosten (Netto)
€ 217,39
USt
€ 135,44
Gesamtmiete
€ 1.489,82
Provision
Gemäß Erstauftraggeberprinzip bezahlt der Abgeber die Provision.
Kaution
3 Bruttomonatsmieten

Lage der immobilie

Franz Kronberger
Berater

Gleich informieren und Termin vereinbaren

"*" indicates required fields

This field is hidden when viewing the form
This field is hidden when viewing the form
Anschrift
DSGVO Cookie Consent mit Real Cookie Banner