Direkt zum Inhalt wechseln

Moderne Gewerbefläche mit hoher Sichtbarkeit und flexibler Nutzung

1220 Wien

Immobiliendetails

1220 Wien

Highlights

  • Großzügiger, offener Schnitt mit flexibler Gestaltungsmöglichkeit

  • Repräsentative Schaufensterfront mit hoher Außenwirkung

  • Nutzung möglich als Verkaufsfläche, Praxis, Studio oder Büro

  • Mehrere Eingänge für flexible Erschließung

  • Tiefgaragenplätze im Haus verfügbar

  • Attraktive Lage mit starker Präsenz

Das Objekt

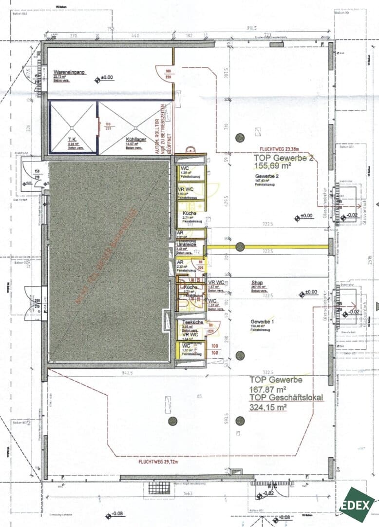
Inmitten eines bereits hervorragend erschlossenen Stadtviertels in Wien-Donaustadt bietet diese rund 325 m² große Gewerbefläche im Erdgeschoss eine ideale Grundlage für Einzelhandelsflächen, Ordinationen oder Büros. Dank der breiten Glasfassade überzeugt das Objekt durch beste Sichtbarkeit, natürliche Belichtung und moderne Architektur.

Die offene Raumstruktur bietet vielfältige Nutzungsmöglichkeiten und lässt sich flexibel an individuelle Anforderungen anpassen – ideal für Unternehmen mit Bedarf an großzügigen, modernen Arbeits-, Kunden- oder Präsentationsbereichen. Mehrere separate Zugänge ermöglichen eine vielseitige Erschließung, beispielsweise für unterteilte Nutzungseinheiten oder barrierefreie Zutrittslösungen.

Die Fläche ist derzeit vermietet, kann jedoch nach Vereinbarung bereits jederzeit besichtigt werden.

Zudem besteht die Möglichkeit, die Fläche zu teilen und eine der beiden Einheiten separat anzumieten. Die Teilflächen umfassen rund 156 m² bzw. 169 m² und können je nach Bedarf individuell genutzt werden.

Verkehrsanbindung & Infrastruktur

  • Straßenbahnlinie 25: in wenigen Minuten erreichbar

  • Buslinien 26A, 86A, 87A, 95A, 96A : Haltestellen befinden sich in unmittelbarer Nähe

  • S-Bahn, Regionalverkehr S80: in wenigen Minuten erreichbar

  • Anschlussstelle S2 / A23 (Südosttangente): in wenigen Autominuten erreichbar

  • Flughafen Wien-Schwechat: ca. 25 Minuten mit dem Auto

*Alle Preise verstehen sich zuzüglich der gesetzlichen Umsatzsteuer.

  •  Fläche
    324,93 m2 Fläche
  • gute Infrastruktur
    Gute Infrastruktur

Objektdaten

Objektnummer
25312
Objekt
Einzelhandel
Art
Miete
Nutzfläche
324,93 m2
Toiletten
2
monatliche Miete (Netto)
€ 5.666,56
Betriebskosten (Netto)
€ 711,83
Gesamtmiete
€ 6.378,39
Provision
3 Bruttomonatsmieten zzgl. 20% USt.
Kaution
3 Bruttomonatsmieten

Lage der immobilie

Harald Anderlik
Leitung Büroimmobilien

Gleich informieren und Termin vereinbaren

"*" indicates required fields

This field is hidden when viewing the form
This field is hidden when viewing the form
Anschrift
DSGVO Cookie Consent mit Real Cookie Banner