Direkt zum Inhalt wechseln

Moderne Gewerbefläche Nähe Rochusmarkt

1030 Wien

Immobiliendetails

1030 Wien

Beschreibung

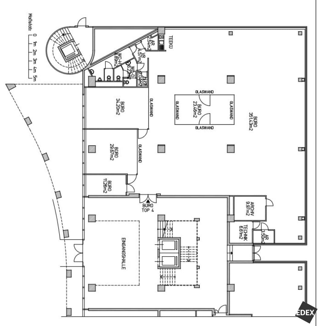
Zwischen Rochusmarkt und Kardinal Nagl-Platz gelangt diese ca. 498 m² große Gewerbefläche zur Vermietung. Das Büro befindet sich im Erdgeschoss eines gepflegten Neubaus im Wohnpark Erdberg. 

Das Objekt verfügt über eine offene, großzügige Fläche von welcher zusätzliche, abgetrennte Büroräume zu erreichen sind. Zudem gibt es eine Teeküche, einen Abstellraum, ein Archiv, ein Technikraum, separate Damen und Männer Toiletten sowie eine Dusche.  

Die Büroräume verfügen über eine tolle Fensterfront wodurch das Tageslicht optimal eingefangen wird. Durch die ausgezeichnete Lage im Wohnpark Erdberg ist eine ruhige Arbeitsumgebung gewährleistet. 

Das Objekt ist ebenfalls hervorragend mit den öffentlichen Verkehrsmitteln zu erreichen. In unmittelbarer Nähe befinden sich die U3-Stationen Rochusmarkt und Kardinal Nagl-Platz, die Buslinie 77A und 74A sowie die Straßenbahnlinien 1 und O. Geschäfte für den täglichen Bedarf, zahlreiche gute Restaurants und Bars können bequem zu Fuß erreicht werden. 

Alle genannten Preise verstehen sich exklusive der gesetzlichen Umsatzsteuer.

Aufteilung: 

  • 1 offener, großflächiger Raum 

  • 3 Büroräume 

  • Teeküche 

  • Abstellraum 

  • Archiv 

  • Technikraum 

  • separate Damen und Herren WCs 

  • separate Dusche 

 

Verkehrsanbindung 

U-Bahn: U3 (Rochusmarkt, Kardinal Nagl-Platz) 

Straßenbahn: Linie 1, O 

Bus:Linie 77A, 74A 

 

Alle Preise verstehen sich zzgl. der gesetzlichen Umsatzsteuer.

  •  Fläche
    498,04 m2 Fläche
  • gute Infrastruktur
    Gute Infrastruktur

Objektdaten

Objektnummer
26471
Objekt
Büro / Praxis
Art
Miete
Nutzfläche
498,04 m2
monatliche Miete (Netto)
€ 4.457,46
Betriebskosten (Netto)
€ 1.379,57
Gesamtmiete
€ 5.837,03
Kaution
6 Bruttomonatsmieten

Lage der immobilie

Harald Anderlik
Leitung Büroimmobilien

Gleich informieren und Termin vereinbaren

"*" indicates required fields

This field is hidden when viewing the form
This field is hidden when viewing the form
Anschrift
DSGVO Cookie Consent mit Real Cookie Banner