Zum Inhalt springen

Moderner 2,5-Zimmer-Neubau mit sehr großem Garten

1190 Wien

Immobiliendetails

An der Zwerchwiese | 1190 Wien

Highlights der Wohnung 

  • Ruhelage in Salmannsdorf
  • ca. 174 m² Garten mit ca. 16 m² Terrasse 
  • hochwertige Ausstattung
  • idealer Grundriss

 

Objektbeschreibung

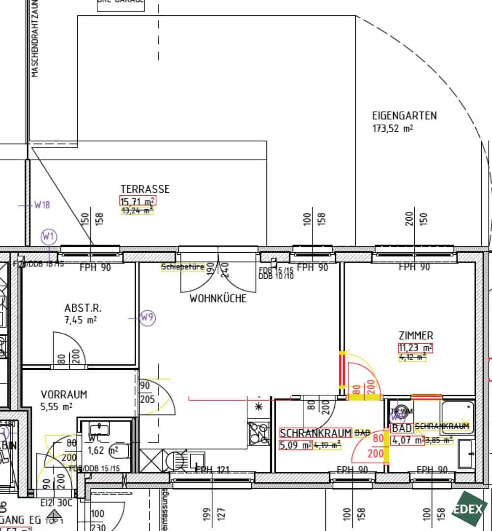
Diese elegante 2-Zimmer-Wohnung befindet sich in einer ruhigen Sackgasse in einer der besten Wohnlagen Wiens. Die Wohnung ist ca. 59 m² groß und liegt im Erdgeschoß eines modernen ca. 2013 erbauten Neubaus. Umgeben von Weinbergen und Heurigen und in kurzer Entfernung zum Wienerwald, bietet dieses Objekt besten Wohnkomfort für kleine Familien, Naturliebhaber, Sportbegeisterte und Genießer.

Das Highlight dieser modernen Wohnung ist der ca. 174 m² Eigengarten mit ca. 16 m² Terrasse, welcher zum Verweilen einlädt. Die Wohnung besteht außerdem aus einem Wohnzimmer mit Küche ist inkl. aller Geräte (Ceran-Kochfeld, Backrohr, Kühlschrank, Gefrierfach, Geschirrspüler), sowie über einen Zwischenraum mit Schränken, ein Schlafzimmer mit Schrankraum, ein Kabinett, über ein Badezimmer mit Dusche, Waschbecken und Waschmaschinen-Anschluss, sowie über eine separate WC-Einheit. Es gibt in allen Wohn- und Schlafzimmern einen Internet- und Fernsehanschluss.  Die ideale Ausrichtung und die großen Fensterflächen erlauben ein exklusives, lichtdurchflutetes Wohnerlebnis. Alle Fenster verfügen über elektrische Außenbeschattung (Raffstore).

Die mit Parkettböden und Fliesen, sowie Einbauschränken ausgestattete Wohnung wird mittels Zentralheizung beheizt.

Die Wohnung ist derzeit noch vermietet und ab dem 01.05.2026 verfügbar. Besichtigungen können nach Absprache mit der derzeitigen Mieterin vereinbart werden. Es wird ein befristeter Mietvertrag auf 5 Jahre abgeschlossen.

 

Ausstattung

  • elektrische Außenbeschattung (Raffstore)
  • ca. 174 m² Garten mit ca. 16 m² Terrasse 
  • weiße, elegante Einbauschränke
  • moderne Einbauküche inkl. aller Geräte
  • hochwertiger Eichen-Parkettboden
  • Zentralheizung
  • trockenes Kellerabteil
  • Personenlift (barrierefrei zugänglich)

 

Infrastruktur

Mit der Buslinie 35A gelangt man schnell zu den U-Bahnstationen Spittelau und Nußdorferstraße (U6) und den Straßenbahnlinien 37 und 38, sowie zur Schnellbahn S45.

Der Immobilienmakler erklärt, dass er – entgegen dem in der Immobilienwirtschaft üblichen Geschäftsgebrauch des Doppelmaklers – einseitig nur für den Vermieter tätig ist.

  • 188 Freifläche
    188 m2 Freifläche
  •  Fläche
    58,69 m2 Fläche
  • gute Infrastruktur
    Gute Infrastruktur
  • 2.5 Zimmer
    2.5 Zimmer

Objektdaten

Objektnummer
27234
Objekt
Wohnung
Art
Miete
Nutzfläche
58,69 m2
Kellerfläche
1,76 m2
Zimmer
2.5
Bäder
1
Toiletten
1
Abstellräume
1
monatliche Miete (Netto)
€ 1.093,55
Betriebskosten (Netto)
€ 222,30
Sonstiges (Netto)
€ 1,50
Liftkosten (Netto)
€ 45,24
USt
€ 136,41
Gesamtmiete
€ 1.499,00
Provision
Gemäß Erstauftraggeberprinzip bezahlt der Abgeber die Provision.
Kaution
4 Bruttomonatsmieten

Lage der immobilie

David Schober, MSc
Leitung Vermietung Wohnen

Gleich informieren und Termin vereinbaren

"*" indicates required fields

This field is hidden when viewing the form
This field is hidden when viewing the form
Anschrift
DSGVO Cookie Consent mit Real Cookie Banner