Direkt zum Inhalt wechseln

Preis gesenkt: 2-Zimmer Wohnung mit Balkon & neuer Küche nahe der Siemens AG

1210 Wien

Immobiliendetails

1210 Wien

Highlights

  • Modernes Wohnen in Floridsdorf
  • Großzügiger Balkon
  • Nähe zur Vetmed-Universität
  • Zentrale Fernwärmeversorgung
  • Solarthermieanlage auf dem Dach zur Warmwasserbereitung
  • Tiefgarage

Objektbeschreibung

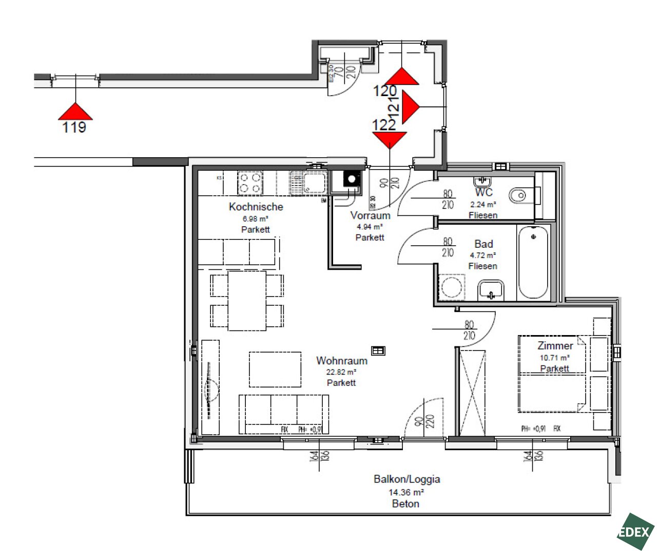
Zur Vermietung steht eine moderne 2-Zimmer-Wohnung in urbaner Lage. 
Beim Betreten gelangt man in den Vorraum, von dem aus sowohl das separate WC als auch das Badezimmer mit Badewanne, Waschbecken und Waschmaschinenanschluss erreichbar sind.

Über den zentralen Flur betritt man das Schlafzimmer, das ausreichend Platz für individuelle Einrichtung bietet.
Der großzügige Wohnraum mit offener Kochnische schafft ein helles, einladendes Ambiente und führt direkt auf die großzügige Balkon/Loggia – ideal zum Entspannen im Freien.

Die Wohnung verfügt über eine neue Einbauküche.
Diese ist mit einem Backofen samt Kochfeld, einem Kühlschrank mit Gefrierfach sowie einem Geschirrspüler ausgestattet.

Die 3-fach verglasten Fenster sind mit einer manuellen Außenbeschattung ausgestattet. Die Wohnräume verfügen über hochwertige Parkettböden, die Nassräume sind mit Fliesen versehen. Für ein angenehmes Raumklima sorgen klassische Heizkörper in den Wohnräumen.

Die moderne Wohnhausanlage bietet zahlreiche Annehmlichkeiten wie Fahrrad- und Kinderwagenabstellräume, Kellerabteile, einen Waschraum in Stiege 2 sowie eine Tiefgarage.

Bei Bedarf kann ein Garagenplatz in der hauseigenen Tiefgarage angemietet werden.

Das Gebäude wird mittels zentraler Heizungsanlage beheizt. Die voraussichtlichen monatlichen Kosten hierfür betragen 62,89 EUR brutto und können variieren.

Infrastruktur

Die Immobilie befindet sich im 21. Wiener Gemeindebezirk Floridsdorf, in einer beliebten Wohngegend mit guter Anbindung. Die U1-Station Großfeldsiedlung ist mit dem Bus in etwa 10 Minuten erreichbar. Mehrere Buslinien (29A, 31A) bieten zusätzliche Flexibilität. Einkaufsmöglichkeiten, Schulen, Kindergärten, Ärzte sowie vielfältige Gastronomie befinden sich in unmittelbarer Umgebung. Die Lage vereint ruhiges Wohnen mit urbaner Infrastruktur und optimaler Verkehrsanbindung.

 

 

 

Der Immobilienmakler erklärt, dass er – entgegen dem in der Immobilienwirtschaft üblichen Geschäftsgebrauch des Doppelmaklers – einseitig nur für den Vermieter tätig ist.

  • 14 Freifläche
    14 m2 Freifläche
  • 52,41 Fläche
    52,41 m2 Fläche
  • gute Infrastruktur
    Gute Infrastruktur
  • 2 Zimmer
    2 Zimmer

Objektdaten

Objektnummer
26584
Objekt
Wohnung
Art
Miete
Wohnfläche
52,41 m2
Zimmer
2
Bäder
1
Toiletten
1
Abstellräume
1
monatliche Miete (Netto)
€ 673,16
Betriebskosten (Netto)
€ 144,11
USt
€ 81,73
Gesamtmiete
€ 899,00
Provision
Gemäß Erstauftraggeberprinzip bezahlt der Abgeber die Provision.
Kaution
3 Bruttomonatsmieten

Lage der immobilie

Franz Kronberger
Berater

Gleich informieren und Termin vereinbaren

"*" indicates required fields

This field is hidden when viewing the form
This field is hidden when viewing the form
Anschrift
DSGVO Cookie Consent mit Real Cookie Banner