Zum Inhalt springen

PROVISIONSFREI | ERSTBEZUG – Bezugsfertige 3-Zimmer-Eigentumswohnung mit Loggia und Küche

1230 Wien

Immobiliendetails

Altmannsdorfer Straße | 1230 Wien

Highlights 

  • Erstbezugswohnungen mit effizienten Grundrissen – sofort beziehbar
  • Voll ausgestattete Küchen
  • Niedrigenergiehaus mit Luftwärmepumpe und Photovoltaik-Anlage
  • Hochwertige Eichen-Parkettfußböden mit Fußbodenheizung
  • alle Wohnungen mit Balkon, Loggia oder Terrasse und Grünblick
  • nur 7 Gehminuten bis zur U6 Station Erlaaer Straße
  • attraktive Renditen für Anleger und Investoren in einer wachsenden Gegend Wiens

 

Herzlich willkommen im  Wohnbauprojekt Altmannsdorfer Straße 188 im aufstrebenden 23. Wiener Gemeindebezirk, welches sowohl Qualität, Energieeffizienz und hochwertige Ausstattung vereint als auch für Anleger attraktive Investitionsmöglichkeiten bietet.

Alle 15 Eigentumswohnungen verfügen über äußerst effiziente Grundrisse sowie über Balkone, Loggien oder Terrassen, die Nutzflächen der Wohnungen liegen zwischen 35 m² und 70 m². Die Dachgeschoss-Maisonette-Wohnung verfügt über eine Wohnnutzfläche von 121 m² sowie vier Terrassen mit insgesamt 45 m². Alle Wohnungen sind hofseitig ausgerichtet und zeichnen sich durch einen Blick ins Grüne aus. Eine voll ausgestattete Küche, zeitgemäße elegante Bäder sowie hochwertige Eichenparkettböden erzeugen ein modernes Wohnambiente auf höchstem Niveau.

Die Lage im Grünen und eine optimale öffentliche Anbindung an die U6 verbinden Erholung und Lebensqualität.  Jeder Wohnung ist ein eigenes Kellerabteil zugeordnet, das Haus verfügt über einen Fahrrad- und Kinderwagenraum, sowie über einen Personenlift. Ein Gemeinschaftsgarten mit Kleinkinderspielplatz bietet zusätzlichen Grünraum für alle Bewohnerinnen und Bewohner. 

Auf Grund der tollen Lage und der funktionalen Raumaufteilung eignen sich die Wohnungen sowohl als Endnutzerwohnung sowie auch als Vorsorgewohnung – somit stehen Ihnen hier beide Erwerbsvarianten zur Verfügung. 

Die Wohnungen sind fertig gestellt und können gerne jederzeit besichtigt werden. Wir freuen uns auf Sie!

Fotocredits: © Marlene Fröhlich|luxundlumen.com; © DK-Media

 

Disclaimer

Die in diesem Exposé enthaltenen Bilder dienen der Veranschaulichung und können teilweise computergenerierte Visualisierungen (Renderings) beinhalten. Diese Darstellungen sollen einen Eindruck von der möglichen Gestaltung der Immobilie vermitteln, stellen jedoch keine verbindliche Beschaffenheitsangabe dar. Die abgebildeten Möbel und Einrichtungsgegenstände dienen ausschließlich der Illustration und sind nicht Bestandteil des Kauf- oder Mietgegenstandes.

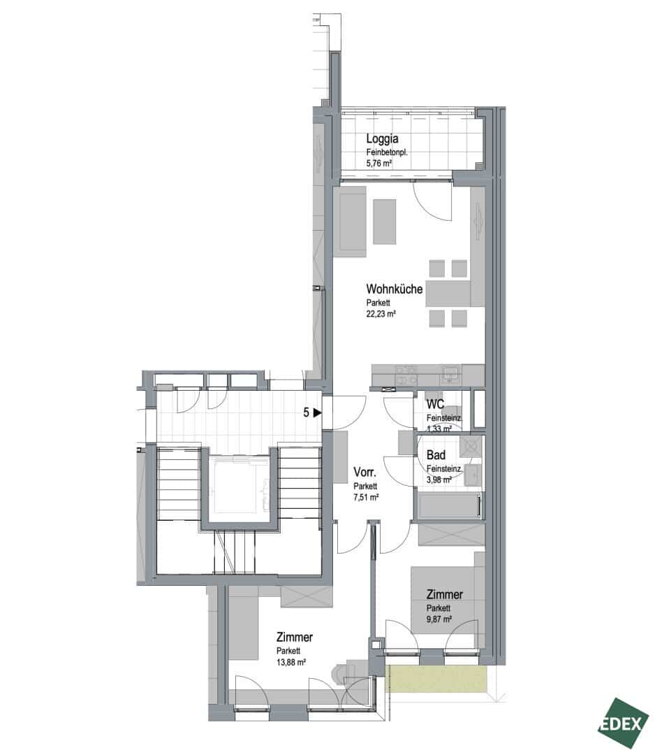
Die Wohnung

Entdecken Sie diese ansprechende 3-Zimmer-Wohnung mit ca. 59 m² im zweiten Obergeschoss. Der zentrale Vorraum führt Sie in ein einladendes Wohnzimmer mit offener, voll ausgestatteter Küche, ein modernes Bad mit Badewanne und Waschmaschinenanschluss, sowie 2 weitere Zimmer. Ein separates WC mit Handwaschbecken vervollständigt die durchdachte Raumaufteilung.

Der besondere Charme dieser Wohnung wird durch die ca. 5,6 m² große Loggia unterstrichen, die nach Westen ausgerichtet ist und Ihnen einen Blick ins Grüne bietet. Der äußerst effiziente Grundriss macht diese Wohnung auch zu einer idealen Anlegerwohnung für Vermietungszwecke.

Hochwertiges Parkett in den Wohnräumen und zeitloses Feinsteinzeug im Badezimmer verleihen der Wohnung eine elegante Note. Die Beheizung erfolgt über eine Zentralheizung in Verbindung mit Fußbodenheizung, während dreifach verglaste Fenster für optimale Isolierung sorgen. Zusätzlichen Stauraum bietet ein praktisches Kellerabteil, und im Haus steht ein Abstellraum für Kinderwagen und Fahrräder zur Verfügung.
 

 Wir laden Sie ein, die Wohnung über unseren 3D-Scan zu besuchen. 

Die Wohnung wird abgesehen von Küche und Bad unmöbliert verkauft. 

 

Bauart und Ausstattung

  • Voll ausgestattete Küchen (Kühl- und Gefrierschrank, Ceranfeld, Backrohr, Dunstabzug und Geschirrspüler) 
  • Niedrigenergiehaus, HWB 34,5 kWh/m².a; fGEE = 0,74
  • Beheizung über Luftwärmepumpe in Kombination mit Photovoltaik-Anlage (4,98 kW peak)
  • Fußbodenheizung mit Einzelraumregelung inkl. Temperaturabsenkung
  • Stützkühlung im Sommer
  • Hochwertige Eichen-Parkettfußböden mit Schweizerleiste
  • Feinsteinzeug 60×60 cm rektifiziert von Antica Ceramica Rubiera
  • Sonnenschutz mit Senkrechtmarkisen (Steuerung über Handsender)
  • RC-3-Eingangstüren
  • Weiße Röhrenspan-Innentüren mit Holzzargen
  • Tür- und Fenster-Beschläge aus Edelstahl
  • Hygrostat-Lüfter im Bad
  • Falzlüftung in Wohnzimmer
  • Handwaschbecken in Toiletten
  • Natürlich belichtetes, repräsentatives Stiegenhaus
  • SAT-Anlage
  • Glasfaserinternet
  • Einlagerungsräume im Keller > 2,0 m²
  • Ebenerdiger Fahrradraum
  • Aufzug mit einem teilweise verglasten Schacht, Aufzugskabine in Edelstahl mit raumhohem Spiegel und LED-Leuchtpaneeldecke
  • Mitbenutzung der begrünten Freifläche (rd. 150 m²) mit einem Kleinkinderspielplatz in der Altmannsdorfer Straße 184.
  • Fahrrad- und Kinderwagenabstellraum

 

Lage und Infrastruktur

Die Liegenschaft ist optimal an den öffentlichen Verkehr und das individuelle Verkehrsnetz angeschlossen. Die U6 Station Erlaaer Straße erreicht man in nur 7 Gehminuten, die 64 A Bushaltestelle Meischlgasse ist 100 Meter entfernt, zur Badner Bahn sind es 300 Meter. Als Autofahrer gelangt man über die Triester Straße in wenigen Minuten zur A 21 – Knoten Vösendorf.

Alle wichtigen Nahversorgungseinrichtungen, wie Kindergärten, Schulen, Sportstätten, Geschäfte, Apotheken, Tankstellen, Restaurants, usw. sind im Umfeld vorhanden. Auch das große Naherholungsgebiet Wienerberg sowie die Freizeitanlage Schloss Schönbrunn sind mit den öffentlichen Verkehrsmitteln rasch erreichbar.

 

In dem Haus stehen noch weitere Wohnungen zum Verkauf (Exposés auf Anfrage): Der Kaufpreis als Anlegerwohnung zwecks Vermietung versteht sich zuzüglich 20 % Ust. 

Erdgeschoß:

  • TOP 1: verkauft

1. Obergeschoss:

  • TOP 2: ca. 58,79 m² 3-Zimmer-Wohnung mit 5,64 m² Loggia 
    Preis Anleger netto: EUR 320.000,-
    Preis Eigennutzer: EUR 367.240,-: 
     
  • TOP 3: verkauft
     
  • TOP 4: ca. 69,84 m² 3-Zimmer-Wohnung mit 7,23 m² Loggia
    Preis Anleger netto: EUR 395.000,-
    Preis Eigennutzer: EUR 449.000,-

2. Obergeschoss:

  • TOP 5: ca. ca. 58,80 m² 3-Zimmer-Wohnung mit 5,76 m² Loggia  
    Preis Anleger netto: EUR 330.000,-
    Preis Eigennutzer: EUR 379.200,-
     
  • TOP 6: reserviert
     
  • TOP 7: ca. 69,84 m² 3-Zimmer-Wohnung mit 7,45 m² Loggia
    Preis Anleger netto: EUR 399.000,-
    Preis Eigennutzer: EUR 465.900,-

3. Obergeschoss:

  • TOP 8: ca. 53,40 m² 2-Zimmer-Wohnung mit 5,69 m² Loggia 
    Preis Anleger netto: EUR 310.000,-
    Preis Eigennutzer: EUR 365.620,-
     
  • TOP 9: reserviert
     
  • TOP 10: ca. 63,82 m² 2-Zimmer-Wohnung mit 7,45 m² Loggia 
    Preis Anleger netto: EUR 365.000,-
    Preis Eigennutzer: EUR 419.460,-

4. Obergeschoss:

  • TOP 11: verkauft
     
  • TOP 12: verkauft
     
  • TOP 13: ca. 63,68 m² 2-Zimmer-Wohnung mit 7,42 m² Loggia 
    Preis Anleger netto: EUR 375.000,-
    Preis Eigennutzer: EUR 431.500,-
     
  • TOP 14: verkauft
     

Dachgeschoß:

  • Top 15: ca. 121,18 m² 4-Zimmer-Maisonette-Wohnung mit 45 m² Terrasse 
    Preis Anleger netto: EUR 660.000,-
    Preis Eigennutzer: EUR 749.000,-

Der Vermittler ist als Doppelmakler tätig.

  • 5 Freifläche
    5 m2 Freifläche
  • 58,8 Fläche
    64,56 m2 Fläche
  • gute Infrastruktur
    Gute Infrastruktur
  • 3 Zimmer
    3 Zimmer

Objektdaten

Objektnummer
26370
Objekt
Wohnung
Art
Kauf
Wohnfläche
58,8 m2
Nutzfläche
64,56 m2
Kellerfläche
5,03 m2
Zimmer
3
Bäder
1
Toiletten
1
Kaufpreis
€ 330.000,00
Betriebskosten (Netto)
€ 0,00
Gesamtbelastung
€ 0,00

Lage der immobilie

Mag. Michaela Sauer
Beraterin

Gleich informieren und Termin vereinbaren

"*" indicates required fields

This field is hidden when viewing the form
This field is hidden when viewing the form
Anschrift
DSGVO Cookie Consent mit Real Cookie Banner