Direkt zum Inhalt wechseln

Sanierter Zweitbezug: 3-Zimmer-Altbauwohnung mit Fußbodenheizung in Parknähe

1170 Wien

Immobiliendetails

Mariengasse | 1170 Wien

Highlights

  • Ruhige Lage in unmittelbarer Nähe zum Clemens-Hofbauer-Platz

  • Sanierter Zweitbezug mit Fußbodenheizung

  • Gepflegter Altbau mit Lift und guter Raumaufteilung


Die Wohnung

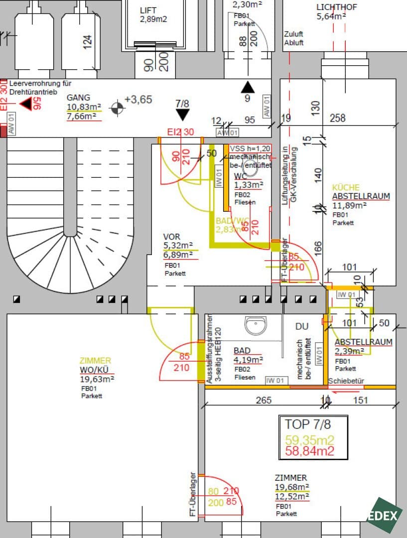
Zum Verkauf steht eine gut geschnittene 3-Zimmer-Wohnung mit ca. 59 m² Wohnfläche, gelegen im 1. Liftstock eines gepflegten Altbaus im beliebten 17. Wiener Gemeindebezirk.

Die Wohnung punktet mit ihrer ruhigen Lage in unmittelbarer Parknähe und einer durchdachten Raumaufteilung, die sich gleichermaßen für Singles, Paare oder kleine Familien eignet. Der Clemens-Hofbauer-Park befindet sich nur wenige Schritte entfernt und lädt zum Entspannen ein. Für Naturliebhaber und Sportbegeisterte ist der Wienerwald in etwa 15 Minuten erreichbar und bietet zahlreiche Freizeitmöglichkeiten.

Für angenehmen Wohnkomfort sorgt eine Fußbodenheizung, die eine gleichmäßige Wärme in allen Wohnräumen ermöglicht. Zudem verfügt die Wohnung über Fenster neueren Datums, die zu einem verbesserten Wärme- und Schallschutz beitragen. In der Wohnung ist derzeit eine Küche vorhanden, bestehend aus einer Einbauküche inklusive Waschbecken und Geschirrspüler. Ein Backrohr ist nicht vorhanden.

Die Wohnung wurde im Jahr 2020 saniert und danach einmalig vermietet, sie befindet sich in einem gepflegten Zustand.

 

Aufteilung & Ausstattung

Die Wohnung ist zentral begehbar und gliedert sich wie folgt:

  • Vorraum

  • Wohnküche

  • Schlafzimmer mit Schrankraum

  • zweites Schlafzimmer mit Hofausrichtung

  • Badezimmer mit Dusche, Waschbecken und Waschmaschinen-Anschluss

  • Separates WC

Die großzügige und südseitig ausgerichtete Wohnküche bildet das Herzstück der Wohnung. Das größere Schlafzimmer verfügt über einen Abstellraum, der zum Stauen oder als begehbare Garderobe verwendet werden kann. Das zweite Schlafzimmer ist vom Vorraum aus begehbar und bietet eine angenehme Ruhelage durch die Ausrichtung in einen Lichthof. Das Badezimmer ist mit einer Dusche, sowie einem Waschbecken und einem Waschmaschinen-Anschluss ausgestattet, das WC ist separat begehbar.

Die Wohnräume sind mit Parkettboden, die Nassräume mit Fliesen ausgestattet. Beheizt wird die Wohnung mittels Fußbodenheizung (Gasetagenheizung). Ein Personenaufzug ist im Gebäude vorhanden.


Lage & Infrastruktur

Die Liegenschaft befindet sich in attraktiver Lage zwischen Rosensteingasse und Wattgasse, unweit des Clemens-Hofbauer-Platzes mit Parkanlage sowie der Marienpfarre.

Die Umgebung bietet eine ausgezeichnete Infrastruktur:

Öffentliche Verkehrsanbindung

  • Straßenbahnlinien 43, 44, 9

  • Schnellbahn S45

  • Buslinie 10A

Nahversorgung & Umfeld

  • Supermärkte, Post, Gastronomie und diverse Einkaufsmöglichkeiten in unmittelbarer Nähe

  • Gute Erreichbarkeit mit dem PKW

  • Vielfältige Freizeit- und Erholungsmöglichkeiten durch nahegelegene Grünflächen


Hinweis:
Wir weisen darauf hin, dass zwischen dem Vermittler und dem Auftraggeber ein wirtschaftliches und familiäres Naheverhältnis besteht.

Wir weisen darauf hin, dass zwischen dem Vermittler und dem zu vermittelnden Dritten ein familiäres oder wirtschaftliches Naheverhältnis besteht.

  • 58,84 Fläche
    58,84 m2 Fläche
  • gute Infrastruktur
    Gute Infrastruktur
  • 3 Zimmer
    3 Zimmer
  • Personenaufzug vorhanden
    Personenaufzug

Objektdaten

Objektnummer
26287
Objekt
Wohnung
Art
Kauf
Wohnfläche
58,84 m2
Kellerfläche
5,88 m2
Zimmer
3
Bäder
1
Toiletten
1
Abstellräume
1
Kaufpreis
€ 329.000,00
Betriebskosten (Netto)
€ 135,33
Reparaturrücklage (Netto)
€ 71,12
Sonstiges (Netto)
€ 23,54
Liftkosten (Netto)
€ 56,00
Gesamtbelastung
€ 307,47
Provision
3% des Kaufpreises zzgl. 20% USt.

Lage der immobilie

Mag. Yasmin Szaraniec
Beraterin

Gleich informieren und Termin vereinbaren

"*" indicates required fields

This field is hidden when viewing the form
This field is hidden when viewing the form
Anschrift
DSGVO Cookie Consent mit Real Cookie Banner