Direkt zum Inhalt wechseln

Sanierungsbedürftige 1-Zimmer-Wohnung mit Entwicklungspotential auf 2-Zimmer bei U3

1030 Wien

Immobiliendetails

Markhofgasse | 1030 Wien

Highlights

  • Geräumige Küche
  • Hervorragende Anbindung mit U3
  • Ideale Infrastruktur

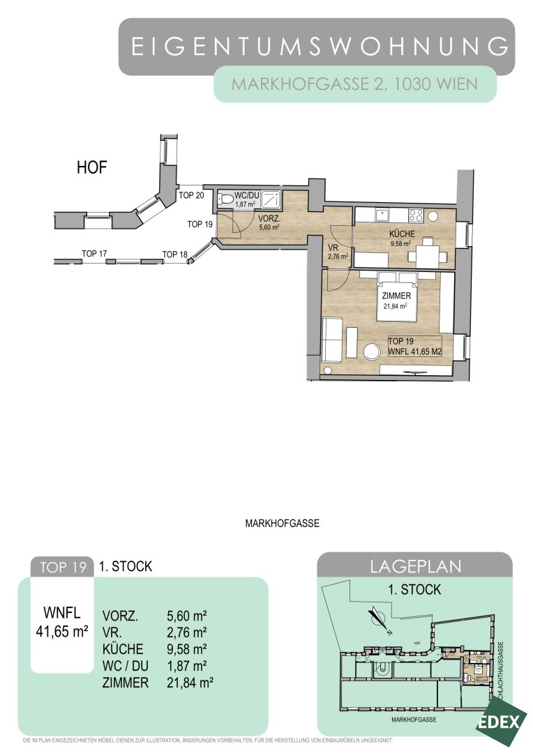
Die ca. 42 m² große 1-Zimmer-Wohnung liegt im 1.Stock eines gepflegten Altbaus, der sich im 3. Wiener Gemeindebezirk befindet. Aufgrund ihrer kompakten Größe und der ausgezeichneten Lage, bietet sich diese Wohnung perfekt als Stadtwohnung an. Die Wohnung verfügt über einen Vorraum, eine separate Küche und ein geräumiges Zimmer, das sich wunderbar als Wohn- und Schlafbereich eignet. Das Badezimmer ist mit einer Dusche und WC ausgestattet. Die Wohnung wird mittels Gas-Etagenheizung beheizt. 

Die Wohnung ist sanierungsbedürftig und wird im IST-Zustand verkauft. 
 

Lage

Die Immobilie befindet sich in einem attraktiven und gut angebundenen Stadtteil Wiens, der durch eine ausgezeichnete Infrastruktur besticht. Die U-Bahn-Station Schlachthausgasse (U3) befindet sich direkt vor dem Haus und bieten schnelle Verbindungen in die Innenstadt sowie zu anderen Bezirken. Die Straßenbahnlinien 18 sowie die Buslinien 80A und 77A halten in unmittelbarer Nähe und gewährleisten eine hervorragende öffentliche Verkehrsanbindung. In Gehweite befinden sich außerdem die Straßenbahnline 71 und die Buslinie 74A. Die S-Bahn Station St. Marx ist nur wenige Stationen von der Wohnung entfernt. 

Die Umgebung bietet zahlreiche Einkaufsmöglichkeiten, Restaurants und Dienstleister, insbesondere entlang der nahegelegenen Landstraßer Hauptstraße. Zusätzlich lädt die Nähe zum Grünen Prater zu Freizeit- und Erholungsaktivitäten ein und erhöht die Attraktivität dieser zentralen Lage.

Verkehrsanbindung

  • U-Bahn: U3 (Schlachthausgasse)
  • Straßenbahn: 18, 71 
  • Bus: 74A, 77A, 80A

Disclaimer

Die in diesem Exposé enthaltenen Bilder dienen der Veranschaulichung und können teilweise computergenerierte Visualisierungen (Renderings) beinhalten. Diese Darstellungen sollen einen Eindruck von der möglichen Gestaltung der Immobilie vermitteln, stellen jedoch keine verbindliche Beschaffenheitsangabe dar. Die abgebildeten Möbel und Einrichtungsgegenstände dienen ausschließlich der Illustration und sind nicht Bestandteil des Kauf- oder Mietgegenstandes.

  • 41,65 Fläche
    41,65 m2 Fläche
  • gute Infrastruktur
    Gute Infrastruktur
  • 1 Zimmer
    1 Zimmer

Objektdaten

Objektnummer
26817
Objekt
Wohnung
Art
Kauf
Wohnfläche
41,65 m2
Nutzfläche
41,65 m2
Zimmer
1
Bäder
1
Toiletten
1
Kaufpreis
€ 198.000,00
Betriebskosten (Netto)
€ 99,01
Reparaturrücklage (Netto)
€ 44,15
Gesamtbelastung
€ 153,06
Provision
3% des Kaufpreises zzgl. 20% USt.

Lage der immobilie

Franz Kronberger
Berater

Gleich informieren und Termin vereinbaren

"*" indicates required fields

This field is hidden when viewing the form
This field is hidden when viewing the form
Anschrift
DSGVO Cookie Consent mit Real Cookie Banner