Direkt zum Inhalt wechseln

Sanierungsbedürftige Eigentumswohnung mit großzügiger Terrasse

1160 Wien

Immobiliendetails

1160 Wien

Highlights

  • Großzügige Terrasse (ca. 22 m²) – Sanierung 2026

  • Thermische Sanierung des Hauses (2026: Fassade, Fenster und Dach)

  • Zwei Zimmer mit direktem Terrassenzugang

  • Guter Grundriss

  • Separate Küche


Die Wohnung

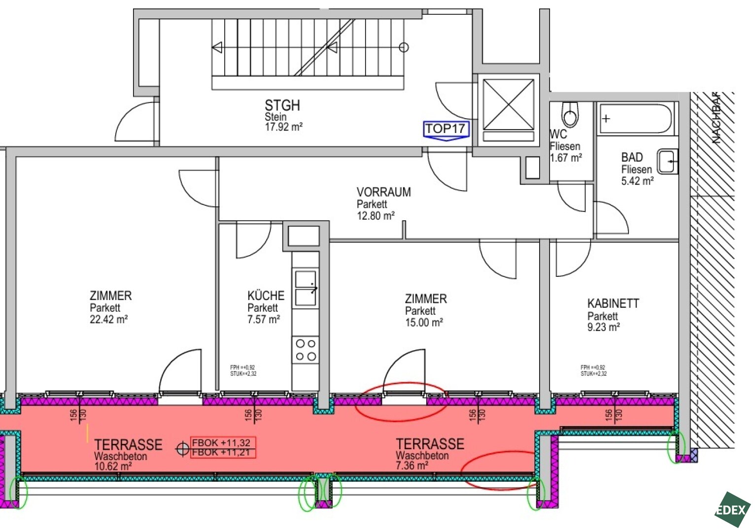
Diese ca. 74 m² große Eigentumswohnung befindet sich im 4. Liftstock eines im Jahr 1974 errichteten Wohnhauses im 16. Wiener Gemeindebezirk. Das Gebäude verfügt über einen Personenlift sowie einen begrünten Innenhof zur gemeinschaftlichen Nutzung.

Die Wohnung ist vollständig sanierungsbedürftig und bietet damit eine hervorragende Gelegenheit für Eigennutzer oder Anleger, ihre individuellen Wohnvorstellungen umzusetzen.

Vom Vorraum aus sind sämtliche Räume zentral begehbar. Die Wohnung verfügt über drei gut geschnittene Zimmer, wovon zwei direkten Zugang zur großzügigen, ca. 21,50 m² großen Terrasse bieten – ein besonderes Highlight dieser Immobilie. Die Terrasse wurde kürzlich, im Zuge der Fassadensanierung, saniert und erweitert den Wohnraum ideal ins Freie.

Die Küche ist separat angelegt und bietet ausreichend Platz für eine moderne Neugestaltung. Das Badezimmer sowie das separate WC sind ebenfalls sanierungsbedürftig und ermöglichen eine zeitgemäße Adaptierung nach eigenen Vorstellungen. Geheizt wird mittels Elektro-Heizung.

Ein Kellerabteil sorgt für zusätzlichen Stauraum. Optional kann ein Parkplatz angemietet werden (auf Anfrage).

Diese Immobilie bietet eine ideale Basis für ein modernes Stadtrefugium mit großzügiger Freifläche in urbaner Lage des 16. Bezirks.


Raumaufteilung

  • Vorraum

  • Drei Zimmer

    • Zwei Zimmer mit direktem Zugang zur Terrasse

  • Separate Küche

  • Badezimmer

  • Separates WC

  • Terrasse (ca. 21,50 m²)


Ausstattung

  • Personenlift
  • Großzügige Terrasse (Sanierung 2026)

  • Zwei Terrassenzugänge

  • Separate Küche

  • Separates WC

  • Kellerabteil

  • Begrünter Innenhof zur gemeinschaftlichen Nutzung

  • Optional anmietbarer Parkplatz

  • Wohnung sanierungsbedürftig

 

Öffentliche Verkehrsmittel

Autobus: 48A

U-Bahn: U6

Straßenbahn: 9

 

Lage

Die Wohnung befindet sich im 16. Wiener Gemeindebezirk, einem urbanen und zugleich lebendigen Wohnbezirk mit gewachsener Infrastruktur und guter Anbindung.

In unmittelbarer Umgebung finden sich zahlreiche Nahversorger, Supermärkte, Apotheken sowie Cafés und Restaurants. Der nahegelegene Brunnenmarkt sowie die Thaliastraße bieten vielfältige Einkaufsmöglichkeiten und ein abwechslungsreiches gastronomisches Angebot.

Die öffentliche Verkehrsanbindung ist sehr gut: U-Bahn (U6 Thaliastraße) und Bus sind fußläufig erreichbar und gewährleisten eine rasche Verbindung in die Innenstadt sowie zu weiteren U-Bahn-Knotenpunkten. Dadurch ist sowohl die Wiener City als auch das restliche Stadtgebiet bequem erreichbar.

Für Erholung und Freizeit stehen mehrere Grünflächen und Naherholungsgebiete in der Umgebung zur Verfügung. Auch der Wilhelminenberg sowie die Steinhofgründe sind in kurzer Zeit erreichbar und bieten hohen Freizeitwert.

Die Kombination aus urbaner Infrastruktur, guter Erreichbarkeit und Entwicklungspotenzial macht diese Lage sowohl für Eigennutzer als auch für Anleger besonders attraktiv.

 

Die Liegenschaft wurde von einem gemeinnützigen Bauträger errichtet und es wurden Förderungen in Anspruch genommen. Das kann bei der Vermietung Auswirkungen auf die gesetzlich erlaubte Miete, die vorgeschrieben werden darf, haben. Eine genaue Überprüfung der rechtlichen Situation wurde nicht vorgenommen.

  • 21 Freifläche
    21 m2 Freifläche
  • 74,29 Fläche
    74,29 m2 Fläche
  • gute Infrastruktur
    Gute Infrastruktur
  • 3 Zimmer
    3 Zimmer

Objektdaten

Objektnummer
25928
Objekt
Wohnung
Art
Kauf
Wohnfläche
74,29 m2
Kellerfläche
2,31 m2
Zimmer
3
Bäder
1
Toiletten
1
Kaufpreis
€ 335.000,00
Betriebskosten (Netto)
€ 171,27
Reparaturrücklage (Netto)
€ 100,67
Liftkosten (Netto)
€ 18,45
Gesamtbelastung
€ 309,37
Provision
3% des Kaufpreises zzgl. 20% USt.

Lage der immobilie

Mag. Yasmin Szaraniec
Beraterin

Gleich informieren und Termin vereinbaren

"*" indicates required fields

This field is hidden when viewing the form
This field is hidden when viewing the form
Anschrift
DSGVO Cookie Consent mit Real Cookie Banner