Direkt zum Inhalt wechseln

Sanierungsbedürftiges Geschäftslokal und Magazin nahe dem Praterstern

1020 Wien

Immobiliendetails

1020 Wien

Bitte beachten Sie, dass aufgrund der Nachweispflicht nur schriftliche Anfragen (Kontaktformular) mit vollständigen Angaben (Vor-, Zuname, Telefonnummer und E-Mailadresse) bearbeitet werden können.

Beschreibung

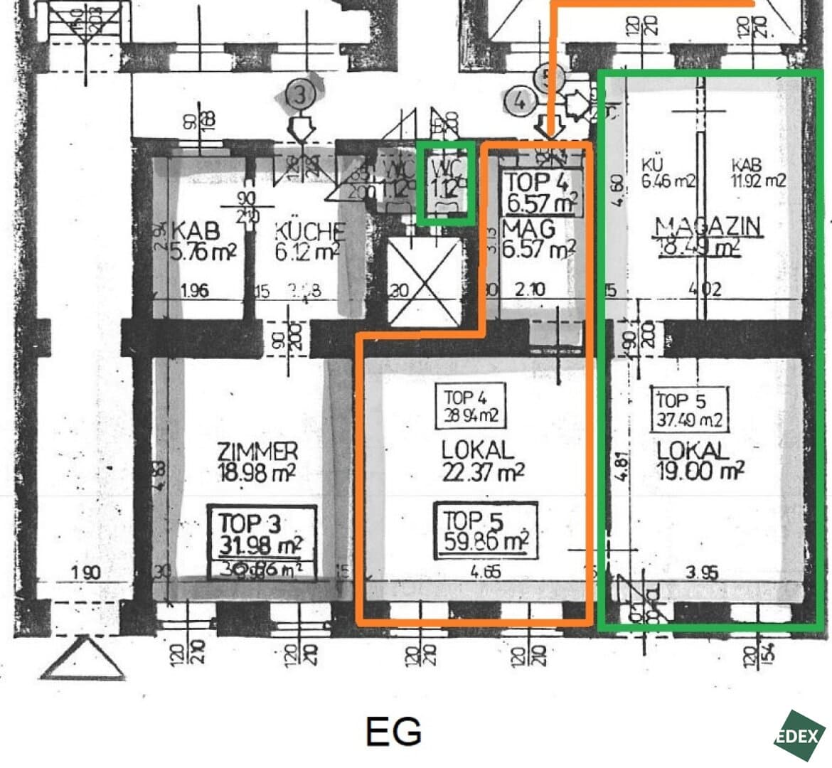
Diese rund 67 m² große Fläche bestehend aus einem Geschäftslokal (Top 5) und einem Magazin (Top 4) befindet sich unweit dem Praterstern im 2. Wiener Gemeindebezirk. Eine ideale Infrastruktur ist durch zahlreiche Einkaufsmöglichkeiten und Restaurants in der Umgebung und die gute öffentliche Verkehrsanbindung gegeben.

Die Flächen liegen nebeneinander im EG. Top 5 verfügt über einen straßenseitigen Eingang, sowie einen Zugang aus dem Stiegenhaus. Top 4 hat einen Zugang über das Stiegenhaus. Zusätzlich befindet sich im Stiegenhaus auch ein Gang-WC, das dem Geschäftslokal zugeordnet ist.

Die Flächen sind sanierungsbedürftig.  
 

Verkehrsverbindungen & Infrastruktur

Die Umgebung bietet eine optimale Infrastruktur. In wenigen Gehminuten erreicht man die Straßenbahnlinien 5 und 0 (Nordbahnstraße) sowie die U1 (Praterstern).

 

 

  •  Fläche
    67,55 m2 Fläche
  • gute Infrastruktur
    Gute Infrastruktur

Objektdaten

Objektnummer
23727
Objekt
Einzelhandel
Art
Kauf
Nutzfläche
67,55 m2
Kaufpreis
€ 236.425,00
Betriebskosten (Netto)
€ 182,39
Reparaturrücklage (Netto)
€ 101,33
Sonstiges (Netto)
€ 14,19
Gesamtbelastung
€ 337,23
Provision
3% des Kaufpreises zzgl. 20% USt.

Lage der immobilie

Harald Anderlik
Leitung Büroimmobilien

Gleich informieren und Termin vereinbaren

"*" indicates required fields

This field is hidden when viewing the form
This field is hidden when viewing the form
Anschrift
DSGVO Cookie Consent mit Real Cookie Banner