Direkt zum Inhalt wechseln

Schöne, großzügige Bürofläche im Herzen Wiens

1010 Wien

Immobiliendetails

Rotenturmstraße | 1010 Wien

Highlights:

  • Zentrale Innenstadtlage (Nähe Stephansplatz)

  • Repräsentativer Altbau mit Charme

  • Gute öffentliche Erreichbarkeit

 

Objektbeschreibung:

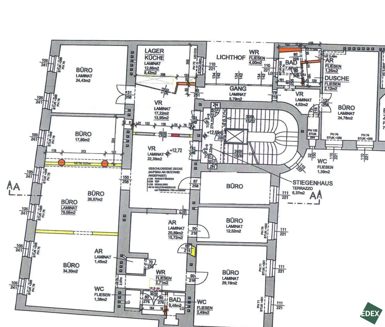
Die Bürofläche mit rund 278 m² befindet sich in einem sehr schönen Altbau auf der Rotenturmstraße, einer der exklusivsten Geschäftsadressen in Wien. Die Immobilie bietet rundum durchdachte Raumverhältnisse: Aktuell ist das Büro sehr offen gestaltet und es gibt insgesamt 5 Büroräume. Durch leichte Umbauarbeiten können aber bis zu 8 Büroräume geschaffen werden. Zusätzlich gibt es noch ein Badezimmer, drei getrennte Toiletten sowie ein Abstellraum für optimalen Komfort im Arbeitsalltag. Anschlüsse für eine Einbauküche sind vorhanden.

Das Objekt wird noch ausgemalt, kleinere Bodenbeschädigungen werden vor Übergabe fachgerecht ausgebessert – somit präsentiert sich die Fläche bei Einzug in einem gepflegten Zustand.

Raumaufteilung:

  • 5-8 Zimmer

  • Großzügiger Empfangs-/Eingangsbereich

  • 1 Badezimmer

  • 3 WCs

  • Abstellraum

  • Küchenanschlüsse vorhanden

Eckdaten:

  • Fläche: 278,22 m²

  • Stockwerk: 3. Stock 

  • Zustand: Das Mietobjekt wird noch weiß ausgemalt und der Boden instandgesetzt

  • Bezug: Nach Vereinbarung

 

*Alle Preise verstehen sich zzgl. 20% Umsatzsteuer. 

  •  Fläche
    278,22 m2 Fläche
  • gute Infrastruktur
    Gute Infrastruktur
  • 6 Zimmer
    6 Zimmer
  • Personenaufzug vorhanden
    Personenaufzug

Objektdaten

Objektnummer
26241
Objekt
Büro / Praxis
Art
Miete
Nutzfläche
278,22 m2
Zimmer
6
Bäder
2
Toiletten
3
Abstellräume
1
monatliche Miete (Netto)
€ 5.136,26
Betriebskosten (Netto)
€ 689,82
Liftkosten (Netto)
€ 98,42
Gesamtmiete
€ 5.924,50
Provision
3 Bruttomonatsmieten zzgl. 20% USt.

Lage der immobilie

Nadine Neumann
Beraterin

Gleich informieren und Termin vereinbaren

"*" indicates required fields

This field is hidden when viewing the form
This field is hidden when viewing the form
Anschrift
DSGVO Cookie Consent mit Real Cookie Banner