Direkt zum Inhalt wechseln

Schönes Altbau-Büro in exklusiver Lage

1010 Wien

Immobiliendetails

Wollzeile | 1010 Wien

Beschreibung

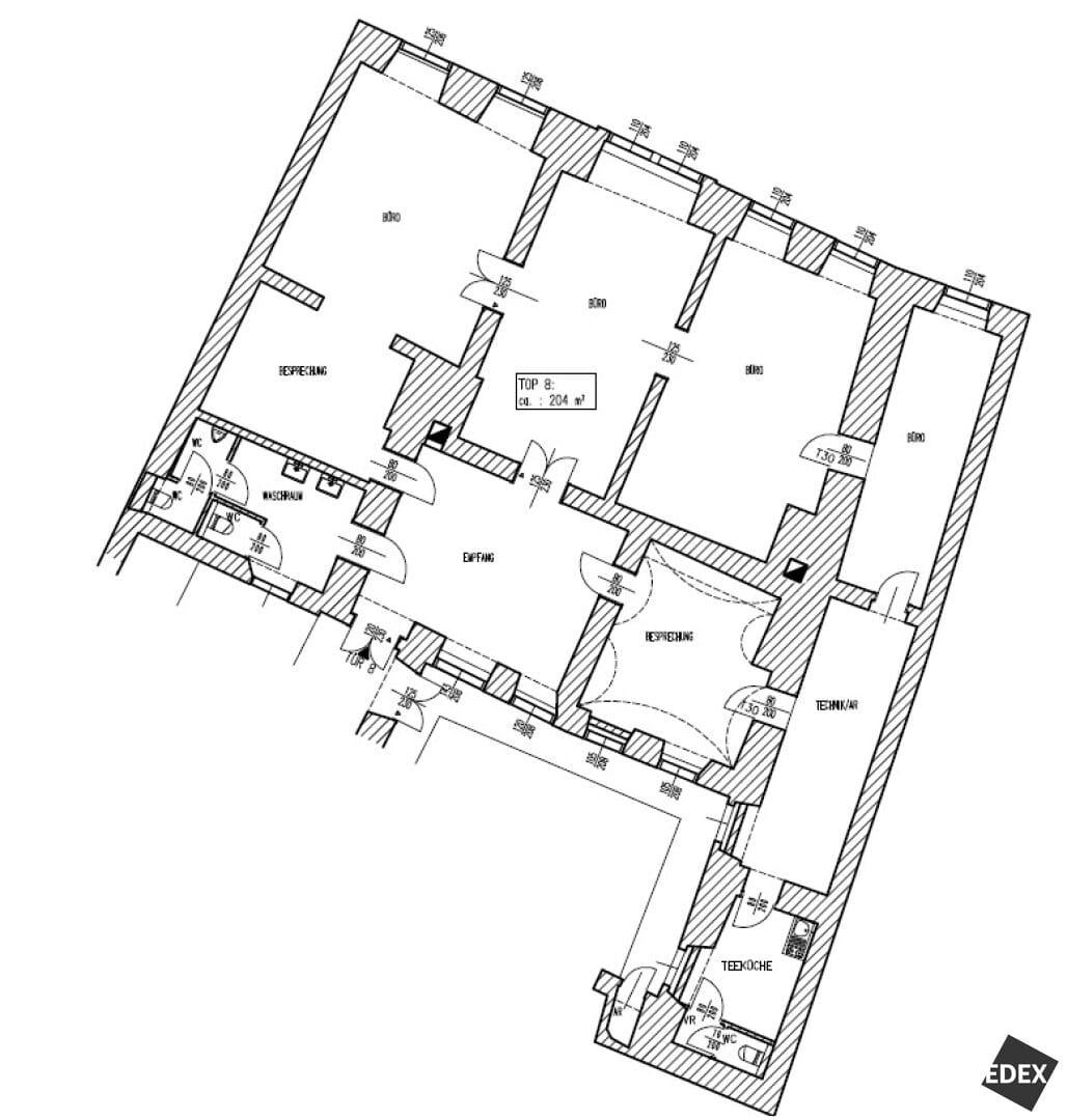
Die Bürofläche mit rd. 204 m² befindet sich in einem schönen Altbau direkt auf der Wollzeile, einer exklusiven Adresse in der Wiener Innenstadt. Die Bürofläche besteht aktuell aus einem großem Empfangsbereich, insgesamt sechs Büro-/Besprechungszimmern, einer Teeküche, drei getrennten Toiletten sowie einem Abstell-/Technikraum. 

Aufgrund der effizienten Anordnung und dem hochwertigen Ausbau ist ein repräsentativer Unternehmensauftritt garantiert. 

 

Aufteilung

  • Vorraum
  • Sechs Bürozimmer
  • Küche
  • Abstell- und Technikraum
  • Drei getrennte WC-Einheiten

 

Verkehrsanbindung & Infrastruktur

Das Büro ist optimal an die öffentlichen Verkehrsmittel angebunden und ist von einer Vielzahl an Einkaufsmöglichkeiten und Restaurants umgeben. In wenigen Gehminuten erreicht man die U3-Station Stubentor, die U3/U1-Station Stephansplatz und die U4-Station Landstraße, die Straßenbahnlinien 1 und 2. In unmittelbarer Umgebung der Liegenschaft befinden sich die Kärntnerstraße, der Stephansplatz sowie der Schwedenplatz, wodurch das Büro über eine hervorragende Anbindung verfügt. Supermärkte, zahlreiche gute Restaurants und Cafés können bequem zu Fuß erreicht werden. Die Wiener Innenstadt lädt mit zahlreichen Geschäften zum entspannten Einkaufsbummel ein. Der nahe gelegene Donaukanal lädt zu ausgedehnten Spaziergängen ein und ist fußläufig zu erreichen.

Insgesamt bietet die Lage eine ideale Kombination aus zentraler Infrastruktur, urbanem Komfort und kulturellem Reichtum.

 

Alle Preise verstehen sich zzgl. der gesetzlichen Umsatzsteuer.

 

  •  Fläche
    204,47 m2 Fläche
  • gute Infrastruktur
    Gute Infrastruktur
  • 5 Zimmer
    5 Zimmer
  • Personenaufzug vorhanden
    Personenaufzug

Objektdaten

Objektnummer
26306
Objekt
Büro / Praxis
Art
Miete
Nutzfläche
204,47 m2
Zimmer
5
Toiletten
3
Abstellräume
1
monatliche Miete (Netto)
€ 3.680,46
Betriebskosten (Netto)
€ 502,99
Liftkosten (Netto)
€ 45,68
Gesamtmiete
€ 4.229,13
Provision
3 Bruttomonatsmieten zzgl. 20% USt.
Kaution
6 Bruttomonatsmieten

Lage der immobilie

Harald Anderlik
Leitung Büroimmobilien

Gleich informieren und Termin vereinbaren

"*" indicates required fields

This field is hidden when viewing the form
This field is hidden when viewing the form
Anschrift
DSGVO Cookie Consent mit Real Cookie Banner