Direkt zum Inhalt wechseln

Schönes Ecklokal mit Wohnung in guter Lage mitten im 17. zu verkaufen

1170 Wien

Immobiliendetails

1170 Wien

Objektbeschreibung

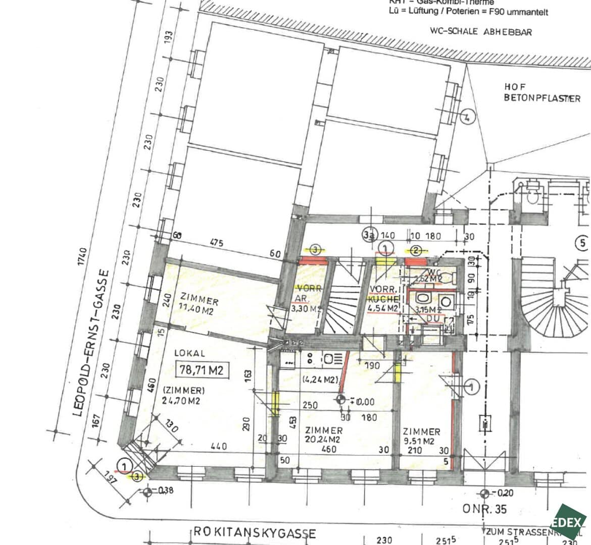
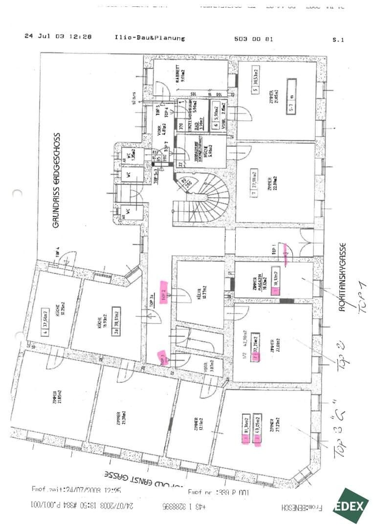
Zum Verkauf gelangt diese ca. 150 m² große Erdgeschoßfläche in einem gepflegten Altbau im 17. Wiener Gemeindebezirk direkt am Diepoldplatz. Sie besteht aus einer ca. 71 m² großen Wohnung und eine. ca. 79 m² große Ecklokal . Das Geschäftslokal ist straßenseitig ausgerichtet, gut sichtbar und mit einem zentralgelegenen Verkaufsraum, drei weiteren Zimmern, die großteils ebenfalls straßenseitig ausgerichtet sind, einen WC und einem Vorraum ausgestattet. Das Objekt ist  auch über das Stiegenhaus begehbar. Die Wohnung verfügt über zwei große Zimmer und ein Kabinett, das in den Innenhof ausgerichtet ist sowie ein Badezimmer. 

 

Verkehrsanbindung & Infrastruktur

Die Umgebung bietet eine optimale Infrastruktur. In wenigen Gehminuten erreicht man  die Straßenbahn-Linien 9 und 42 (Vinzenzgasse) und die Straßenbahn-Linie 2 bzw. 9. Die nächste gelegene U-Bahn Station ist Michelbeuern-AKH (U6) In unmittelbarer Umgebung der Liegenschaft befindet sich die Hernalser Hauptstraße, wodurch die Wohnung über eine hervorragende Anbindung verfügt. Supermärkte, zahlreiche gute Restaurants und Cafés können bequem zu Fuß erreicht werden. Die Währinger Straße, sowie die Hernalser Hauptstraße laden mit zahlreichen Geschäften zum entspannten Einkaufsbummel ein. Der nahegelegene Türkenschanzpark sowie der Wienerwald bieten Sport- und Naturbegeisterten viele Möglichkeiten der Entspannung und sportlichen Betätigung. 

  •  Fläche
    149,65 m2 Fläche
  • gute Infrastruktur
    Gute Infrastruktur

Objektdaten

Objektnummer
26515
Objekt
Einzelhandel
Art
Kauf
Nutzfläche
149,65 m2
Kaufpreis
€ 598.000,00
Betriebskosten (Netto)
€ 400,75
Reparaturrücklage (Netto)
€ 202,48
Gesamtbelastung
€ 643,31
Provision
3% des Kaufpreises zzgl. 20% USt.

Lage der immobilie

Harald Anderlik
Leitung Büroimmobilien

Gleich informieren und Termin vereinbaren

"*" indicates required fields

This field is hidden when viewing the form
This field is hidden when viewing the form
Anschrift
DSGVO Cookie Consent mit Real Cookie Banner