Direkt zum Inhalt wechseln

Top ausgestattetes Büro – zentrale Lage in 1030 Wien

1030 Wien

Immobiliendetails

1030 Wien

Direkt neben dem Arenbergpark und unweit der S-Bahnstation Wien Rennweg kommt diese moderne und gut aufgeteilte Bürofläche zur Vermietung.

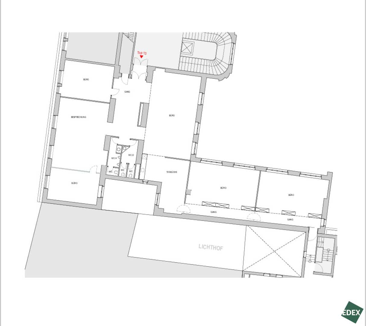
Im 4. Obergeschoss gelangt eine rund 333 m² große Büroeinheit zur Vermietung, die durch eine klare Raumstruktur und ausgezeichnete natürliche Belichtung überzeugt.

Durchdachtes Raumkonzept: Insgesamt stehen fünf großzügige Büroräume zur Verfügung. Diese Struktur erlaubt eine flexible Nutzung – von Einzel- und Doppelbüros bis hin zu kleineren Teamlösungen – und gewährleistet zugleich ein hohes Maß an Diskretion.

Ausstattung für den Arbeitsalltag: Die Bürofläche verfügt über mehrere separate Büroräume sowie einen zentralen Gangbereich mit klarer Erschließung. Ein einladender Eingangsbereich, eine funktional angeordnete Teeküche sowie getrennte WC-Einheiten bieten optimale Rahmenbedingungen für einen effizienten und strukturierten Bürobetrieb. 

Zusätzlich zu den o.a. Betriebskosten werden aktuell noch EUR 234,56 (netto) für Heizkosten monatlich vorgeschrieben.

 

Ausstattung:

  • Lift
  • Kühlung
  • Fernwärme
  • Verkabelung über Bodendosen bzw. Kabelkanal
  • teilweise außenliegender Sonnenschutz
  • teilweise Akustikdecken
  • Spiegelraster Pendelleuchten
  • Parkgarage vorhanden (nach Verfügbarkeit)
  • Unterteilung gem. Mieterlayout möglich

 

Öffentliche Verkehrsmittel

U-Bahn U3, U4

Straßenbahn 1, O

Bus 74A

 

*Sämtliche Preise verstehen sich zzgl. der gesetzlichen Umsatzsteuer.

 

Disclaimer

Die in diesem Exposé enthaltenen Bilder dienen der Veranschaulichung und können teilweise computergenerierte Visualisierungen (Renderings) beinhalten. Diese Darstellungen sollen einen Eindruck von der möglichen Gestaltung der Immobilie vermitteln, stellen jedoch keine verbindliche Beschaffenheitsangabe dar. Die abgebildeten Möbel und Einrichtungsgegenstände dienen ausschließlich der Illustration und sind nicht Bestandteil des Kauf- oder Mietgegenstandes.

  •  Fläche
    332,6 m2 Fläche
  • gute Infrastruktur
    Gute Infrastruktur
  • 6 Zimmer
    6 Zimmer

Objektdaten

Objektnummer
26171
Objekt
Büro / Praxis
Art
Miete
Nutzfläche
332,6 m2
Zimmer
6
Toiletten
3
monatliche Miete (Netto)
€ 5.321,60
Betriebskosten (Netto)
€ 768,30
Gesamtmiete
€ 6.089,90
Provision
3 Bruttomonatsmieten zzgl. 20% USt.
Kaution
6 Bruttomonatsmieten

Lage der immobilie

Harald Anderlik
Leitung Büroimmobilien

Gleich informieren und Termin vereinbaren

"*" indicates required fields

This field is hidden when viewing the form
This field is hidden when viewing the form
Anschrift
DSGVO Cookie Consent mit Real Cookie Banner