Direkt zum Inhalt wechseln

Top Büro in der Börse!

1010 Wien

Immobiliendetails

1010 Wien

Beschreibung 

Das aufwendig sanierte Gebäude bietet eine Arbeitsatmosphäre der Extraklasse. Die angebotenen Flächen verfügen über eine hochwertige Ausstattung, sowohl im Altbau als auch im Neubau des Hauses. Das historische Ambiente und die Geschichte des Gebäudes kommt dabei nicht zu kurz und wird durch die prachtvollen Foyers unterstrichen. Die exponierte Lage ermöglicht einen optimalen Geschäftsauftritt.

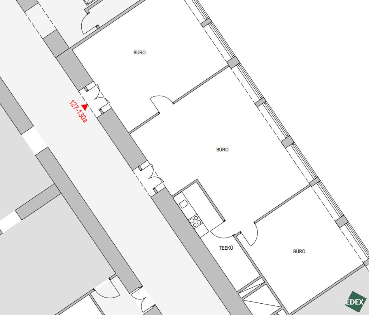
Diese ca. 124 m² große Bürofläche im ehemaligen Wiener Börse Gebäude gelangt ab sofort zur Vermietung. Das Objekt verfügt über 3 Büroräume, eine Teeküche, sowie einen Serverraum. Alle Räume sind mit hochwertigen Parkettböden und wunderschönen Fenstern mit Holzverkleidung ausgestattet .  

Die Bürofläche ist ebenfalls hervorragend an die öffentlichen Verkehrsmitteln angebunden. In unmittelbarer Nähe befindet sich die U2Station Schottentor und die U2/U4-Station Schottenring. Zudem gelangt man in kürzester Zeit zur Buslinien 40 sowie zu den Straßenbahnlinien 1, 2, 37, 38, 40, 41, 42, 43 und D In der Umgebung befindet sich eine Vielzahl an hervorragenden Restaurants und Cafés.    

Zusätzlich zu den o.a. Betriebskosten werden aktuell noch EUR 323,38 für Heiz- und Kühlkosten vorgeschrieben.

Aufteilung: 

  • 3 Büroräume

  • Teeküche

  • Serverraum

  • getrennte Toiletten (außerhalb der Bürofläche)

 

Ausstattung

– Parkettboden

– Verkabelung über Fensterbankkanal

– Raumhöhe bis zu 3,50m

– Lift in jedem Bauteil

– Parkplätze in der Hauseigenen Tiefgarage oder in naher Umgebung  

– Kühlung mittels Fan-Coils

– außenliegender Sonnenschutz

 

Verkehrsanbindung & Infrastruktur

Durch die zentrale Lage sind viele Restaurants, sowie Nahversorger fußläufig zu erreichen. Über den Ring gelangt man schnell auf die Hauptverkehrsrouten der Stadt. Somit ist eine optimale Infrastruktur gegeben. 

U-Bahn:           U2 Schottentor, U4 Schottenring

Straßenbahn:   1, 2, 31, 37, 38, 40, 41, 42, 43, 44

Bus:                 1A, 3A, 40A

 

*Alle Preise verstehen sich zzgl. der gesetzlichen Umsatzsteuer

 

  •  Fläche
    124 m2 Fläche
  • gute Infrastruktur
    Gute Infrastruktur
  • 3 Zimmer
    3 Zimmer

Objektdaten

Objektnummer
21902
Objekt
Büro / Praxis
Art
Miete
Nutzfläche
124 m2
Zimmer
3
monatliche Miete (Netto)
€ 2.467,60
Betriebskosten (Netto)
€ 538,16
Gesamtmiete
€ 3.005,76
Provision
3 Bruttomonatsmieten zzgl. 20% USt.
Kaution
6 Bruttomonatsmieten

Lage der immobilie

Veronika Petrosyan
Beraterin

Gleich informieren und Termin vereinbaren

"*" indicates required fields

This field is hidden when viewing the form
This field is hidden when viewing the form
Anschrift
DSGVO Cookie Consent mit Real Cookie Banner