Direkt zum Inhalt wechseln

Vienna Competence Center – moderne Büros samt Freiflächen

1090 Wien

Immobiliendetails

Lazarettgasse | 1090 Wien

OBJEKTBESCHREIBUNG

Im 9. Wiener Gemeindebezirk gelegen, präsentiert sich das Vienna Competence Center als modernes Büro- und Forschungsgebäude in prominenter Lage – direkt gegenüber dem Allgemeinen Krankenhaus. Das Erdgeschoss empfängt Besucher mit einer großzügigen, verglasten Eingangshalle, einem barrierefreien WC sowie einem zentral nutzbaren Konferenzraum. Auf insgesamt fünf Ebenen verteilen sich Labor- und Büroflächen, die primär auf Unternehmen und Institutionen aus Forschung, Wissenschaft und dem Life-Science-Sektor ausgerichtet sind. Durch die Lage im Herzen der „medizinischen Forschungsmeile“ ist das Objekt besonders attraktiv für Mieter aus dem medizinischen Umfeld – wie etwa Ordinationen, Labore oder Gesundheitsdienstleister. Der neue MedUni Campus Mariannengasse ist zudem nur wenige Schritte entfernt.

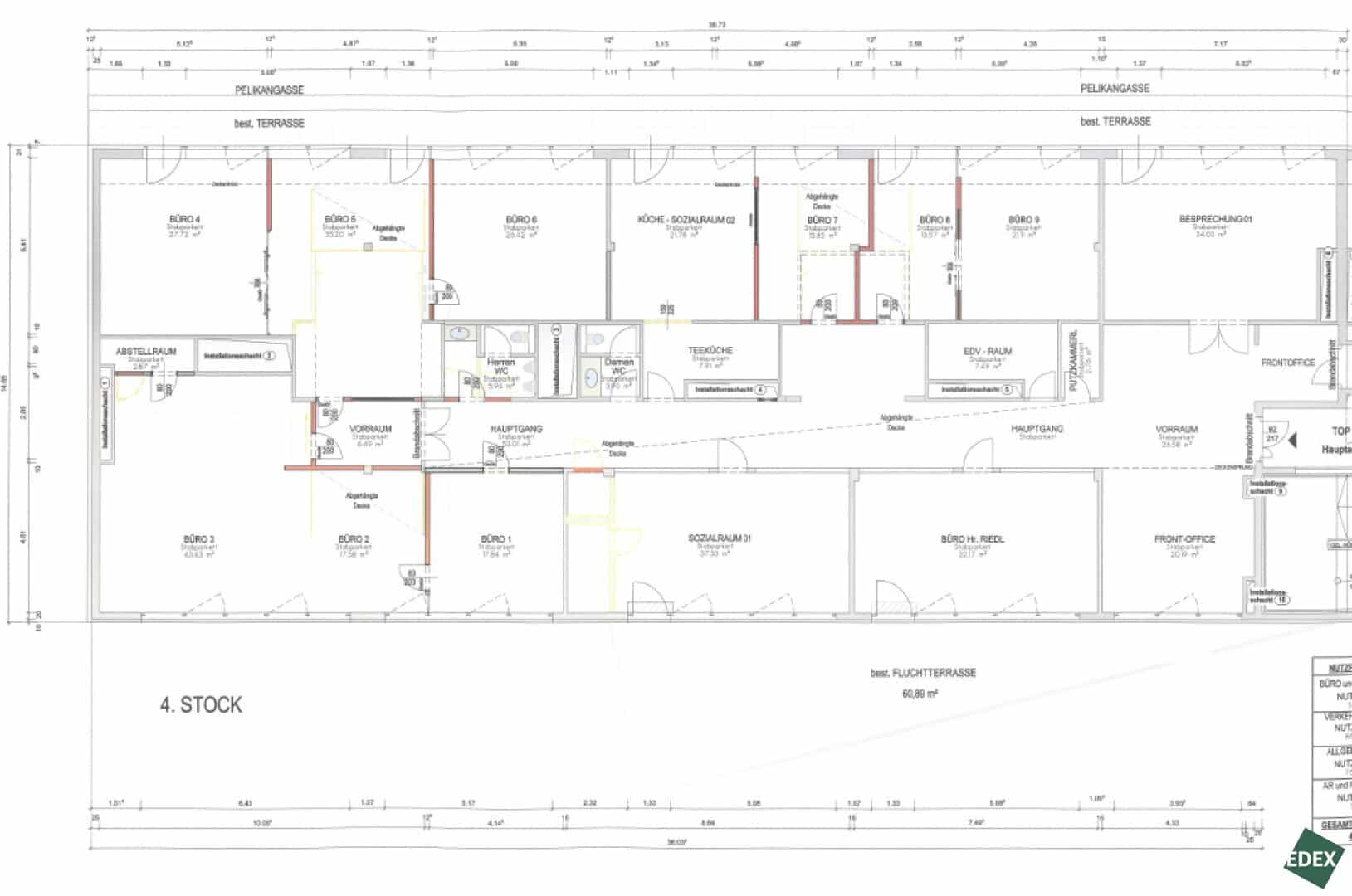
Das Gebäude vereint somit hochwertige Infrastruktur für wissenschaftliche Einrichtungen mit den Anforderungen moderner Arbeitswelten. Die zur Verfügung stehende Fläche im 4. Obergeschoss zeichnet sich durch eine funktionale Raumaufteilung und einen klar strukturierten Grundriss aus. Die Fläche bietet einen einladenden Empfangsbereich, verschieden große Büro- und Besprechungsräume, eine Teeküche sowie getrennte WC-Anlagen. Durch die flexible Raumaufteilung lässt sich die Einheit gut an unterschiedliche Nutzungsbedürfnisse anpassen. Ein besonderes Highlight sind die vorhandenen Terrassenflächen, die zusätzlichen Freiraum schaffen und sich ideal für Pausen oder Besprechungen eignen.

Über die Hausverwaltung besteht zudem die Möglichkeit kostenfrei, einen 76m2 großen Seminarraum im 1. OG zu buchen.

Die angeführten Betriebskosten verstehen sich inkl. der Heiz- und Kühlkosten.

 

verfügbare Flächen:

  • 4.OG – Top 1+2: ca. 866 m² (teilbar 366m²|500m²)
  • 1.UG – Lagerfläche ca. 120m², Nettomiete 8,00€/m², BK: 6,44€/m²
  • 23 TG-Stellplätze für mtl. € 125,00

 

AUSSTATTUNG IM ÜBERBLICK

  • Repräsentative Lobby mit großem Eingangsbereich
  • Zwei Besprechungsräume
  • Voll ausgestattete Teeküche
  • Parkettboden
  • Zugfreie Kühlung mittels Kühlbalken
  • IT-Infrastruktur und EDV-Verkabelung
  • Separate Sanitäranlagen
  • Hauseigener Konferenzraum
  • Zwei Personenlifte
  • öffenbare Fenster 
  • Terrasse

 

LAGE UND VERKEHRSANBINDUNG

Die Liegenschaft befindet sich in direkter Nähe bedeutender medizinischer und akademischer Einrichtungen wie dem St. Anna Kinderspital, dem Allgemeinen Krankenhaus (AKH), der Wiener Privatklinik sowie der Privatklinik Goldenes Kreuz. Das Umfeld bietet darüber hinaus eine Vielzahl an gastronomischen Betrieben, Cafés und Einkaufsmöglichkeiten, wodurch der Standort sowohl infrastrukturell als auch hinsichtlich Lebensqualität überzeugt.

Dank der zentralen Lage im 9. Bezirk ist eine exzellente Anbindung an den öffentlichen Verkehr gegeben:

  • U-Bahn: Linie U6 – Stationen Alser Straße / Michelbeuern AKH
  • Straßenbahn: Linien 5, 33, 37, 38, 41

 

Alle Preisangaben verstehen sich netto pro Monat, zzgl. der gesetzlichen Umsatzsteuer.

 

  • 61 Freifläche
    61 m2 Freifläche
  •  Fläche
    499,55 m2 Fläche
  • gute Infrastruktur
    Gute Infrastruktur

Objektdaten

Objektnummer
25652
Objekt
Büro / Praxis
Art
Miete
Nutzfläche
499,55 m2
monatliche Miete (Netto)
€ 9.941,05
Betriebskosten (Netto)
€ 3.217,10
Gesamtmiete
€ 13.158,15
Provision
3 Bruttomonatsmieten zzgl. 20% USt.
Kaution
3-6 Bruttomonatsmieten

Lage der immobilie

Harald Anderlik
Leitung Büroimmobilien

Gleich informieren und Termin vereinbaren

"*" indicates required fields

This field is hidden when viewing the form
This field is hidden when viewing the form
Anschrift
DSGVO Cookie Consent mit Real Cookie Banner